查看完整案例

收藏

下载
案例背景
这套60㎡的小家,属于一对在深圳工作的年轻人。两人都在这个城市闯出了一方属于自己的天地,如今终于拥有了一个可以放慢脚步、安放生活的小屋。女主人是一位产品设计师,拥有极好的审美感知力,对居住细节也有着近乎苛求的讲究。这次的家,也成为了她人生中一场新的启程--开启了做家居博主的梦想。而他们养的两只金吉拉猫咪,则在这个空间里自由穿梭,为这份法式中古的氛围增添了几分慵懒又温暖的电影感。空间虽小,却因为合理的布局与丰富细腻的细节,而充满了舒适与格调。从经典的拱门造型,到灵动的玻璃铁艺隔断;从高效利用的收纳系统,到为猫咪定制的小小领地;从一方咖啡角,到满屋花束的香气蔓延--这是一个承载了日常、也承载了梦想的地方。
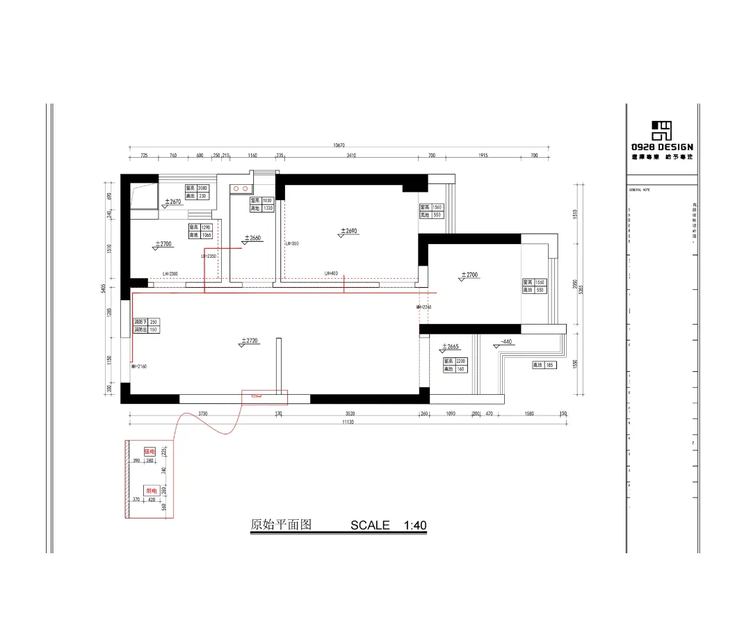
户型分析
装修前
■客户的问题点:
1.客厅餐厅好暗啊,白天不开灯都不行!
2.厨房太小了,做个饭都转不开身。有办法调顺点吗?
3.进门就一堆杂乱,而且直冲里面,毫无隐私,玄关也分不清餐厅是哪儿?
4.北卧大但是暗,东卧亮但太小了没空间收纳,怎么住?
5.还想给我们家的2只小猫咪有一个独立的空间,满足吃喝拉撒睡,但是拉撒会有味道!
■设计师的思考点:
1.有没有办法在不打破结构的前提下,让光线更自然地流动进来,把客餐厅的整体明亮度提起来?
2.在有限面积里,怎么调整厨房布局,才能保证基本的操作流畅,还能塞下日常的家电和收纳?
3.要怎样重新规划动线和空间界定,让玄关更有秩序感,同时又自然过渡到餐厅,不让视觉和使用体验都乱成一团?
4.卧室空间该怎么重分配,才能让光线最好的地方留给主生活区,同时兼顾居住舒适和功能完整?
5.猫咪居住要通风良好的位置,如果阳台给猫咪,那么洗烘机往哪放?
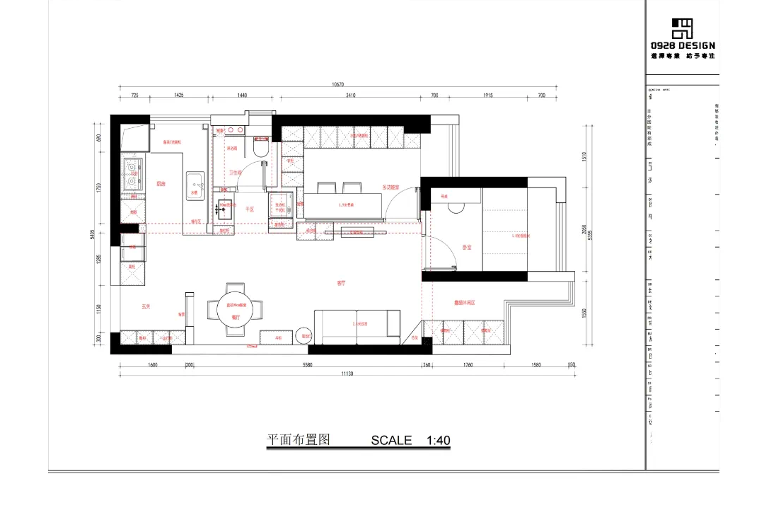
装修后
拿到原始户型时,我们直观感受到空间存在一些明显问题:客餐厅光线偏暗,厨房面积紧凑且家政功能不足,玄关与餐厅分区模糊,卧室比例与采光分配不理想。业主也提出了同样的困扰,并特别希望为两只金吉拉猫咪打造通风良好、活动自如的生活环境。经过对动线、采光与使用需求的整体梳理,最终我们确定空间——「光线流动、动线清晰、松弛有序」
1.封闭阳台,扩大客餐厅面积,增加整体储物空间,同时为猫咪留出独立活动区域。
2.厨房封闭原北向阳台区域,改为开放式布局,释放操作空间,完善烹饪与家政动线。
3.卫生间入口改为黑框玻璃门,引入北向自然光,使光线贯穿,提升整体明亮度与通风感。
4.北卧室打半高墙+玻璃隔断,划分出书房与衣帽间区域,同时保持光线流动与空间弹性。
5.玄关区域重组,通过定制收纳柜与动线调整,明确入户与餐厅分区,增强秩序感和舒适度。
6.东卧室作为主卧使用,结合飘窗设计1.8米宽榻榻米床,提升睡眠舒适度与收纳能力。
7.整体灯光系统优化,基础照明与局部氛围灯结合,营造更柔和舒适的居住光环境。
设计详情
玄关
沿着厨房靠墙转过来的其实是玄关区域。正对大门设置的黑框玻璃隔断,它不仅作为空间界面的分隔,视觉上增加了层次感,更重要的是,从功能角度解决了大门直冲户内的问题一-柔和了入户视线,也为室内保留了一份从容的过渡。
隔断的设计延续了全屋的黑色调基调,细腻的哑光金属质感搭配弧形门拱造型,使原本紧凑的玄关区域显得轻盈而富有装饰性。镜面与玻璃的组合,让光线可以自然流动进来,既不压抑,又巧妙地引导视线转向室内更深处,增强了整体空间的延展性。
入门左侧玄关柜体与厨房冰箱区则打通一体,采用同色系的哑黑柜门处理,使收纳功能隐匿在整洁统一的立面之下。入门右侧是穿衣镜的嵌入式设计,不仅满足了出门前整理仪表的需求,也通过反射进一步拉伸了玄关的纵深感。下方取消传统踢脚线设计,让鱼骨拼木地板与柜体无缝衔接,细节处体现出极强的整体性和质感。
客厅
作为这套60㎡住宅的公共核心,客厅在设计上首先确立了清晰的空间基调。奶油白的墙面与温润的原木地板构成了基础铺垫,搭配暖色轨道灯与局部吊灯,整体气质偏向轻法中古感,既有质感,又不过分厚重,适配年轻业主希望空间松弛、舒适的生活节奏。
为了优化小户型的通透感,设计师将原有阳台彻底打通,与客厅、餐厅连成一个整体动区。中央通道被自然收拢,流线简洁顺畅,不论是两人日常生活,还是猫咪自由穿行,都能保持空间的连续感。为了让各功能区既独立又相互关联,客厅与书房之间,采用玻璃铁艺隔断与半实墙结合,轻量划分场域的同时,也让光线得以最大化穿透进室内。拱形门洞的处理进一步柔化了结构转折,使空间的边界感更自然,也让进出阳台的动线显得轻盈流畅。
家具布局在比例与尺度上进行了精细控制。大件沙发选用软包黑皮,造型舒展饱满,提供充足的起居舒适度,但通过靠墙布置,避免了对动线的侵占。摒弃了传统沙发茶几边几的组合布置,选择了利用墙角贴合的置物架,整个公共区保持了高效的功能组合,也留出了充分的留白,方便未来根据生活变化灵活调整。
电视机的装置采用了活动支架和储物结合的方式,满足了书籍、杂物、遥控器等小件物品的收纳需求,同时避免了传统固定的方式,可以满足在就餐,沙发等不同区域的观影模式。餐边柜则为餐区补充了茶具、花器、咖啡器具等的摆放位置,在弱化杂物视觉存在感的同时,也让生活细节得到了充分照顾。
光环境设计以“多点布光、弱主灯”为策略,主轨道灯负责基础照明,局部吊灯与壁灯则根据生活场景做重点补充。沙发一侧的壁灯和香薰台灯,为夜晚阅读或小型聚会提供了舒适的光线氛围,同时也强化了客厅的可变性--可以是两人窝在沙发听音乐、看书的静谧角落,也可以是朋友来访时随性围坐的小型社交空间。
日常生活中,猫咪们可以自由穿梭于沙发、阳台和餐区,阳光从百叶窗间洒进,拱门下的小角落摆着一两株生机盎然的绿植,空间的每一个细节,都在有意识地为生活让出余地,而不仅仅是为设计服务。
主卧
卧室围绕着“舒适”与“温度”展开:细腻的米色墙面打底,搭配温润质朴的木质元素,空间氛围自然而松弛,没有丝毫造作的张扬。
床铺部分采用了高效整合设计,下方隐蔽收纳抽屉延伸至整个床架,巧妙地扩展了小户型卧室的储物能力。厚实的床垫搭配柔软的棉麻床品,暖棕与米白的搭配低调而有层次,在自然光线的映衬下,氛围温柔而丰盈,仿佛随时可以陷进去打个盹。
在空间布局上,卧室通过一扇黑色半弧门与客厅自然过渡,呼应了整体中古法式的设计语汇。门洞拱形柔和了过道的视觉感,也为卧室增添了一分温柔的仪式感。
床头一侧,是定制的胡桃木五斗柜,厚重质感带着微微的复古味道。柜面上的装饰也极富生活气息--一束鲜花、几本随手翻阅的书、淡淡燃起的香薰蜡烛,一切都不刻意,却足够真实。紧邻斗柜,矗立着一盏极具雕塑感的立灯:流线形的木质灯身与柔和的灯罩交织,三段式分布的光源,既能作为阅读照明,也赋予空间一种温柔的情绪层次。夜晚的卧室,在这盏灯的映衬下仿佛自带了电影滤镜,令人忍不住想要窝进被子里,做一个舒服的美梦。
窗边保留了原本的飘窗,配上柔软的亚麻窗帘和可调节的百叶帘,既能自由掌控光线,又能在不经意间,制造出细碎而灵动的光影变化。拉开窗帘时,晨光碎碎洒进来,卧室里弥漫着松弛、安静又略带慵懒的气息,完美承接了一天的开始与结束。
厨房
厨房沿用了整体空间的沉稳基调,以黑色柜体搭配浅米色墙面,在柔和自然光的映衬下,呈现出一种安静且有力量的存在感。拱门作为空间的过渡元素,柔化了入口的界限,也赋予了日常穿梭一种仪式感。整个厨房并不追求表面华丽,而是更注重日常高频使用下的舒适度与灵活度。无论是一个人专心备餐,还是家人一起协作出餐,每一个转身、每一次拿取,空间都能自然而然地顺势配合,不多一步,也不少一寸。推开拱门,就像推开一个独立的小世界一-紧凑而丰富,温暖又有条理。
厨房布局采用了经典的U型动线,清晰划分出备餐、烹饪、清洗的功能分区。从左至右,家用电器被有序嵌入:烤箱、蒸烤一体机、厨师机……每一样都恰到好处地嵌在柜体之中,既便于取用,又避免了外露带来的杂乱感。操作台面选用耐磨的浅灰色石材,简洁利落,方便日常清理,也为繁复的烹饪留足了空间。
沿着右侧展开,是一组高效的开放收纳架。调味罐、谷物瓶、意式咖啡机有序陈列,既是收纳,也是家人生活的一部分。每天清晨,从咖啡机里萃取出第一杯浓醇咖啡,玻璃罐中新鲜烘焙的豆香弥散开来,在自然光和木纹地板的映照下,厨房不再只是简单的功能区,而成为生活节奏慢下来的起点。
厨房内部的细节设计也藏着许多用心。操作高度尺寸区域墙面使用了宝格丽大理石,搭配黑色金属边框的窗户与橱柜,质感之间有着微妙而克制的张力。水槽与备餐区安排在临窗一侧,洗涤时自然采光充足,减少了封闭感;洗碗机直接嵌入台面下方,解放双手,让日常清理更轻松。高低错落的置物系统,不仅解决了大量小型电器的收纳问题,也让烹饪动线更加顺手,拿取、操作一气呵成。
作为一名每天跟空间打交道的文案小编我呀,真的很喜欢这个厨房一角的小咖啡角,真的是第一眼就心动的程度!谁还没有一个咖啡店的小梦想一
金属质感的咖啡机沉稳而闪亮,静静驻扎在拱形门洞下,像个正在营业的小店长,专业又有点可爱。最喜欢的是开放收纳的那一排排玻璃罐,从咖啡豆到麦片,从干果到茶包,整整齐齐地排列着,每一罐都像在说:“来呀,开启美好一天呀!”
光线顺着百叶窗斜洒下来,映着咖啡机的银色反光,整个角落暖意融融,像开了滤镜一样。要是每天早晨能在这里磨一杯咖啡,拉个花,哪怕外头忙成一团,也能从这里偷走一小口属于自己的快乐。羡慕业主的每一个咖啡时刻~
餐厅
餐厅区域是一种轻盈又有质感的节奏。米白色墙面配上细腻的石膏线条,静静铺陈出柔和的背景,为这个小小的用餐角落打下了温暖基调。
天然洞石材质的圆形餐桌,沉稳又不过分厚重,刚好容纳二至三人的日常围坐,气氛既亲密又自在。搭配的椅子轻松错落,材质与造型各有风情,正如生活本身的小小趣味--不求完全统一,却自然和谐。
玄关隔断的背面,设计师特别设置了一个嵌入式的小型展示台,和黑框拱形玻璃隔断融为一体,既是过渡空间,也是视线的延伸。水波纹玻璃在光线下微微荡漾,映出几株绿植与陶艺花器,朦胧中透着生活的温柔。而天花上那盏灯,像一朵柔软的云,静静悬挂在餐桌正上方,光影在晨曦和夜晚交替流转,为每一餐增添几分诗意。
卫生间
穿过拱形门洞,眼前便是这个令人惊喜的卫浴空间。第一眼最吸引人的,是那抹独特的小黄砖--色泽温润,表面微微泛着柔和光泽,搭配半墙高度的铺设,不仅保护了墙面耐用易打理,也为整个空间注入了复古且轻松的气息。
洗手台区域以一个轻巧的拱形过渡,嵌入了一套黑色柜体系统,稳重大气。搭配经典复古造型的金属水龙头和边缘微翘的方形台盆,细节处呼应着整体中古气质。台面上简单点缀了花束与烛光,既有仪式感,又充满生活气息。
值得一提的是洗烘机一体的设计--将洗衣机与烘干机垂直叠放,嵌入定制柜体之中,不仅极大释放了地面空间,还维持了整体视觉的一致性,高效收纳又不显杂乱。
黑色玻璃门以竖向长条纹理为点缀,兼顾了遮挡视线与引入光线的平衡感,推门之间,仿佛有一丝电影画面感缓缓流转。门旁还有一块精致的小地毯,悄悄软化了黑白之间的锐利过渡,让人每一次走进,都有种被温柔接住的感觉。
湿区则更加紧凑实用。马桶与淋浴区一线排布,玻璃隔断清爽利落,既划分空间又不阻碍光线流动。顶上的浴霸系统采用了隐形设计,功能性与美观度兼顾,连排水坡度也细致考量,让日常使用更加顺畅安心。
整个卫浴空间没有一丝多余,每一寸设计都为使用感让路,同时又在细节里悄悄藏着讲究和美感。它不是那种浮夸的“展示型”空间,而是真正能够陪伴日常、被好好使用、让人心生喜欢的小宇宙。
书房
书房沉稳的黑色定制柜体立刻将空间包裹出一种静谧感。整面墙的收纳系统,从高柜到抽屉,细腻的立体线条,低调却不失细节。关上门,杂物隐身;打开柜子,每一处都有明确分区,让空间看起来始终干净、有序,不会在日常中逐渐堆满杂乱。用一面半墙+铁艺玻璃隔断界定出独立又相通的空间,采光被最大化引入书房,室内也在光影变化中,显得灵动而富有层次。工作间隙抬头,看向客厅与绿植,心情仿佛也得到了短暂的舒展。靠窗的一整面书桌以悬挑式设计展开,底部留出宽敞的活动区,搭配一把软绵舒适的弧形办公椅,满足长时间阅读、写作、手工创作的需求。桌面尺度充足,即便是双人同时使用,也能互不打扰,灵活高效,真正做到了小空间里的大利用。
书桌紧靠着的墙面处特别开辟了一个拱形壁龛,内嵌两层搁板,温暖的小蜡烛、日常手作、可爱的绿植静静地陈列其中,为理性有序的空间增添了一抹轻松的生活气息。点起蜡烛,柔软的光晕跳跃,微微洇染到墙面与书桌边缘,仿佛为这个独立小天地罩上了一层温柔的滤镜。
除了日常办公,这里也被悄悄赋予了更多的生活情景:清晨,一杯咖啡、一盏台灯,伴着微光打开电脑,开启元气满满的一天;午后,阳光透过半墙玻璃,桌面铺开一本摊开的书,屋内安静到只剩下翻页声;偶尔闲暇时,还可以在壁龛下摆上一盆新养的小植物,或者亲手做的小手工,随着季节更替,给空间一点点微小又治愈的变化。
客服
消息
收藏
下载
最近




































