查看完整案例

收藏

下载

翻译
Architects:WEN Architect
Area:244m²
Year:2022
Photographs:YU TZU CHIN
Lead Architects:Wen-Chih Feng
Structure Engineers:Dynense
Construction:Yuan Jun
Category:Houses
City:Taoyuan City
Country:Taiwan
Text description provided by the architects. For decades, the team has been striving to alter the status quo of Taiwan's templated metropolitan houses. This residential project, located in an enormous industrial zone with factories, schools, shops, and parks surrounding, is another attempt that inherits such ambition: to forge a joyful home that cradles and unites families while establishing connections outward.
Design Points:1. Soften the boundary between private space and public area2. Inspired by theatre and the barn3. Bringing together family members on various routines through layout
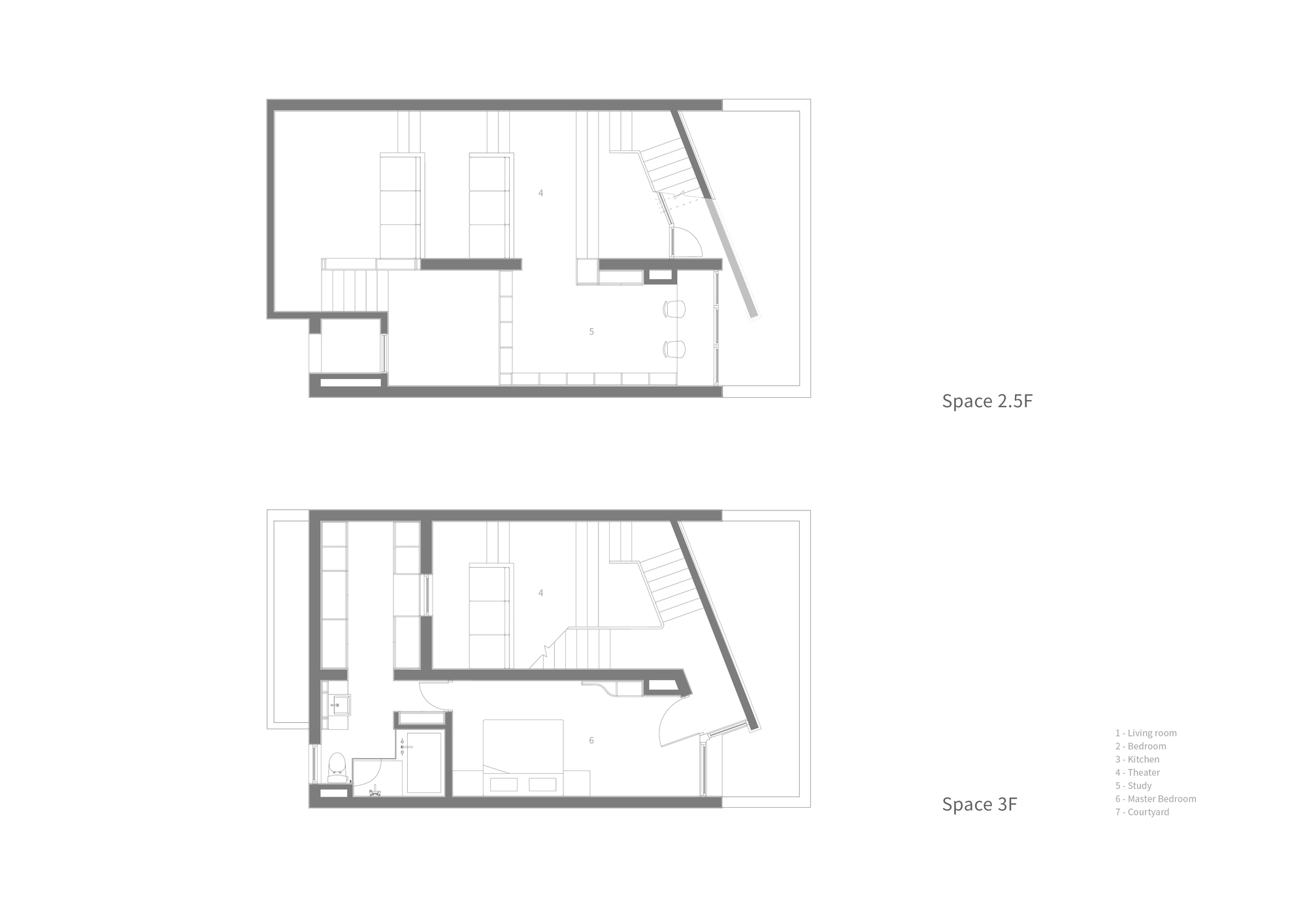
The aim is to create a lively and dynamic home for the child-cherishing family, and the masterstroke is to imagine the house as a Ferris wheel, in which space changes through time. Inspired by a theatre stage and auditorium, the common area is designed to encourage participation in various ways and share joint interests among family members. The stair form is set up to eliminate the rigid limit of standardized ceilings that separate floors, making the room adaptive to changes.
Furthermore, the concept of a barn was applied to differentiate upper and lower partitions. Contradicting to the organic lower part, the upper part functions as a secluded penthouse to provide intimacy. This notion also symbolizes the ripe and golden harvest, representing a genuine wish for the continuation of life. The sense of duty had kept the design team motivated throughout, and it's all for nothing but one old saying: "a place for the old to age in, the grown-up to take on, the young to bloom upon.
The formulation of the common area starts from the street to the alley, all the way extending to each of the individual spaces. Audience in any unit can merge into the common area whenever they want, like a pedestrian bumping into a carnival parade and deciding to take part in.
Traditionally, the elderly room is arranged on the ground floor near the rear parking for convenience, which reduces quality of life. To improve that, the room was relocated to the space above the entrance with the ceiling height deliberately adjusted for a magnifying effect, connecting outward to the neighborhood via a sunny balcony. The flow path seamlessly extends outward to the street.
On the second floor, the dining room is the hub for connection and communication, branching out to functional units like the living room, theatre, or reading room. The master bedroom on the third floor features an indoor balcony overlooking the theatre. On top of that is a sequence of units in spiral arrangement for two kids, where small talks would naturally happen during the morning routine at the mezzanine. The main purpose of this spiral arrangement in sequence is to make the top floor fully separable from other floors, so that when future new family members join, they can safely nestle in it.
Project gallery
客服
消息
收藏
下载
最近






















