查看完整案例


收藏

下载

翻译
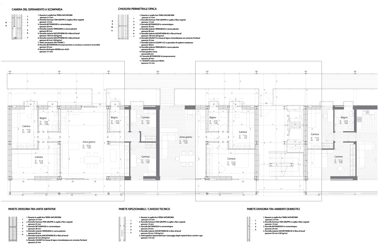
“Abitare a Milano 2” competition has been announced in order to gather new proposals in contemporary social housing for different districts inside of the City. Fundamental design criteria for the project conceived in range of the “Building technology studio” are those of confort, typological and building greatest flexibility and environmental sustainability regarding the choice of building technique, technological plants and materials.The proposal has been developed from the urban scale (1:500) to the architectural detail one (1:20), especially focusing on technological systems and interior arrangement criteria. Professors: Campioli Andrea, Lavagna Monica, Siciliano Antonio
客服
消息
收藏
下载
最近















