查看完整案例

收藏

下载
The Institute of Indology by B.V. Doshi
Institute of Indology Facade | © Carlo Fumarola, Flickr User
The Institute of Indology, designed by Indian architect Balkrishna V. Doshi, is a seminal example of modern Indian architecture’s deep engagement with its cultural roots. Completed in 1962 in Ahmedabad, the Institute was envisioned as a repository for manuscripts, artifacts, and research materials dedicated to Indian history and philosophy. Its significance extends beyond its function, as the building masterfully embodies Doshi’s architectural philosophy—a harmonious fusion of modernist principles with the rich traditions and spiritual essence of Indian design.
Institute of Indology Technical Information
Architects: Balkrishna V. Doshi
Location: Ahmedabad, India
Topics: Critical Regionalism
Area: 69,965 sq. ft. | 6,500m
Completion Year: 1962
Life is not logic, life is rhythm. When you enter a building, you must sense that this rhythm is being communicated to you. – Balkrishna V. Doshi
Institute of Indology Photographs
Entrance | © Doctor Casino, Flickr User
Facade | © Arnout Fonck, Flickr User
Courtyard | © Doctor Casino, Flickr User
© Doctor Casino, Flickr User
© Arnout Fonck, Flickr User
Courtesy VSF
© Doctor Casino, Flickr User
© Doctor Casino, Flickr User
1960s Photograph
Design Principles and Architectural Features
In this building, Doshi sought to create a place for reflection and learning, where the architecture would become a symbol of India’s intellectual heritage. The Institute was envisioned as a space for preserving Indian culture while pushing the boundaries of architectural design during a time when modernist ideals were gaining prominence worldwide. B.V. Doshi, who worked with both Le Corbusier and Louis Kahn, managed to harmonize the international language of modernism with a deep sensitivity to local climate, materials, and cultural expressions. The Institute of Indology bridges past and present, reflecting the nation’s identity and its global aspirations.
B.V. Doshi’s approach to the design of the Institute of Indology is a striking example of how modernism can be adapted to regional contexts. The building’s form is defined by a minimalist geometry, with large cuboidal volumes reflecting modernist architecture’s order and clarity. However, unlike many of his Western contemporaries, Doshi’s design profoundly responds to India’s local climate and vernacular traditions.
The Institute’s spatial organization reflects a harmony between indoor and outdoor spaces, an essential feature in Indian architectural tradition. The building is set amidst lush green surroundings, with open courtyards and shaded walkways that provide natural ventilation and passive cooling—critical features in Ahmedabad’s hot, arid climate. Doshi incorporated various environmental strategies, including deep verandas and overhangs, to mitigate the harsh sun, thus creating comfortable interiors without mechanical air conditioning.
Doshi’s choice of materials—brick, concrete, and local stone—reinforces the building’s connection to its context. The earthy tones of these materials help integrate the structure into its natural surroundings while creating a sense of timelessness. The simplicity of materials and form is balanced by the intricacy of spatial relationships, where each room leads naturally to the next, inviting physical movement and intellectual exploration.
The Institute of Indology Cultural Expression
The Institute of Indology is more than just a repository for knowledge; it is a symbolic representation of India’s rich cultural and philosophical traditions. In many ways, Doshi’s design draws inspiration from ancient Indian temple architecture. The arrangement of spaces, with central courtyards and a sense of progression from one area to another, echoes the layout of traditional temples, where movement through space reflects a spiritual journey.
Doshi’s design subtly alludes to the importance of knowledge, with the building becoming a metaphor for learning and discovery. The central courtyard, open to the sky, can be seen as a symbol of enlightenment, allowing natural light to penetrate the heart of the building. The interplay of light and shadow within the building’s spaces reinforces the idea of knowledge being brought to light through intellectual pursuit.
In Doshi’s hands, architecture becomes a medium for expressing India’s cultural identity. The Institute of Indology reflects Indian values of simplicity, introspection, and respect for nature while also engaging with global modernist trends. Doshi’s ability to merge these two seemingly disparate influences into a cohesive whole is a hallmark of his architectural genius.
Impact and Legacy
The Institute of Indology has had a profound impact not only on Indian architecture but also on the broader discourse surrounding modernism in the global south. At a time when modernism was often associated with the rejection of tradition, Doshi’s work demonstrated that it was possible to create a modern architectural language that was deeply rooted in local culture and history.
The building’s reception was overwhelmingly positive, with critics praising Doshi’s sensitive integration of modernist principles with Indian traditions. The Institute became a crucial project in Doshi’s career, contributing to his eventual recognition as one of India’s leading architects. In 2018, Doshi was awarded the prestigious Pritzker Architecture Prize, and the Institute of Indology remains one of the defining works that exemplify his approach to architecture as a social and cultural tool.
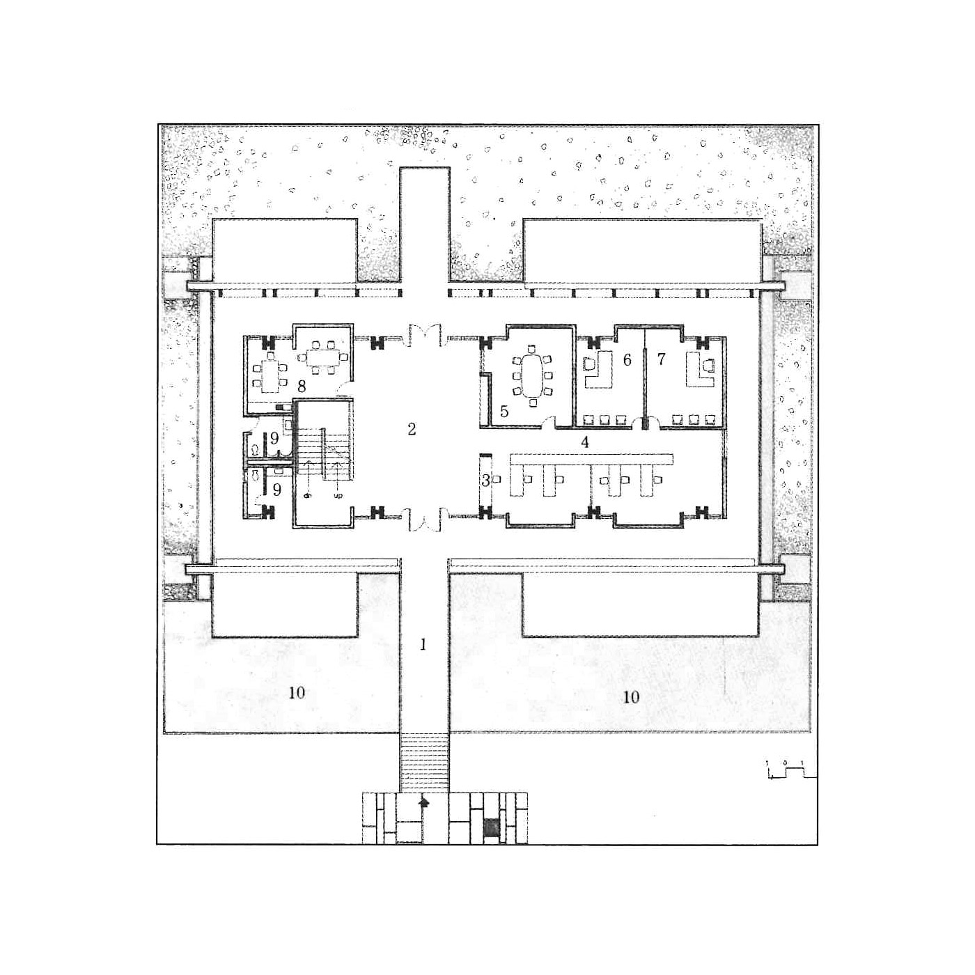
Institute of Indology Plans
Institute of Indology Section | © B.V. Doshi
Floor Plan | © B.V. Doshi
Elevations | © B.V. Doshi
Institute of Indology Image Gallery
About B.V. Doshi
Balkrishna V. Doshi (1927–2023) was an influential Indian architect and urban planner known for his innovative approach to modern architecture, deeply rooted in Indian culture and traditions. A protégé of Le Corbusier and Louis Kahn, Doshi blended modernist principles with a sensitivity to local climate, materials, and social context. His work spans residential, institutional, and urban projects, focusing on sustainability and affordability. In 2018, Doshi became the first Indian architect to receive the prestigious Pritzker Architecture Prize, solidifying his legacy as a pioneer of modern Indian architecture.
Design Team: B.V. Doshi & Vastu-Shilpa Consultants
Engineers: Stup Consultants
Climate considerations: Hot, arid climate
Materials used: Brick, concrete, local stone
Notable design features: Central courtyards, passive cooling techniques, shaded walkways
客服
消息
收藏
下载
最近





















