查看完整案例

收藏

下载
Многоэтажные временные дома © Hiroyuki Hirai
Многоэтажные временные дома
/ Multi-storey temporary housing
информация:
статус
проект
даты
2011
место
Япония
,
Онагава
функция
Жилой
/
многоквартирный дом
Сигэру Бан
/
Shigeru Ban / Япония
Многоэтажные временные дома © Hiroyuki Hirai
Архи.ру об этом объекте:
В Онагаве закончено возведение многоэтажных временных домов и общественного центра по проекту Шигеру Бана. Все эти постройки предназначены для жертв землетрясения 2011 года.
Многоэтажные временные дома © Hiroyuki Hirai
Многоэтажные временные дома © Hiroyuki Hirai
Многоэтажные временные дома © Hiroyuki Hirai
Многоэтажные временные дома из контейнеров в Онагаве, Япония. 2011. Фото: Hiroyuki Hirai. Предоставлено Shigeru Ban Architects
Многоэтажные временные дома © Hiroyuki Hirai
Многоэтажные временные дома © Hiroyuki Hirai
Многоэтажные временные дома © Hiroyuki Hirai
Многоэтажные временные дома © Hiroyuki Hirai
Многоэтажные временные дома © Hiroyuki Hirai
Многоэтажные временные дома © Hiroyuki Hirai
Многоэтажные временные дома © Hiroyuki Hirai
Многоэтажные временные дома © Hiroyuki Hirai
Многоэтажные временные дома © Hiroyuki Hirai
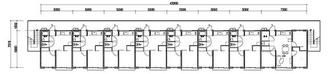
Многоэтажные временные дома © Shigeru Ban Architects
Многоэтажные временные дома © Shigeru Ban Architects
Многоэтажные временные дома © Shigeru Ban Architects
Многоэтажные временные дома © Shigeru Ban Architects
Многоэтажные временные дома © Shigeru Ban Architects
Многоэтажные временные дома © Shigeru Ban Architects
Многоэтажные временные дома © Shigeru Ban Architects
客服
消息
收藏
下载
最近





















