查看完整案例

收藏

下载
艾克建築設計 | 「紅」·經典潮菜(深圳店)謝培河新作|隱藏在深圳博物館心髒的一抹紅
Red Classic Chao Cuisine, Shenzhen by AD ARCHITECTURE
A taste of red hidden in the heart of Shenzhen Museum
胭脂璀璨 包裹於鬧市中的寧靜一隅
Brilliant carmine hue Embraced by the tranquility in the downtown city
經典潮菜坐落於深圳博物館內,建築主體潛藏於京基100塔尖下的文物,新舊碰撞啟動餐廳,一館藏天下之韻。該館是特區建立之初設立的八大文化設施之一,在上世紀80年代被譽為國內最現代化的博物館,並被稱為“深圳改革開放十大曆史性建築”。
Near the KK100skyscraper, Red Classic Chao Cuisine selects its venue in anancillary building of the Shenzhen Museum of Ancient Art, which blends the old and new, brimming with versatile charm. The museum is one of the eight significant cultural facilities built since the establishment of the Shenzhen Special Economic Zone, hailed as one of the best modern museums in China in the 1980s and one of “thetop ten buildings of reform and opening up in Shenzhen”.
隨著深圳市文體設施規劃建設的加快推進,為更好的響應深圳城市規劃屬性,本案調性緊貼落位屬性及品牌商業屬性,用東方紅結合潮汕底蘊詮釋潮菜形構,脈絡,以及菜品的熟練度,既精致洗練,又穩健詮釋了胭脂璀璨。在這極具美學的新潮菜與充滿建築詩意的空間環境下食色饕殄,身臨淵博之境品鑒舌尖,仿佛將身心包裹於鬧市中寧靜一隅的典韻。——一種融合的視角,一個全新的現代館區餐飲運營生態界麵,於城市的繁華中氤氳而生。
Keeping abreast of the rapid development of the planning and construction of cultural and sports facilities in Shenzhen and responding to the urban planning of Shenzhen, the restaurant’sdesign fully takes into considerationits locality and brand features,andcombines a touch of brilliant rouge with the cultural context of Chaoshan to interpret a space for fine Chaoshan cuisine experiences through exquisite, concise, and matureexpressions. Dining in such a profound ambiance infused with new Chaoshan cuisine aestheticsand poetic architectural sense, the mind and body are embraced by the tranquility at a corner of the bustling city. From an integrated perspective, a brand-new operation mode of a modern restaurant in a museum area emerges and stands out in the prosperity of the downtown city.
荷塘悅色
一池秋水映芙蓉 可愛深紅愛淺紅
Lotus pond scen
Blooming flowers reflecting in the pond reveal red with different saturation
“四季輪換景隨時異,境由人定,在新舊與藝術,人文的土塘上構築空間氤氳”。小院竹籬,春水秋月,雖由人作,宛自天開。畫中有境,境中有畫,移步意境,踏步山水中覽盡荷塘悅色,途中八角亭點綴一園景色,任憑小徑引領著向餐廳入口尋尋步進石獅駐守的祥瑞之境,佳境隱序。AD艾克建築設計基於人口紅利消失,消費謹慎,行業內卷的大背景下,鎖定消費人群,對空間進行人群屬性定位,並貼合新舊交替的城市規劃群,在平和中製造張力。空間處理上向細處察,向遠處觀,不論身在空間何處,都可以在綠影搖曳的視線餘光中切換內外感受。
Surrounded by a vibrant natural environment, the mellow space is created based on the combination of the old and new, art and humane. The yard built with bamboo fences is like a masterpiece of nature. Stepping into the multilayeredpicturesque landscape, visitors will enjoy the lotus pond scene, encounter an octagonal pavilion and a path leading to the restaurant, a secluded place withChinese guardian lionssitting at the entrance. In the context of the shrinking demographic dividend, prudent consumption, and fiercely competitive market, AD ARCHITECTURE conceivedthe space based on the target customers andtook account ofthe integrationof the old to the new in urban planning to create tension in the peaceful space. With delicate design in detail and a big-picture vision, visitors will enjoy an alternation between indoor and outdoor experiences anywhere in the restaurant filled with swaying shadow of greenery.
碧瓦朱簷 入門一徑小迂回 殿後鞓紅色漫穠
Gray tiles and vermilion eaves A winding path leading to the luxuriant red hall
踏過悠悠小徑,穿越滿園旖旎。空間情緒強調與室外綠境連廊的聯係以及相對年輕的構體張力形成強烈的色彩對衝,連廊與穹柱拉長空間距離,狹長進深形成的慢鏡頭感。大廳的構成以牆麵紅色藝術漆進行幾何構成分割,創作者對體塊張弛有度的克製,將塊麵和線條及光線以結構學的視角最大程度地進行幾何符號詮釋。
Passing through the winding path, the guests will encounter the restaurant entrance. The space design emphasizes the connection with the outdoor garden landscape and corridor, and creates a strong color contrast with structures as the media. The entrance elongated by the corridor and columns becomes narrow and long, which creates a slow-motion illusion. The hall is defined by red wall coatings and a restrained scale of structures, where the block, plane, line, and lighting are interpreted as geometric expressions from a structuralist perspective to the greatest extent.
室內柱廊數組排布廊道,通透彰顯,除了滿足用餐功能之外,載體平和的氛圍在紅韻中裂變而出,在室外形成強烈的幾何秩序感,分布的天花燈箱根據幾何變換來強調空間的解構性,這是一種整合幾何構體的張力。空間大量運用紅色烤漆、原木色係與質樸的青磚,現代與傳統元素的碰撞、歲月沉澱與新生裂變碰撞的韻味油然而生。
The interior colonnade formsthe corridor to create spatial permeability. Except for meeting the dining needs, thespaceachievesa strong sense of geometric order in the peaceful red palette, and the ceiling light boxes emphasize the deconstructionof space through geometric transformations, creating a tension that integrates geometric structures. The combination of red paint, wood color, and graybrickssymbolizes the collision between modern and traditional elements,and the charming coexistence of the old and new.
瞬息萬變
最食人間煙火色
觚觥交錯杯杯盡
ver-changing
The unchanged fun of life is enjoying the tasty food and wine
環繞視覺,味覺,聽覺的觀感漫步其中……慢慢滲透至醇厚濃鬱的餐飲氣氛。氣味在空間中是被充當傳達物理現象的一種介質,在設計的思考中,空間大幅度的幾何式切割,留白的園林與室內設計,在「小家碧玉」的空間觀感上,在與「紅」對潮菜的演繹,尺度,對話上,艾克建築認為氣味就是一種顯性的與空間兼容的五感體驗,應該作為空間中看得見的主體來呈現。
A strong dining vibe conveyed by smell permeates thespace, offeringimmersive visual, taste and auditory experiences. The large area of geometric divisionsand blank surfaces ininterior design create aprettyspace form that dialogues with the red tonesymbolizing Chaoshan cuisine. AD ARCHITECTURE believes that smell, as an explicit experience of the five senses compatible with space, shall be highlighted as a visible presence in space.
餐飲上驚豔在白灼的脆鮮、生猛勁道,有賴於刀工、陳列、精細、別致,亦得以無比綿軟細嫩後再冰鎮定型,質地圓潤中見清甜、濃腴之味。刀工火候,五位調和,不僅是潮汕人處理食物的方法,更隱含著他們的烹飪審美和處事哲學,為品牌客戶忠誠度及溢價奠定了穩定基石。
The delicacy of Chaoshan cuisinelies in the fresh ingredients, skillful cutting, andcurated plating. The cutting skills, duration and degree of heating, and coordination of different tastes are not only about the cooking approach of Chaoshan people but contain their culinary aesthetics and life philosophy, laying a fundamental foundation for patron loyalty and pricing of the brand.
大開大闔 鳳凰上擊九千裏 半江瑟瑟半江紅
A n open layout A magnificent and innovative dining destination
主空間設計結構為區別於傳統的“博物館/館區式遊客導向”路徑,AD項目團隊提出以客群生態構建、發展社群式興趣粘性為路徑,構建城市新餐飲設計營銷建設方式。通過發掘地域文化背景特色,發揚現有生態環境優勢,以打造餐飲空間,營造社群,建設空間載體,吸引廣大民眾的形式打造輻射域,促進曆史建築發展的無界聯動。主空間中的行為是主體,行為的發生所衍生的空間規劃行為是內核。
Different from the traditional “museum tourist-oriented” strategy, AD ARCHITECTURE proposeda new catering marketing strategy of constructing “a customer group system” and developing “customer stickiness by interests of the community”. By excavating the regional cultural context characteristics and carrying forward the existing ecological environment advantages, the design team intendedto create a dining space, a community, and a spatial carrier to attract patrons and exertcertain influences to facilitate the cross-over connection with the historical and cultural architecture. Taking the activity in space as the clue, the space layoutis derived from user behaviors.
設計思考上這一部分我們精準定位客群背景最敏感的空間要求,打破周邊餐飲產品結構及同質化問題,使空間語言及材質與光影的呼應將大廳餐飲氛圍感拉滿,手法上將體塊大開大合,在空間上演幾何符號的構成遊戲。當人在空間中獲得愉悅,意味著不屬於真實的遊戲規則在產生價值,並且使人們在這個遊戲中獲得利益。我們希望空間完成從“構建客群生態”到孵化空間載體,與時代背景下生活方式的轉化,與城市本身的人文情懷一並融入潮汕的筋骨和氣血。
The design team graspedthe most sensitive space requirements of the customer group and broke away fromthe homogeneous structure and form of surrounding restaurants. The dialogueof space language, materials, light and shadow maximize the dining vibes of the hall,and the open layout creates a game constituted by geometric symbols. The pleasure gained from the space is the significance and benefits for guests producedby this intangible game. Beyond theconcept of “constructing a customer group system”, the design team hopes to turn the space intoa medium that driveschangesinthe contemporary lifestyle that blends into the soul of the Chaoshan spirit andthe humanistic sentiments of the city.
二樓進入我們視野的是前台接待與水吧功能結合的多功能服務區,開放式的露台坐擁人間煙火,吧台頂部用當代的幾何造型與手工編製的家具及戶外家居編織質感的手藝進行碰撞,幾何符號圍合出了讓人具有探索欲望的空間情境。笑看清淺流年,曲徑通幽,張揚且含蓄,一場東西方美學與哲學的碰撞。
Up to the second floor, what comes into view first is the multifunctional area composed of the reception counter and water bar. The open terrace enjoys a pleasant ambiance. The contemporary geometric form above the bar counter contrast withthe handmade rattan furniture and outdoor woven structures, creating aspace atmospherethat encourages people to explorethrough the use of geometric symbols. The bold yetrestrained design generates the collision between Eastern and Western aesthetics and philosophy.
包羅萬象
名館雅格待高朋 迭進呼應相縱橫
All-embracing
An elegant restaurant to receive friends with its echoing and collision charm
以【氣韻生動】和【起承轉合】來控製節奏和韻律。是化,是無,是空,是間,是微,是合,是生,是氣。空間的一分一步都有它的使命所承。城市幕景包羅萬象,包房強調與周圍環境的對話,以分割比例為建造語言對話建立青磚幕牆,整體強調舒適,強調人與人的互動與交流。
With vibrant and coherent rhythm, each part of the space plays its role. Set against the all-inclusive urban backdrop, the private dining rooms dialogue with the surroundings, and interact with the gray brickwork wall through structural divisions and proportions. The design highlights an overall comfortable and interactive environment, as well as communication among diners.
室外綠色與室內紅色的呼應感,具有漢代東方的色彩韻味。以一種不規則的空間形態出現,像自然圍合又像建築的延伸,像意外又像有意而為之,營造了意外的確定感。空間構成理念是一個被折斷掏空的雕塑體,讓現實變得虛幻。而這樣誇張的表達方式,離不開藝術的張力。
The outdoor greenery echoeswiththe indoor red tone,whichrevealsthe eastern color charm of the Han Dynasty. The irregular spatial form appears as natural enclosures or an extension of the building. Coincidentally or intentionally, it creates an unexpected sense of certainty. The interior design concept takes inspiration from a broken and hollowed sculpture, making the reality illusory. This bold and exaggerated expression is inseparable from the tension of art.
設計團隊對漆藝材質的表現形式進行實驗性的創作,用大麵積漆藝貫連空間,意外的擁有混凝土的質樸,同時也擁有了華麗的視覺。結合地麵木地板與收口金屬材料的碰撞,軟硬的互相推讓與和諧,冷暖色彩的交替,收口的細節,表現的是整體產品平和與熱鬧的和諧,並將熱烈、響應、對衝等元素融入空間的建造體係中。
The design team experimentedwith lacquer art in an innovative way. The large area of lacquer art throughout the entire restaurant unexpectedly retainsthe simplicity of concrete and meanwhile generatesa gorgeous visual effect. The contrast between the wood flooring and metal edging, the harmonious coexistence of hard and soft textures, the alternation of warm and cold colors, as well as the edging details,present a peaceful and lively harmony and integrate various contrasting, resonating elementsin the space.
紅色記憶
笑看清淺流年事 纂刻時光鍍年華
Red memory
Retrospect the past beautiful memories and depict the future
空間整體動線考慮到消費者的消費動機,我們結合空間整體主替功能做了合理性規劃,最終呈現結合功能布局做整體響應。是AD艾克建築設計團隊在用西方的設計秩序來建樹東方的空間情緒與哲學。餐廳的整體設計語言促進館區啟動轉型融入新消費模式生態:提供多媒介多感官體驗,在線流量推動線下體驗,空間加強消費客群粘性,助力潮菜品牌推廣。這也是AD全案策劃團隊的服務宗旨。
The guests’ consumption motivewasa key consideration in the circulation design, so the design team worked out a rational layoutbased on the main and auxiliary functions of the overall space. AD ARCHITECTURE usedWestern design order to build Eastern spatial sentiments and philosophy in the restaurant space. The overall design language of the restaurant introduces a new consumption mode into the library area to drive its operational transformation.The restaurant offersa multi-media and multi-sensory experience and improvesthe offline experience through online media promotion.The space design aims to increase consumer stickiness and promote the Chao cuisine brand, which is exactly the objective ofAD ARCHITECTUREin this project.
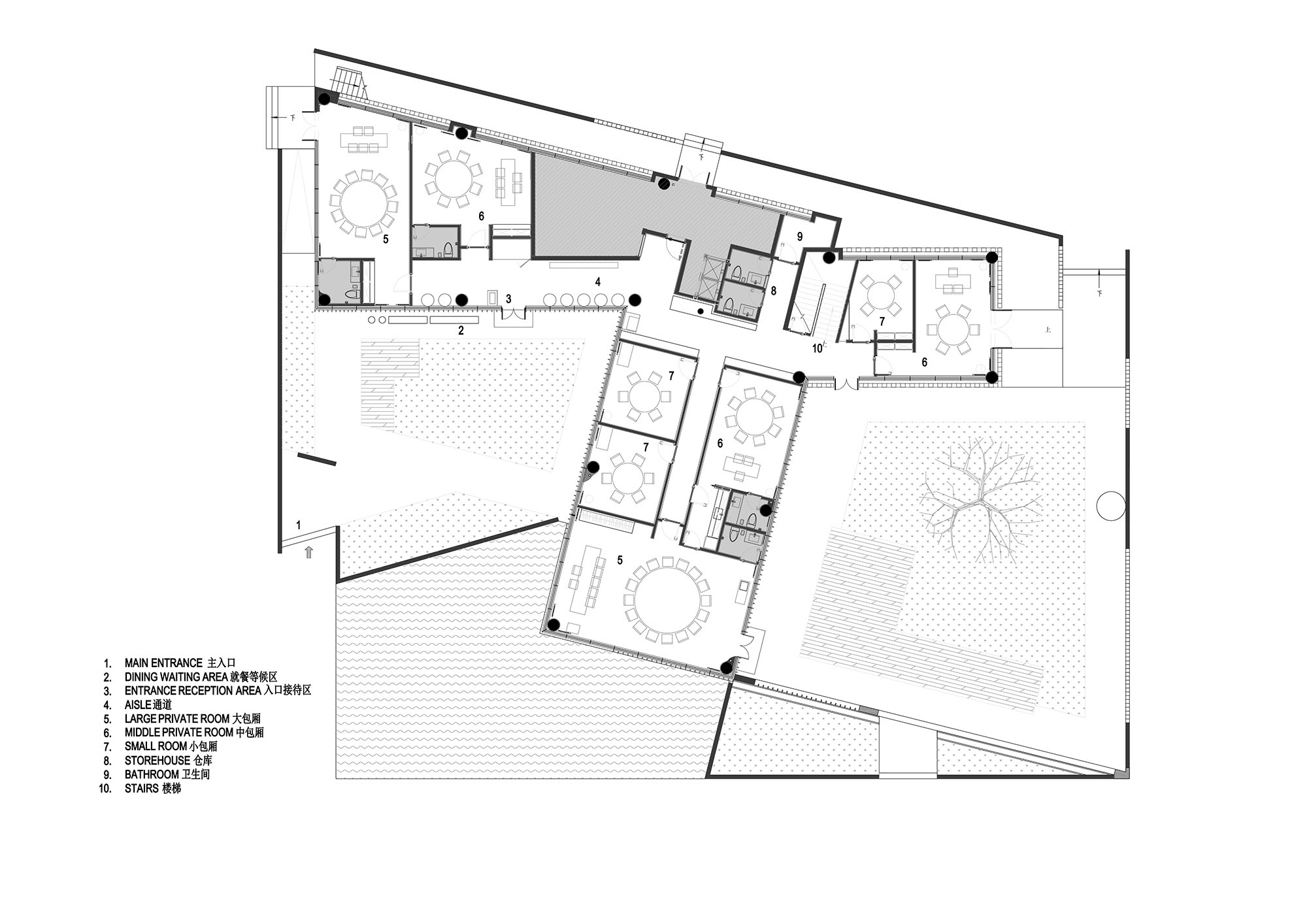
∇ 平麵圖 1F © 艾克建築設計 Plan 1F©AD ARCHITECTURE
∇ 平麵圖 2F © 艾克建築設計 Plan 2F © AD ARCHITECTURE
項目信息
項目名稱:「紅」·經典潮菜(深圳店)
項目業主:深圳市潮膳薈餐飲
設計機構:AD ARCHITECTURE|艾克建築設計
總設計師:謝培河
項目地點:深圳
建築麵積:600 ㎡
主要材料:不鏽鋼、亞克力、岩板、意大利手工漆、定製木地板
設計時間:2023年1月
竣工時間:2023年5月
項目攝影:歐陽雲
Project name: Red Classic Chao Cuisine, Shenzhen
Client: Shenzhen Chaoshanhui Catering Co. Ltd.
Design firm: AD ARCHITECTURE
Chief designer: Xie Peihe
Location: Shenzhen
Area: 600 sqm
Main materials: Stainless steel, acrylic, sintered stone, Italian handmade paint, bespoke wood flooring
Design time: January 2023
Completion date: May 2023
Photography: Ouyang Yun
客服
消息
收藏
下载
最近


















































