查看完整案例

收藏

下载
Gymnastic Hall in Davos,
BY JUNG
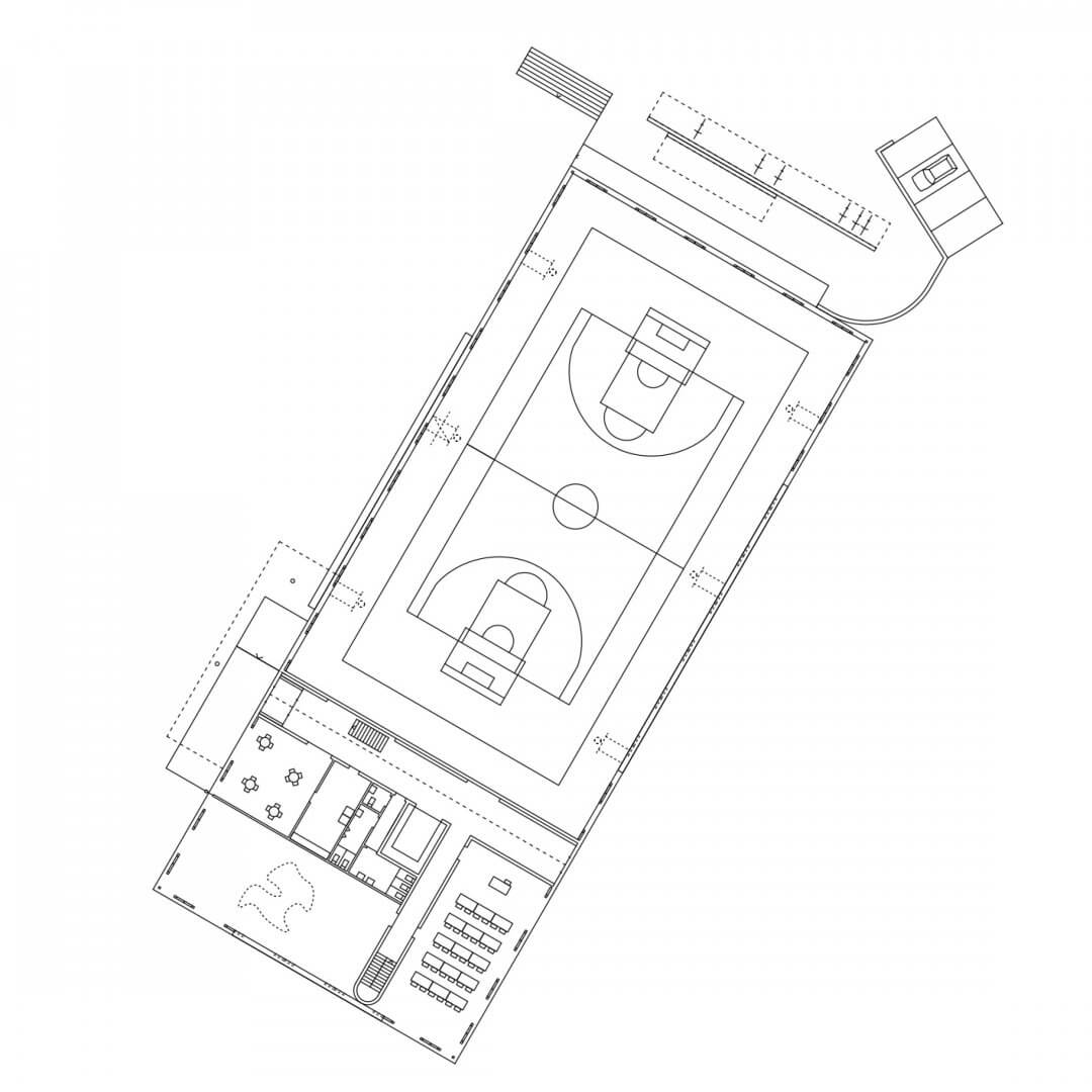
l nuevo polideportivo se sitúa en el contexto de un asentamiento escolar existente. El edificio está organizado funcional y eficientemente, bajo un gran techo.
El nuevo polideportivo triple se sitúa en el contexto de un asentamiento escolar existente. A través de su posicionamiento, el edificio define cuidadosamente los límites del patio escolar existente, creando una nueva área central para la institución.La mitad del nuevo edificio es subterráneo. Desde el patio de la escuela, solo se puede ver un edificio de un solo piso: un volumen horizontal que crea un cuidadoso diálogo de volúmenes con los edificios de varios pisos existentes. La nueva sala es un edificio transparente: una construcción ligera de acero y vidrio que proporciona una fuerte relación entre el patio de la escuela y las actividades deportivas que se desarrollan en su interior.
El polideportivo es accesible desde el patio de la escuela. La entrada está definida por una marquesina prominente, un elemento arquitectónico que brinda protección y una dirección clara para el edificio. En el interior, el polideportivo está organizado funcional e intuitivamente, bajo un gran techo.
Bajo tierra, el edificio está hecho de hormigón in situ: una base sólida para la construcción de acero repetitiva y rentable colocada en la parte superior. Mientras sostienen y estabilizan el techo, la serie de columnas Λ a lo largo del perímetro le dan carácter al polideportivo.
BY JUNG
byjung.ch
Davos, Suiza.
2018
Neubau Dreifachturnhalle Schulhaus Davos Platz
客服
消息
收藏
下载
最近








