查看完整案例

收藏

下载
Современная вилла в Сочи
Двухэтажный загородный дом в Дагомысе с элементами лофта и минимализма
Автор проекта: Паунич Елена
Соавтор(ы): Палкина Екатерина
Объект: Современная вилла в Сочи
Общая площадь: 700 кв.м.
Уникальные характеристики обьекта
минималистская вилла на Черном море
планировка с учетом сторон света и вида на море
курортный интерьер для заказчика из северного региона
брутальные фактуры, живая текстура дерева, прохладная дымчатая палитра и элементы стиля лофт
Двухэтажный дом построен на крутом склоне и спускается к морю террасой. Лаконичный дизайн, простая прямоугольная форма, большая плоскость остекления позволяют архитектуре слиться с ландшафтом.
Фасад дома зашит композитными панелями на металлической подсистеме с фактурой дерева и камня.
Особенность архитектуры – большая плоскость остекления, для максимального комфорта было использовано термоизоляционное стекло SUNGLASS с серым фотофильтром. Все панорамные окна на первом этаже можно раздвинуть и объединить улицу и пространство внутри дома.
Дом построен на сложном рельефе. Парковка находится на девять метров ниже первого этажа дома, в цокольной части под землей, а за жилыми этажами возвышается большая подпорная стена, поддерживающая верхний склон.
Терраса и открытый бассейн вытянуты вдоль главного фасада и ориентированы на море.
Терраса с видом на Черное море. Мебель-outdoor, Atmosphera.
Южный дом с северным колоритом. В гостиной напротив дивана Flexform находится двухметровый газовый камин, встроенный в стену. Огонь видно даже с террасы, через большие панорамные окна.
В гостиной использованы стеновые панели из шпона ореха. В них встроены двери-невидимки из того же материала. Подвесные светильники, Arte Lamp.
Общая гостиная-столовая с панорамными окнами и видом на море. Обеденный стол сделан на заказ, столешница выполнена из цельного слэба дерева, привезенного хозяином из Карелии. Люстра, Serip.
Общая гостиная с панорамными раздвижными окнами. Из них можно попасть на террасу и в зону барбекю, которая ориентирована на запад, чтобы любоваться закатами. Диваны, кожаные кресла, Flexform. Журнальный столик и стулья у обеденного стола на заказ. Подвесные светильники, Arte Lamp.
В гостиной использованы стеновые панели из шпона ореха. В них встроены двери-невидимки из того же материала.
В оформлении гостиной использован шпон ореха и микроцемент. Вместе они создают в меру брутальный интерьер с северным колоритом. Стена за обеденным столом из матового стекла, за ней – поддерживающая склон плита.
Кухня примыкает к гостиной, но спрятана за встроенной в деревянную стену раздвижной перегородкой.
Фактуры дерева и бетона формируют строгий, лаконичный образ кухни. Плита, Smeg.
Кабинет занимает центральное место на втором этаже. В нем сделаны большие потолки и огромные окно с фронтальным видом на море. Рабочее кресло, Caracole. Торшер, Lussole.
Двухэтажная современная вилла на берегу Черного моря. Хозяйская спальня.
Хозяйская спальня имеет угловое панорамное безрамное остекление и выход на балкон. Кровать, IL Loft. Кресло, Caracole. Комод под телевизор сделан на заказ.
Между спальней и ванной комнатой установлен туннельный газовый камин. Через стекла и огонь очага оба помещения прекрасно просматриваются. Стена облицована серым камнем.
Хозяйская ванная комната. Сантехника, Laufen. На стенах – крупноформатный керамогранит с фактурой камня.
Хозяйская ванная комната. Душевая кабина встроена в стеклянный куб. На деревянном подиуме находится гидромассажная ванна. Стена в душевой облицана плиткой с фактурой кортеновской стали.
Ванная комната оснащена газовым камином. Он размещен прямо рядом с гидромассажной ванной Jacuzzi. По другую сторону от нее – панорамный витраж с видом на море.
СПА-зона при хозяйской спальне.
Жилые помещения второго этажа выстроены вдоль главного фасада. Двери в них спрятаны в общую систему стеновых панелей.
Интерьер одной из гостевых спален. Помещение оформлен в едином для дома стиле с использованием дерева и фактуры бетона. Акцент – обтекаемые формы кровати и красный текстиль.
Гостевая спальня. Зона сна и ванная решены в едином пространстве. Деревянная перегородка отделяет гидромассажную ванну, Jacuzzi.
Санузел при гостевой спальне. Сантехника, Laufen. Инсталляции, Geberit.
Вход в дом из гаража. Парковка находится на девять метров ниже первого этажа дома, в цокольной части под землей. Интерьер выполнен в стиле лофт.
Дегустационная зона в цокольном этаже. Слева – стеллажи для вина, бар и мини-кухня. Справа – зона отдыха с большим столом.
Интерьер винотеки выполнен в брутальной стилистике лофта. На стенах – бетон. Стол и стеллажи из темного дерева и черного металла.
Мужская гостиная с синими диванами и современной фреской.
Интерьер гостевого санузла с природным серо-дымчатым колоритом.
Под землей ниже первого этажа, стены лифтовой шахты и лестничного холла бетонные, выше – появляются фасадные окна, откуда можно видеть море.
Элемент отделки лестницы – архитектурная подсветка ступеней с системой контроля датчиков движения. Подсветка каждой ступени загорается по очереди, после того как человек ступил на предыдущую.
Тренажерный зал находится на первом этаже, его окна ориентированы на восток. На стенах и двери – финишная отделка микроцементом.
Интерьер гардеробной. Фасады встроенных шкафов и потолок отделаны под бетон.
Южный дом с северным колоритом. Интерьер санузла с бетонной отделкой.
Современная вилла на море. Интерьер санузла. Сантехника, Laufen.
СПА-зона с хаммом находится на перовом этаже рядом с тренажерным залом и входит в блок «бодрящих» помещений, ориентированных на восток.
Открытая терраса загородного дома с видом на Черное море.
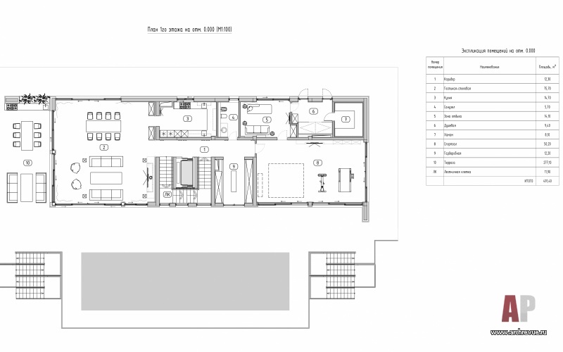
План первого этажа двухэтажного современного дома на Черном море. Общая площадь – 700 кв. м.
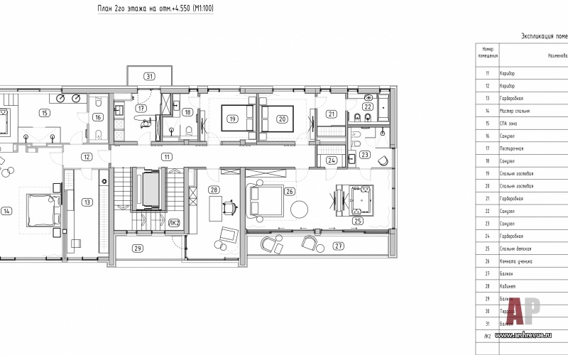
План второго этажа двухэтажного современного дома на Черном море. Общая площадь – 700 кв. м.
Концепция
Архитектор-дизайнер Елена Паунич спроектировала интерьер загородной виллы в Дагомысе, оформила фасады и прилегающую территорию и придала современной архитектуре здания еще более выразительный вид. Двухэтажный дом общей площадью 700 кв. м расположен на склоне холма, архитектор подключилась к работе на стадии бетонного каркаса.
Исходная форма дома была по-минималистски проста и в то же время чрезвычайно сложна: большие перепады высот природного рельефа диктовали свои жесткие условия. Структура дома такова, что парковка находится на девять метров ниже первого этажа дома, в цокольной части под землей, а за жилыми этажами возвышается большая подпорная стена, поддерживающая верхний склон. Связующим стержнем является лифтовая шахта с лестницей, которая по мере подъема получает естественное освещение через панорамные окна с видом на море. Надо сказать, что в этом доме едва ли не все окна жилых помещений панорамные, и все обращены на водную гладь. При работе над проектом авторы затронули архитектуру и внешнюю отделку дома. Фасад оформили композитными панелями на металлической подсистеме: такой вариант стал оптимальным при жестких временных рамках и бюджете. «Заказчик хотел закончить дом как можно быстрее, поскольку к моменту, как мы зашли на объект, он строился уже несколько лет», - отмечает Елена Паунич. Особенность архитектуры – большая плоскость остекления, для максимального комфорта было использовано термоизоляционное стекло SUNGLASS с серым фотофильтром. Кроме того, все панорамные окна на первом этаже можно раздвинуть и объединить улицу и пространство внутри дома, убрать границу между природой и жилой средой – а именно в этом и заключается главная задача современной архитектуры.
Планировка
Планировка двухэтажного дома подчинена расположению моря и движению солнца. Первый этаж занимают общественные помещения: на восточной стороне, где всходит солнце, архитектор спроектировала большой тренажерный зал со СПА-зоной, хаммамом и душевой, а на западной – большую общую гостиную со столовой и зоной барбекю на террасе, откуда так приятно любоваться закатом.
Большинство спален на втором этаже обращены на юг и имеют фронтальный вид на море, санузлы и вспомогательные помещения ориентированы на север и выстроены вдоль подпорной стены. Центральное место в объеме второго этажа занимает кабинет хозяина: он имеет увеличенную высоту и огромное панорамное окно. Здесь хозяин наслаждается одиночеством или принимает гостей. Терраса и открытый бассейн расположены вдоль главного фасада, они подчеркивают вытянутую архитектуру здания.
Декор
Заказчик – любитель северного колорита и умеренно брутальных фактур. Большую часть времени он проживает в Карелии, поэтому в доме на южном побережье хотел воссоздать привычную атмосферу. Поэтому в оформлении использован бетон цвета пасмурного неба и дерево в темных, густых оттенках крайнего Севера.
Несмотря на большой метраж и разную функциональную нагрузку интерьер дома получился необычайно цельным. Дерево, преимущественно шпон ореха, необработанный бетон или финишная отделка микроцементом, натуральный камень дымчатого цвета, черный металл и стекло – вот основные материалы, которые визуально объединяют пространство. Одним из пожеланий заказчика были газовые камины в гостиной и мастер-спальне. Так появился большой двухметровый камин напротив диванной группы, который видно даже с террасы через большие панорамные окна. А также туннельный камин между спальней и ванной комнатой: через стекла и огонь очага оба помещения прекрасно просматриваются. Мужской характер интерьера подчеркивают элементы лофта, которые наиболее отчетливо просматриваются в помещениях цокольного этажа.
Комплектация объекта
Строительные и отделочные материалы и изделия
Изделия из дерева, стеновые панели из шпона ореха, встроенная мебель, компания «Греков&Кот»
Двери Invisible, потолочные и стеновые панели, поставщик «Софья»
Текстильный дизайн, компания KS - studio
Напольная плитка Colorker
Паркет, поставщик «Олимп Паркета»
Свет Serip, Arte Lamp, Lussole, поставщик Zasvet; технический свет, поставщик Centrsvet
Сантехника Jacuzzi, Laufen, инсталляции Geberit
Мебель
Гостиная: диваны, кожаные кресла Flexform, журнальный столик и стулья у обеденного стола выполнены по индивидуальному проекту
Спальня хозяев: кровать IL Loft, кресло Caracole
Кабинет: письменный стол, системы хранения изготовлены на заказ; рабочее кресло Caracole
Терраса: мебель Atmosphera
Поставщик мебели - That’s Living
Мебель на заказ – изготовление «Греков&Кот»
Оборудование
Оборудование кухни: Smeg, мелкая бытовая техника KitchenAid
Фотограф: Михаил Чекалов
Стилист: Зарина Калинина
客服
消息
收藏
下载
最近












































