查看完整案例

收藏

下载
>125㎡白色极简风 | 强迫症的福音来了
125㎡白色极简风 | 强迫症的福音来了
参考造价:
35万元
风格:极简
空间:三居
面积:125平米
浏览数:908
案例简介
Case description
项目信息 | Introduction
项目位置 :苏州 · 雅戈尔缘邑
项目风格 :原木纯白
项目面积 :125㎡
设计机构 :一道设计
本期屋主是对新手爸妈,女主人还在月子里就找到我们,希望在产假期间可以把一切落实好。对于家,女主人也有自己的执念:“白,统一的白。”
这是当时女主人的原话,看是简单的白色,其实在设计上白色反而是一个苛刻的颜色。不小心就会出现五彩斑斓的白这种情况,不管是家电或者定制品如何能做到白的统一,都是对色彩上的一次挑战,但恰好我们很擅长挑战,从设计到落地,大家看看给这个家打几分呢!
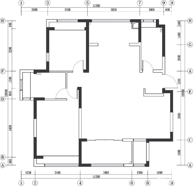
原始户型问题:
1.能否对厨房进行改造让功能更多样、舒适度更高、实现想要大厨房的梦。
2.如何利用主卧空间,想要宝宝一起住也不会拥挤,合理规划功能与储藏。
3.能否在不影响入户格局、舒适度的情况下增加一个休息空间。
4.如何规划好阳台空间,合理规划功能。
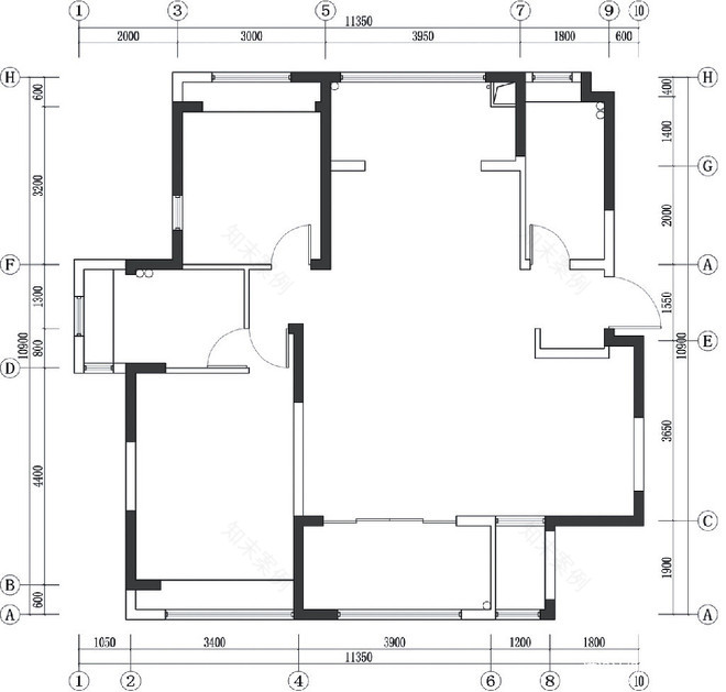
改造后分析:
1.拆除红色区域,拆除飘窗,扩大房间,增加使用面积。
2.拆除黄色区域,打开厨房,实现餐厨一体化。
3.拆除蓝色区域,使客厅更加开阔,增加晾晒区。
4.拆除绿色区域,改变卧室进门位置,设计储藏空间。
5.拆除紫色区域,增加使用面积,柜体设计更灵活。
6.拆除粉色区域,使卫生间实现干湿分离。
整个厅没有做过多装饰的痕迹,墙面以大面积留白为主,辅以局部点缀,营造出简约而不失格调的空间氛围。考虑到层高没有做满吊顶,顶面选择极简吸顶灯辅以四周的灯带。
电视背景上下预留空间形成悬浮视觉效果,既增加了墙面的轻盈感,又提升了空间层次。下方地台可以用来收纳杂物、摆放摆件,电视周边的线路也能巧妙隐藏,保持整洁美观。
以白色为主调的极简风厨房,白色基调对强迫症业主很友好,搭配隐藏式收纳设计,营造出整洁明亮的烹饪环境。
餐厨空间采用一体化,餐桌与岛台衔接,在功能布局上,烹饪区、清洗区与用餐区形成黄金三角,极大提升了使用效率。
餐桌一侧,设计了多功能餐边柜,展示柜与封闭式储物柜,满足不同收纳需求。餐边柜台面延伸出小型吧台区域,可兼作咖啡角或简餐区。
阳台空间采用功能分区设计:一侧规划为洗烘一体区,另一侧巧妙设置在客厅视觉盲区,作为生活晾晒区。这种布局既保证了日常晾晒功能,又确保了从客厅主要视角看不到晾晒衣物,完美兼顾了实用性与美观度。
卫生间墙面和地面通体采用大规格白色瓷砖铺贴,搭配同色系美缝,营造出纯净明亮的空间感,洗漱区采用定制的一体式台盆,台面与盆体无缝衔接,既避免了卫生死角,又提升了整体美观度。
主卧增设了可拼接的儿童床,在确保父母大床舒适空间的同时,方便夜间照看孩子。
床尾设计了一整面多功能收纳柜,采用木色与白色拼接设计,通过镂空与封闭式柜门的巧妙搭配,既满足了大量收纳需求,又打破了视觉上的沉闷感。梳妆台延伸至飘窗上方,不仅扩大了使用台面,还创造了独特的空间延伸效果。
儿童房摒弃过多定制家具,选用可随孩子成长而更换的模块化成品家具。打造了一个具有成长性的空间,使房间能够伴随儿童不同年龄阶段的需求而灵活调整,既满足了当下使用功能,又为未来的改变预留了可能性。
客服
消息
收藏
下载
最近








