查看完整案例

收藏

下载
戈者设计
借鉴工厂建筑和钢结构几何感和谐的仓储式办公楼设计
位于 Ipae-dong 的办公楼设计位于住宅区和工厂之间,是应一家日本酒类贸易公司的要求而建造的。该地块位于京畿道南杨州市梨栢洞,虽然是一般住宅区,但周围是工厂和仓库群。
其独特之处在于,该地块位于城市规划设施内,毗邻现有道路,规划条件非常不利,而且由于是住宅区,存在日照受限、需要解决道路和层高等不利因素。此外,由于周围工业区的噪音和飞扬的尘土,作为办公楼的选址条件也有些令人不舒服。当我到现场考察时,发现现有的建筑已经被拆除,周围是密密麻麻的工厂和仓库建筑,因此我开始担心如何处理新办公楼的形象。
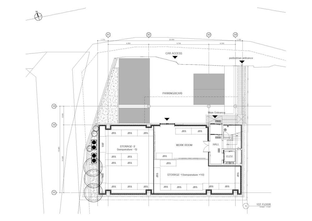
方案 -建筑由地上三层组成,一层为酒类储藏空间,二层和三层为员工或个人工作空间。一栋建筑必须有与其特点相适应的空间构成,同时还必须与外部环境建立不同的关系。一楼的酒类储存空间需要一个考虑到从外部和内部移动叉车进出的流通规划。储藏空间必须划分为低温和常温空间来储存酒精,因此必须在内部安装专门设计的隔热系统墙。所谓隔热系统,是指在混凝土箱内将系统墙做成双层箱形空间。此外,考虑到储存物品较多,必须规划一个层高为 6 米的高空间。
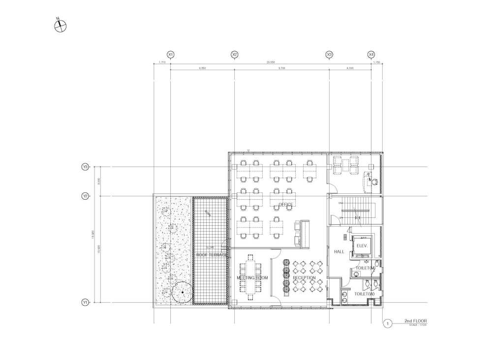
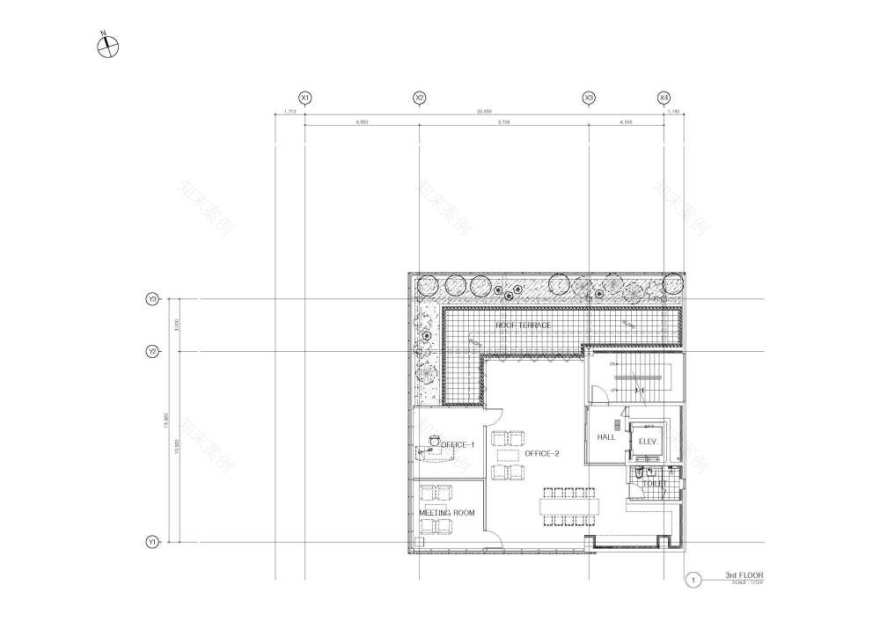
我们希望二楼的工作空间尽可能安静,让人可以一边工作,一边从室内眺望外面的露台。三楼是客户的私人空间,必须将其规划为一个既能阻挡外部视线,又不会让人感到闷热的空间。它被规划成一个带有外部花园的开放空间,这反映了客户尽可能举办活动的偏好。同时,在外部窗户上安装了折叠门,以创造一个可以扩展内部空间并与外部相连的空间。
材料的新方法– 特别是,考虑到该建筑既是储藏仓库又是办公空间,外表皮的设计灵感来自于场地周围的工厂和仓库建筑。虽然这是一座新建筑,但我们希望通过借鉴工厂建筑的简洁体量和钢结构图案的几何感来打造与周围环境和谐的景观。因此,我们没有使用各种外墙材料,而是规划了一个能满足所有特征的单一外墙壳体。裸露的混凝土和冲孔板。
考虑到该建筑作为 “仓储设施 “的基本特征,我们计划全部采用外露混凝土,以表达一种坚实的感觉。我们希望表现出混凝土的坚实感,同时营造出一种精致的氛围。由于办公室是一个工作空间,因此有必要营造一种私密的氛围。我们将外部规划为双层表皮,通过外部营造出各种光线,使外部内部具有纵深感,并创造出一种可以感受到光线变化的外部环境,随着时间的推移,光线会变得更加温暖。此外,虽然从外部看不到穿孔的外墙,但从内部却相对可见,从而确保了私密性,并使风可以通过。
考虑到建筑成本,我们规划了一种外部材料,通过钻孔、弯曲和连接镀锌板(而不是铝板)来感受光线的流动。外壳上的圆孔在垂直方向上均匀规划,以确保适当的开孔率。穿孔外壳的设计开合均匀,最大限度地提高了工作区功能的效率。通过折叠穿孔板,它具有自身的结构刚度,并最大限度地减少了支撑穿孔板的固定辅助材料的数量。此外,这些折叠表面形成了一个立面,根据不同的观察角度,通过点、线和平面引起不同的反应。这些变化与巨大的体量相叠加,每时每刻都营造出不同的深度感。
借鉴工厂建筑和钢结构几何感和谐的仓储式办公楼设计
客服
消息
收藏
下载
最近
















