查看完整案例

收藏

下载
Волны звука
Алёна Кузнецова
Объект: Музыкальная школа в Выборге
Адрес: Россия, Выборг. ул. Кеппа, д. 4
Мастерская: Архитектурное бюро «А.Лен»
Авторский коллектив: Архитекторы: Орешкин Сергей, Андреева Рената, Тимонин Никита, Орешкина Евгения, Ураксин Дамир, Белят Елена, Юмагулова Регина, Лепин Данила, Светозаров Артем, Светозарова Полина, Юлдашева Карима
Эскизный проект музыкальной школы: соседство с Алваром Аалто, выразительная органика и попытка привлечь внимание к слишком «тихому» конкурсу.
В январе этого года администрация Выборга провела конкурс на эскиз музыкальной школы с концертным залом на 500 человек, на улице Кеппа, 4, прямо напротив знаменитой библиотеки, построенной по проекту Алавара Аалто. Конкурс был открытый, но мало освещался в прессе, и поэтому собрал всего пять участников. Среди них по случайности – доброжелатель прислал ссылку с информацией– оказалось и петербургское бюро «А.Лен». По словам Сергея Орешкина, «конкурс прошел настолько кулуарно, что не понятно, зачем было его вообще делать». Победил проект, авторы которого «сумели выразить идею с наименьшими затратами».
Чтобы спровоцировать больший интерес к месту, которое заслуживает общественных слушаний и международного конкурса, бюро «А.Лен» решило показать свое предложение.
Кроме очевидных причин, привлекших внимание «А.Лен» к конкурсу – центр города со статусом исторического поселения, соседство с великим ахитектором, редкая типология – есть еще одна: руководитель бюро Серей Орешкин родился в Выборге, здесь же закончил художественную школу, где «получил наибольший заряд как молодой «предархитектор». Он описывает Выборг как место с уникальной градостроительной планировкой «как из учебника», которая особенно ярко проявлена рядом с участком проектирования.
Ситуационный план. Музыкальная школа с концертным залом в Выборге.
© Архитектурное бюро «А.Лен»
Проспект Ленина, одна из главных осей города, соединяет рыночную и парадную площади, с одной стороны вдоль него идет плотная «петербургская» застройка, с другой – парки и скверы, в том числе и парк-эспланада, где находится библиотека. Напротив нее, на углу Суворовского проспекта и улицы Кеппа, в жилом квартале с невысокими сталинками и будет строиться школа. Она дополнит «рекреационную» полосу вдоль проспекта Ленина и усилит фронт проспекта Суворова, заполнив лакуну.
Музыкальная школа с концертным залом в Выборге © Архитектурное бюро «А.Лен»
Музыкальная школа с концертным залом в Выборге © Архитектурное бюро «А.Лен»
Музыкальная школа с концертным залом в Выборге
© Архитектурное бюро «А.Лен»
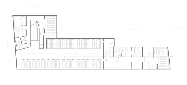
Участникам конкурса нужно было решить, как на относительно небольшом вытянутом участке разместить насыщенное функциями здание без ущерба для логистики происходящих в нем процессов. В эскизе «А.Лен» школа состоит из нескольких блоков разной высоты. Учебный корпус занимает почти половину всего объема, имеет отдельный вход и размещается в дальней от Суворовского проспекта части: окна классов таким образом выходили бы на тихие зеленые дворики. По центру в проекте расположен концертный зал, а ближе всего к библиотеке Аалто – вестибюль со сложной системой лестниц и ярусов.
Музыкальная школа с концертным залом в Выборге © Архитектурное бюро «А.Лен»
Музыкальная школа с концертным залом в Выборге
© Архитектурное бюро «А.Лен»
Организация пространств подчиняется логике функций: потоки детей и приходящих на концерты взрослых разделены, загрузка декораций происходит в «непарадной» части улицы и по возможности скрыта от глаз. Пространство вестибюля приспособлено для «микрособытий» – в различных его уголках можно проводить выставки, чтения, кинопоказы. Для занятий и выступлений на открытом воздухе есть два амфитеатра: один на крыше, второй на маленькой площади, которая «отзвуком» продолжает здание в глубине квартала.
Музыкальная школа с концертным залом в Выборге
© Архитектурное бюро «А.Лен»
Экспрессивная оболочка здания намеренно противопоставлена аскезе библиотеки Аалто. Сергей Орешкин рассказывает, что образ пришел от функции: ламели разной ширины – это стилизованная клавиатура фортепиано. Прием оказался простым, но чрезвычайно емким.
Концепция. Проект Школы искусств г. Выборг © Архитектурное бюро «А.Лен»
Концепция. Проект Школы искусств г. Выборг © Архитектурное бюро «А.Лен»
Концепция. Проект Школы искусств г. Выборг © Архитектурное бюро «А.Лен»
Концепция. Проект Школы искусств г. Выборг © Архитектурное бюро «А.Лен»
Концепция. Проект Школы искусств г. Выборг
© Архитектурное бюро «А.Лен»
Визуализации, где библиотека и школа, разделенные дорогой, друг на друга «смотрят», наводят на мысль о том, что при должном исполнении интересный диалог между шедевром Аалто и новым зданием действительно возможен. В эскизе «А.Лен» школа составляет минималистичному зданию библиотеки «женственную» пару, которая подчеркивает достоинства и раскрывает творение финского архитектора под каким-то новым углом.
Библиотека Алваро Аалто в Выборге © Денис Есаков
Библиотека Алваро Аалто в Выборге © Денис Есаков
Библиотека Алваро Аалто в Выборге © Денис Есаков
Библиотека Алваро Аалто в Выборге © Денис Есаков
Библиотека Алваро Аалто в Выборге
© Денис Есаков
«Женственность» школы ощущается как на уровне «предметном»: ламели напоминают складки, рюши, вуаль, так и на более тонком, бессознательном: изгибы и подстветка заставляют чувствовать тепло, вибрацию, жизнь. «Женственность», вероятно, один из самых явных признаков органической архитектуры, а в этом проекте «органика», к которой бюро тяготеет, но не имеет возможности реализовать, скажем, в жилых комплексах, наконец, звучит в полную силу.
Здания не только противопоставлены, но имеют и связь. Алвар Аалто нередко в своих работах соединял органическую архитектуру и функционализм, кроме того, фамилия архитектора переводится не иначе как «волна», а самая известная часть выборгской библиотеки – волнообразный потолок. С этой точки зрения школу можно рассматривать как явленную зрителю изнанку библиотеки, ее «нутро». Если же продолжать рассуждать о парности зданий, то волнообразный фасад школы и наложенная на него «гофра» напоминает морскую раковину, а библиотека – совершенную в чистоте своей формы жемчужину.
Музыкальная школа с концертным залом в Выборге © Архитектурное бюро «А.Лен»
Музыкальная школа с концертным залом в Выборге © Архитектурное бюро «А.Лен»
Музыкальная школа с концертным залом в Выборге © Архитектурное бюро «А.Лен»
Музыкальная школа с концертным залом в Выборге
© Архитектурное бюро «А.Лен»
Важно, что предложенное решение является легко реализуемым. Ламели, по словам Сергея Орешкина – легкий в исполнении, удобный в эксплуатации и эстетичный материал. Архитекторы предлагают изготовить их из матового стекла и установить подсветку, которая будет давать эффект северного сияния или перелива перламутра и меняться в зависимости от погоды, уровня освещенности или концертной программы. Свет – тоже волна.
Музыкальная школа с концертным залом в Выборге © Архитектурное бюро «А.Лен»
Музыкальная школа с концертным залом в Выборге © Архитектурное бюро «А.Лен»
Музыкальная школа с концертным залом в Выборге
© Архитектурное бюро «А.Лен»
Концертный зал на 500 мест обязывает продумать техническое наполнение. Чтобы зал мог принимать самые разные мероприятия, по мнению Сергея Орешкина, необходима полноценная сценическая коробка: с подъемными и поворотными механизмами, оркестровой ямой, гримерными и т.д. Опыт мастерской в создании концертных помещений серьезный, достаточно вспомнить проект театра песни Аллы Пугачевой, для которого «А.Лен» сотрудничал с акустиками Мариинского театра.
Музыкальная школа с концертным залом в Выборге © Архитектурное бюро «А.Лен»
Музыкальная школа с концертным залом в Выборге © Архитектурное бюро «А.Лен»
Музыкальная школа с концертным залом в Выборге © Архитектурное бюро «А.Лен»
Музыкальная школа с концертным залом в Выборге © Архитектурное бюро «А.Лен»
Музыкальная школа с концертным залом в Выборге © Архитектурное бюро «А.Лен»
Музыкальная школа с концертным залом в Выборге © Архитектурное бюро «А.Лен»
Музыкальная школа с концертным залом в Выборге
© Архитектурное бюро «А.Лен»
Также архитектор уверен, что зданию необходим подземный паркинг – при аншлаге машин может быть слишком много для такого района, а также кафе, которым могли бы пользоваться посетители библиотеки.
Сергей Орешкин призывает организовать открытый международный конкурс, первым этапом которого следует провести общественные обсуждения.
客服
消息
收藏
下载
最近

































