查看完整案例

收藏

下载
Народ против Нувеля
что:
Схема застройки острова Сеген
Центр искусств R4
где:
Франция. Париж
архитектор:
Жан Нувель
В предместье Парижа Булонь-Бийанкур прошел референдум, решивший судьбу острова Сеген на реке Сене: жители выбрали лучший из трех вариантов застройки острова, представленных бюро Жана Нувеля.
Схема застройки острова Сеген © Ateliers Jean Nouvel
Как уже
писал Архи.ру
, располагавшийся ранее на острове завод Renault закрылся в 1992, и в последние годы эта промзона превращается в новый городской район. Мастерплан территории был
представлен Нувелем еще в 2010
, но сейчас он претерпел значительные изменения.
Схема застройки острова Сеген © Ateliers Jean Nouvel
Местные жители хотят, чтобы Сеген превратился в парк, в котором можно было бы отдыхать и заниматься спортом: это стало очевидно из протестов, на фоне которых готовился референдум. В ответ на пожелания жителей Нувель сократил площадь застройки в уже подготовленных трех вариантах проекта на одну треть в пользу зеленой зоны.
Схема застройки острова Сеген © Ateliers Jean Nouvel
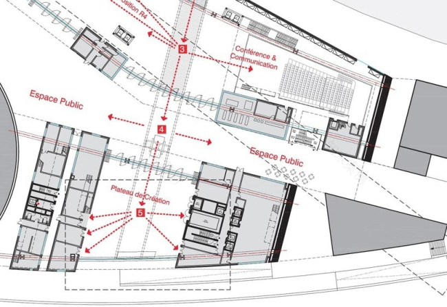
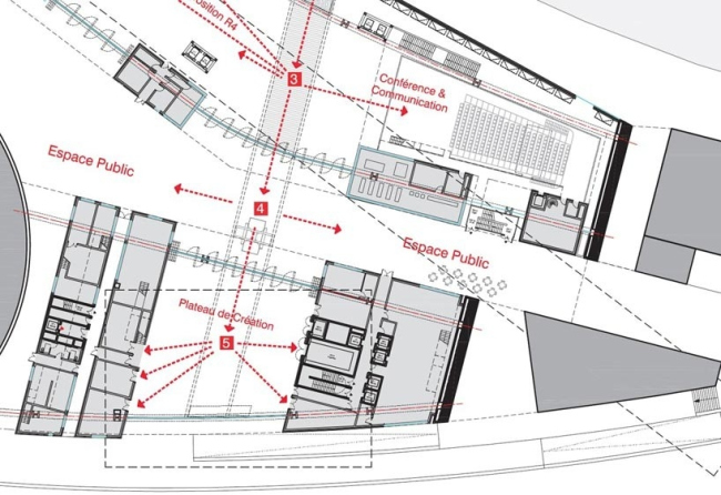
Первое место занял «Вариант 2» с 42% голосов горожан. Он предполагает создание парка (12 000 м2), прогулочной дорожки вдоль берега Сены и спортивной площадки (4500 м2). Застройка сосредоточена на двух противоположных концах острова, причем эти комплексы связаны между собой и зданиями, расположенными вдоль берегов, длинным пешеходным мостом. С одной стороны – это «музыкальный кластер», а с другой – центр современного искусства R4 (с выставочными залами, галереями, магазинами и мастерскими художников) и гостиница.
Центр искусств R4. Крыша-терраса © Ateliers Jean Nouvel
«Вариант 1», согласно которому предлагалось построить на острове четыре высотных здания, занял во время референдума последнее, третье место. «Вариант 3» (второе место) обошелся без небоскребов, но имел меньшую площадь парка (всего 6 200 м2).
Центр искусств R4 © Ateliers Jean Nouvel
Критики референдума, однако, отмечают, что жителям коммуны не дали возможность проголосовать против всех трех вариантов, к тому же представленные версии плана острова слишком походили друг на друга.
Центр искусств R4 © Ateliers Jean Nouvel
Реализовать выбранный вариант проекта планируется в 2016.
Центр искусств R4 © Ateliers Jean Nouvel
Центр искусств R4 © Ateliers Jean Nouvel
Центр искусств R4 © Ateliers Jean Nouvel
Центр искусств R4 © Ateliers Jean Nouvel
Центр искусств R4 © Ateliers Jean Nouvel
Центр искусств R4 © Ateliers Jean Nouvel
Центр искусств R4 © Ateliers Jean Nouvel
Центр искусств R4 © Ateliers Jean Nouvel
Центр искусств R4 © Ateliers Jean Nouvel
Центр искусств R4 © Ateliers Jean Nouvel
Центр искусств R4 © Ateliers Jean Nouvel
Центр искусств R4 © Ateliers Jean Nouvel
Центр искусств R4 © Ateliers Jean Nouvel
Центр искусств R4 © Ateliers Jean Nouvel
Центр искусств R4 © Ateliers Jean Nouvel
Центр искусств R4 © Ateliers Jean Nouvel
Центр искусств R4 © Ateliers Jean Nouvel
Центр искусств R4 © Ateliers Jean Nouvel
Центр искусств R4 © Ateliers Jean Nouvel
Центр искусств R4 © Ateliers Jean Nouvel
客服
消息
收藏
下载
最近




























