查看完整案例

收藏

下载
佘山记忆
参考造价:
18万元
风格:北欧风
空间:二居
面积:96平米
浏览数:823
案例简介
Case description
山者名,在仙而不在高。惜沧海桑田、天灾人祸,九峰之盛之美,大都湮灭,所余甚少。今斋主作南乡子九阕,戏虐耶?凭吊耶……
来自佘山镇的业主在松江主城区购置了一套九十多平的大两房。从设计风格来说,默思希望在本案的设计中,融入更多佘山的元素。从结构上来说,由于业主的父母偶尔会来居住,因此在最初的沟通上来说,业主希望改造成小三房。但在方案沟通后,业主不太接受将阳台改成墨菲床的方案,因此在后期调整为儿童房做抽拉床的方案用于解决临时居住问题。
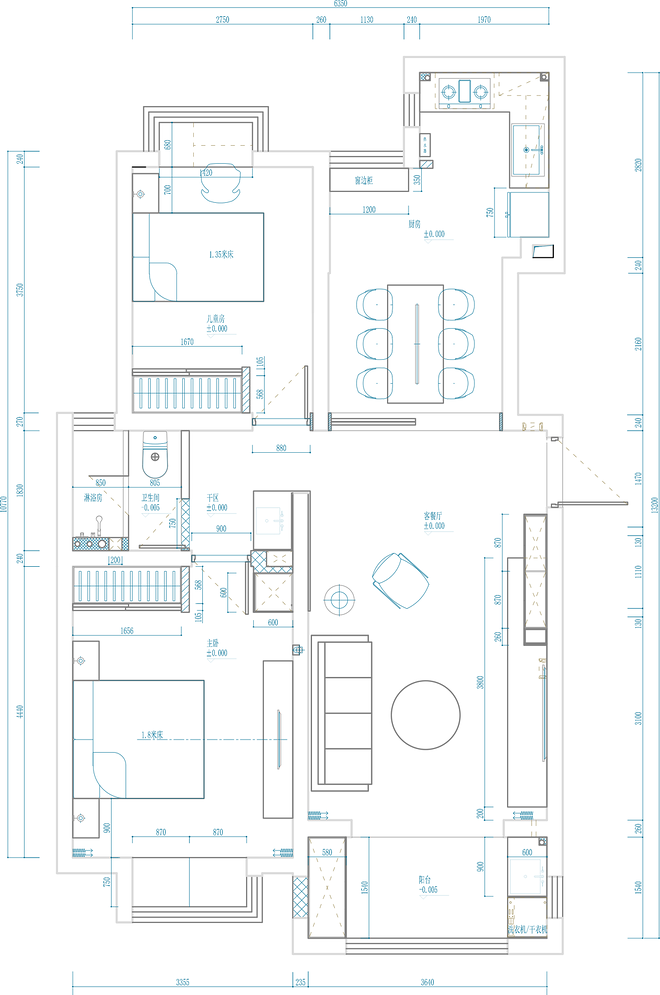
平面图
玄关正对的挂画,采用了佘山教堂的内景照片,沙发背后的落地画,则采用多彩色块,来呼应佘山教堂门窗上的彩色玻璃,通过这些设计,来表示业主过往的身份和记忆。
玄关客厅
由于户型结构较老,入户并没有标准的玄关设计。因此在入户处增加一个2米宽的吊柜,用于收纳业主大量的鞋子以及日常出门更换的衣物。同时在吊柜边设计来一个装饰柜,来调节空间色调。
厨餐厅
整个厨房、餐厅和客厅设计成一个开放格局。原始厨房非常狭小,因此增加来一个中岛来增加收纳。例如微波炉,电饭煲之类的小家电,都可以收纳在中岛内。以此,可以使得厨房的收纳空间成本增加。
此外,由于为了获得较大的厨房台面便于切配,因此在冰箱的选用上,尽可能选择窄高的冰箱款式,约可以提供450立方左右的储藏空间,虽然略小于传统双门的500加的收纳,但也远远可以满足普通三口之家之用。
地面材质采用和阳台一样的水磨石地砖,融入一些老上海情怀。
主卧更多的融入原木元素,而墙面颜色则选用佘山教堂外墙的砖红色,继续这种文化记忆的融合,同时在电视墙上通过设计灯槽的方案,让整个主卧在省钱设计的前提下,显得不再单调。
空调的位置,也做了些许特殊的设置。通过木格栅对空调进行隐藏,来使得整个空间更加和谐统一。
此外,每个房间的大门都采用了中国红设计,算是讨一个2020年开门红的好口彩。也为相对素色的室内空间,增加一抹亮色。
卫生间
卫生间地面选用小花砖,和佘山教堂地面的花砖相呼应。也符合业主所需要的北欧风格效果,小花砖和卫生间墙面的小白砖的配对也是相得益彰。
为了节约成本并保证室内设计效果,建议所有家具在制作时均采用桦木胶合板,以使得在节约成本的同时,家具风格可以保持统一。
儿童房做来抽拉床设计。凸窗做了书桌及书柜设计。而床头灯则选用长臂摇杆灯,即可当床头灯使用,也可以做书桌台灯使用,费用上有做到了成本的降低。
客服
消息
收藏
下载
最近








