查看完整案例

收藏

下载
>100平米2房+多功能间—居家娱乐两不误
100平米2房+多功能间—居家娱乐两不误
参考造价:
25万元
风格:现代简约
空间:三居
面积:100平米
浏览数:402
案例简介
Case description
本案坐标南京,是一对年轻夫妻的婚房。房屋建筑面积97平米,标准的三房布局。屋主二人希望可以增加客厅的面积,并额外增加一个供朋友前来聚会的空间,同时还要具备三个可供休憩的房间。风格上则是现在较为流行的现代风格,造型以平面为主。下面我们就来一起看看方案如何改造吧。
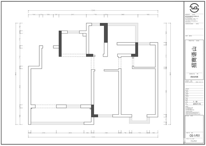
原户型有几个问题: 1、客厅有墙体和窗户,与阳台分割,采光差 2、厨房过小 3、客厅紧邻的房间开间过小,放成品床过于拥挤。
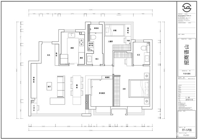
这是我们根据屋主的要求,结合原户型做的改动方案,主要有以下一些改动: 1、将客厅与阳台墙体及窗户拆除,打通客厅与阳台,让阳光透过阳台大面积的窗户直接照射进客厅 2、将客厅相邻房间墙体拆除,抬高整体地面,形成一个与客厅相连的多功能房。这个空间以榻榻米为载体,配合升降台成为客厅活动区域的延伸。靠窗区域留出来放置床品,结合L型玻璃推拉门,在需要的时候可以将空间封闭成私密房间使用。 3、将过道整体往南边(客厅方向)移动,增加厨房、两个卫生间的空间,确保了这些空间的实用性。 4、主卧与多功能房的墙体向客厅方向移动,以确保床尾做衣柜后的过道空间,从而提高了整个主卧套件的储物效率。
进门鞋柜,左右分割处理,预留了换鞋凳和挂衣处。过道的南移让鞋柜长度得以增加,实用性大幅提升。
胡桃木色与白色相间的电视机柜,确保了公共区域的储物空间。
空间打通后,客厅的采光和视野都得到了极大的优化,拍照时由于光线过好,不得不拉窗帘拍摄,也是第一次遇见= =
得益于夫妻二人的共识,洗衣及烘干的功能移至了卫生间,阳台可以放置一个小书桌,男主人加班必备良地。 “放在这不会吵到我”——来自女主人的“建议”哈哈
从功能区的榻榻米看向电视机柜,电视、沙发、餐桌、榻榻米升降台形成了一条中轴线。
从进门处看向多功能室,玻璃门打开时的样子
玻璃门关闭时,俨然形成了一个常规的具有私密性的房间。
升降台确保朋友来玩时,脚有地方可以放
扩大后的厨房,可以容纳U字型的台面+洗碗机+两组整高柜+双开门冰箱,可以说达到了1+1大于2的效果。
主卧有一面墙的衣柜+一个小型的衣帽间储存一些杂物。储物的效率不由柜子的绝对数量决定,而是要看是否有针对储物类别的划分以及收纳的逻辑。这里建议大家在构思储物空间时,以物品类别进行分类,将不同类的物品分别放置进不同的储物空间,不要混放,这样会更高效地利用空间。
儿童房因为布局的关系,业主放弃了成品房的计划,改由榻榻米搭配书桌和衣柜作为一个整体进行设计,这也是现在针对次卧或小房间的常规方法,大家可以借鉴。 榻榻米早先的设计由于上掀储物空间的繁琐,被部分人所排斥,其实大可不必。在我的理解,榻榻米优于成品小床(1.2m宽左右)的地方在于尺寸更自由以及无卫生死角。 这两点之外,额外的储物(侧方抽屉)只不过是一个加分项,对于整体的储物量并无多少增加。 而缺点其实就一个——无替换性。如果你以后这个空间想做他用,不想固定,那榻榻米确实不是一个好的选择。 如何抉择,大家见仁见智。
由于目前就两口人居住,主卫没有增加淋浴区,因此扩大后的卫生间让马桶和洗脸台盆区域都非常宽敞,确保了主人使用的便利和优雅。
客服
消息
收藏
下载
最近








