知末
知末
创作上传
VIP
收藏下载
登录 | 注册有礼

九龙仓碧玺·诗意栖居

2024/12/08 00:00:00
查看完整案例
微信扫一扫
收藏
下载
>九龙仓碧玺·诗意栖居
九龙仓碧玺·诗意栖居
参考造价:
50万元
风格:日式
空间:二居
面积:130平米
浏览数:21494
案例简介
Case description
“人生充满劳绩,然而人,
诗意地栖居在这片大地上。”
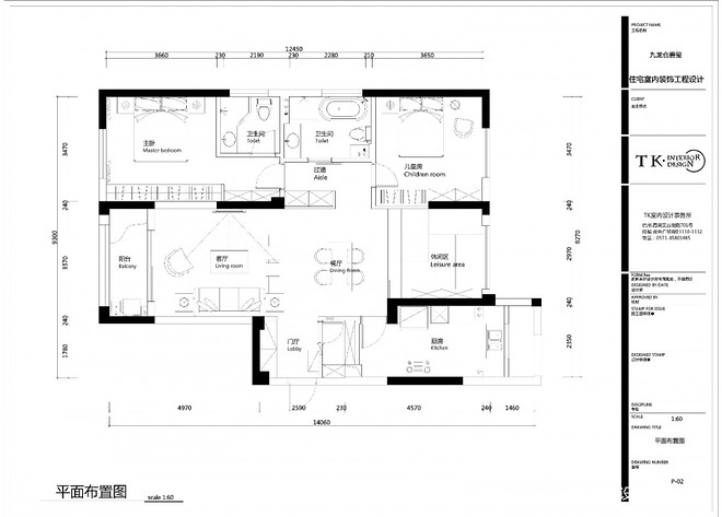
原户型通透方正,承重墙较多,
因此结构并无过多改动。
向设备阳台借了一些空间,
门厅和厨房整体右移,
在玄关处“薅”出个杂物间。
舍弃一个小房间,
打造出一处休闲区,
视觉上放大空间,大气敞亮。
九龙仓碧玺·诗意栖居-20
九龙仓碧玺·诗意栖居-21
九龙仓碧玺·诗意栖居-22
九龙仓碧玺·诗意栖居-23
九龙仓碧玺·诗意栖居-24
九龙仓碧玺·诗意栖居-25
南京喵熊网络科技有限公司 苏ICP备18050492号-4知末 © 2018—2020 . All photos and trademark graphics are copyrighted by their owners.增值电信业务经营许可证(ICP)苏B2-20201444苏公网安备 32011302321234号
客服
消息
收藏
下载
最近