查看完整案例

收藏

下载
Mountain Dwellings / BIG & JDS
Mountain Dwellings / BIG & JDS
Imagen 01. Image Copenhagen, Dinamarca
Arquitectos: Bjarke Ingels Group BIG Architects
Área Área del proyecto de arquitectura Área: 33000 m²
Año Año del Proyecto de arquitectura Año: 2008
Fotógrafos Fotografías: Jens Lindhe, Ulrik Jantzen, Jacob Boserup, Dragor Luft + 35
Colaboradores: JDS/JULIEN DE SMEDT ARCHITECTS, Moe & Brødsgaard, Freddy Madsen Rådgivende Ingeniører ApS
Contribuidores: Annette Jensen, Dariusz Bojarski, Dennis Rasmussen, Eva Hviid-Nielsen, Joao Vieira Costa, Jørn Jensen, Karsten V. Vestergaard, Karsten Hammer Hansen, Leon Rost, Louise Steffensen, Malte Rosenquist, Mia Frederiksen, Ole Elkjær-Larsen, Ole Nannberg, Roberto Rosales Salazar, Rong Bin, Sophus Søbye, Søren Lambertsen, Wataru Tanaka
Cliente: Høpfner A/S
Ingenería: Moe & Brodsgaard
Contrucción: Moe & Brodsgaard
Arquitecto A Cargo: Jakob Lange
Socios A Cargo: Bjarke Ingles para BIG , Julien De Smedt para JDS
Dirección Del Proyecto: Finn Nørkjær
Gerente Del Proyecto : Ene Borgström
Gerente De Construcción : Henrick Poulsen
Ciudad: Copenhagen
Pais: Dinamarca
¿Cómo combinar el esplendor del patio trasero de los suburbios con la intensidad social de la densidad urbana?
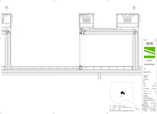
Sección 01
Mountain Dwellings son la segunda generación de las Casas VM - mismo cliente, el mismo tamaño y la misma calle. El programa, sin embargo, es de 2/3 de estacionamientos y 1/3 de estar. ¿Qué pasa si la zona de estacionamientos se convirtiera en la base sobre la cual que colocar una cubierta colgante - como una ladera de concreto cubierta por una fina capa de la vivienda, en cascada desde el piso 11 hasta el borde de la calle? En lugar de hacer dos edificios separados al lado del otro - un estacionaamiento y un edificio de viviendas - que decidimos fusionar ambas funciones en una relación simbiótica. El área de estacionamiento tiene que estar conectada a la calle, y los hogares requieren la luz del sol, el aire fresco y las vistas, por lo tanto todos los apartamentos disponen de jardines en el techo mirando al sol, vistas impresionantes y un estacionamiento en el piso 10. Mountain Dwelings aparece como un barrio suburbano de casas con un jardín que fluye sobre un edificio de 10 plantas - la vida suburbana con la densidad urbana.
© Jacob Boserup
© Ulrik Jantzen
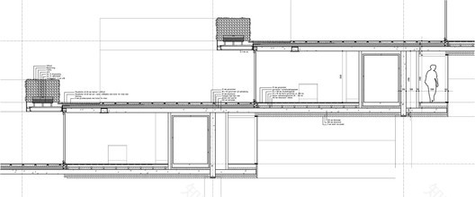
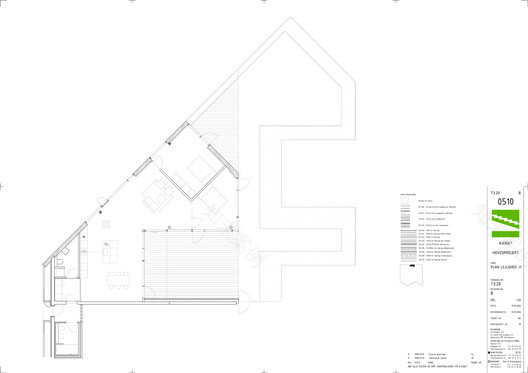
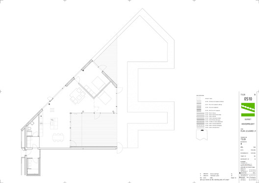
Los jardines en el techo se componen de una terraza y un jardín con plantas que cambian el carácter de acuerdo a los cambios de estación. El edificio cuenta con un sistema de riego enorme que mantiene los jardines en el techo. La única cosa que separa la vivienda del jardín es una fachada de cristal con puertas correderas para proporcionar la luz y el aire fresco.
© Ulrik Jantzen
Los residentes de los 80 apartamentos serán los primeros en Orestaden en tener la posibilidad de tener un estacionamiento justo fuera de sus hogares. La zona de estacionamiento es gigantesco, contiene 480 plazas de estacionamiento y un ascensor inclinado que se mueve a lo largo de las paredes interiores de la montaña. En algunos lugares, la altura del techo es de hasta 16 metros, lo que da la impresión de un espacio similar al de una catedral.
Las fachadas norte y oeste están cubiertas por planchas de aluminio perforadas, que permiten la entrada de aire y luz a la zona de estacionamiento. Los agujeros en la fachada forman una enorme reproducción del Monte Everest. En el día de los agujeros de las placas de aluminio van a parecer negro de aluminio brillante, y la imagen gigantesca se parecerá a la de una foto rasterizada áspera. Por la noche la fachada se ilumina desde el interior y aparece como un negativo fotográfico de diferentes colores, ya que cada piso en la zona de estacionamiento tiene diferentes colores.
Mountain Dwellings, ubicado en la ciudad de Orestad y ofrece lo mejor de dos mundos: la cercanía a la vida agitada de la ciudad en el centro de Copenhague, y la característica tranquilidad de la vida suburbana.
Ubicación para ser utilizado sólo como referencia. Podría indicar ciudad / país, pero la dirección no exacta.
BIG Oficina
客服
消息
收藏
下载
最近















































