查看完整案例

收藏

下载
>家具组合打造会变形的客厅也装下了明月清风
家具组合打造会变形的客厅也装下了明月清风
参考造价:50万元
风格:北欧风
空间:三居
面积:150平米
浏览数:10745
案例简介
Case description
这个家最终呈现出的气质状态,似乎能看到每一个家庭成员的影子。公共空间营造生活当中的有可能需要的N种可能。对比在以往追求各种的设计与众不同的各种噱头,这个家不为流行,不为奢华,更不为浮夸,就像蓝天与白云,森林与大地,一切那么自然朴素平和。
改造需求
1. 简单大方,有书香
2. 需要充足的储物空间,书籍以外的收纳采用封闭式
3. 一家三代五口共同生活,希望可以兼顾各自的需求
4. 整体氛围自然轻松
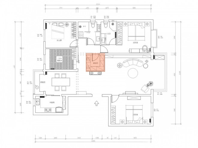
房型改造
1. 增加一储物间,同时也划分出了玄关空间
2. 餐厅阳台改做西厨
3. 次卫中需要放置洗衣机,将次卫部分扩大
4. 通过增加储物间而修改主卧房门位置,也避免了主卧房门和入户门正对的原始布局。
原始房型没有明确的玄关,通过改造增加储物间后,也同时划分出了入户玄关。胡桃木+藤编的玄关柜,被屋主放满了书,上摆一株写意盆栽,从入户开始就有着自然的书香。
客厅的固定家具包括一整面的书柜墙,和书柜对面造型简约的壁炉。其余空间给可变形的客厅。
单椅对面是满墙的书,挑一本喜欢的坐下,可以读一个下午。这样的布置空间更加开敞,自在而独立的状态也可以在公共空间被满足。
这款沙发坐感上介于沙发和卧榻之间,极其适合身体和精神的放松。以一种现代的方式来一场围炉夜话,精神上的愉悦感也是极尽享受。
单椅也可以放在壁炉旁,是爸爸喜欢的读书角。
由于家中没有电视,于是在布局上可以理解为没有固定中心。沙发和单椅的对放,特别适合爷爷奶奶在家中接待老朋友,小坐对谈。
客厅的固定家具包括一整面的书柜墙,和书柜对面造型简约的壁炉。其余空间给可变形的客厅。
角落的椅子上摆放一株绿植,给空间带来自然的灵气。
由于客厅形式非常自由,即便后续新入的三角钢琴也顺利入住新家。女儿学习弹钢琴,妈妈说并不强求考级,希望她可以纯粹的享受音乐。
中西双厨的设计任由各种厨艺自由发挥。实际上中厨属于妈妈,西厨则是女儿偶尔做烘培使用。女儿每一次习得新品,都会和全家一起分享自己的小甜蜜。
厨房以灰色为主,橱柜上柜呼应了蓝灰色门框,上柜做玻璃门,并用透明搁板,上部的收纳一目了然。
厨房另一侧做了这面墙的通高储物柜,足够收纳下厨房种类繁杂的各类物品。下半部分可以收纳各种型号的锅具,每件物品都有自己的归属地。
玄关另一侧为餐厅,餐厅布置超长餐桌,却不仅仅是用来就餐,也是家人们画画喝茶的地方。尤其对于画画来说,这样的长桌特别利于施展。
软垫的靠背座椅,既舒适,又通透。藤编吊灯自然轻盈。餐桌的沉稳足以掌控全局,其他所选物品都保持自然轻巧的状态。
玻璃移门后是中厨,一家三代人在饮食习惯上的差异,也通过中西厨的设计来解决掉。别看女儿年纪不大,对于下厨有着自己的偏好。
餐厅后的阳台做了西厨,设置了水槽和内嵌烤箱。也可以作为简单的备餐台使用。
杂物间靠向走廊的一侧,把柜体做在走廊中,把柜门打开需要占用的空间同走廊共用,比设置在储物间内更节省空间,取放物品也更加方便。柜门做了白色和胡桃木的拼色,内凹的把手设计,让柜体平整,也保证了走廊的简洁。卧室前面还设计了一盏圆形小壁灯,打开时犹如一轮明月,让人心动的小细节。
原始房型没有明确的玄关,通过改造增加储物间后,也同时划分出了入户玄关。胡桃木+藤编的玄关柜,被屋主放满了书,上摆一株写意盆栽,从入户开始就有着自然的书香。
房间面积不大,如果按照常规做法布置家具,空间感差,舒适度也会降低。于是设计上把这个小房间整体做和式的榻榻米。安装了谷仓门,进门就可以上榻。保留了原有窗扇,并在内部做了通高的和式平移窗,空间整体感极佳,甚至感觉提拉了房间高度。
墙面选用浅淡的灰绿色,自然清新的色调,温和而放松。床头灯选了可旋转的壁灯,对于喜欢睡前读书的女儿来说是夜晚最好的陪伴。拍摄时完全保留女儿的原始生活状态,床头柜摆满了书。
整面墙的衣柜做拼色柜门。
父母房选用了灰色布艺床头,靠墙布置衣柜。由于里面衣柜开门不便,设计了格栅式的移门,外侧柜体做平开式。
所有卧室墙面都用了清雅浅淡的灰绿色,适合一家三代人。老人房的衣柜设计了实木+藤编的柜门。材质环保,朴素自然。
通过改动主卧房门位置,巧妙实现在房间内增加一个储物间。面积不大,胃口不小。容得下换季衣物,也放得下难以归置的杂物。
马桶边设置了一块搁板,可以放手机、卷纸和小饰品,一个简单的小设计,却带来诸多方便。
主卫台盆区墙面铺贴蓝色小花砖,自由的涂写图案,充满艺术和趣味感。镜面自带LED光源,轻松照亮你的美。
次卫叠放布置洗衣机、烘干机,方便使用,效果美观,让空间得到充分利用。
结束语:这个家最终呈现出的气质状态,似乎能看到每一个家庭成员的影子。公共空间营造生活当中的有可能需要的N种可能。对比在以往追求各种的设计与众不同的各种噱头,这个家不为流行,不为奢华,更不为浮夸,就像蓝天与白云,森林与大地,一切那么自然朴素平和。
客服
消息
收藏
下载
最近








