知末
知末
创作上传
VIP
收藏下载
登录 | 注册有礼

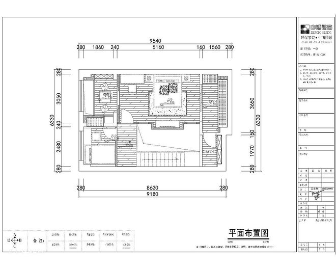
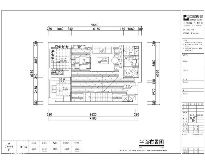
110000万元复式120平米装修案例丨UV公社

2024/05/02 00:00:00
查看完整案例
微信扫一扫
收藏
下载
UV公社
参考造价:
110000万元
风格:现代简约
空间:复式
面积:120平米
浏览数:2530
案例简介
Case description
现代简约,色彩比较温馨。现代年轻人的追求
110000万元复式120平米装修案例丨UV公社-10
110000万元复式120平米装修案例丨UV公社-11
110000万元复式120平米装修案例丨UV公社-12
110000万元复式120平米装修案例丨UV公社-13
110000万元复式120平米装修案例丨UV公社-14
110000万元复式120平米装修案例丨UV公社-15
南京喵熊网络科技有限公司 苏ICP备18050492号-4知末 © 2018—2020 . All photos and trademark graphics are copyrighted by their owners.增值电信业务经营许可证(ICP)苏B2-20201444苏公网安备 32011302321234号
客服
消息
收藏
下载
最近