知末
知末
创作上传
VIP
收藏下载
登录 | 注册有礼

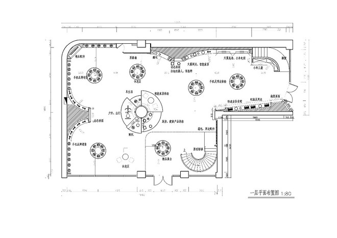
97万元商业展示800平米装修案例

2021/12/25 00:00:00
查看完整案例
微信扫一扫
收藏
下载
诚信数码
参考造价:
97万元
空间:商业展示
面积:800平米
浏览数:1352
案例简介
Case description
本案属于电子数码产品的展示项目,我们充分的利用建筑空间特点,发挥空间对于展示,展销的客户路径,使产品在路径中能够给用户不一样的感受,全方面了解到产品及品牌的价值,树立用户对品牌及产品的认知,展示及展销空间设计是结合企业文化,产品文化,用户消费心里,及建筑空间相结合的发挥空间价值的设计路径。。。。!
97万元商业展示800平米装修案例-9
97万元商业展示800平米装修案例-10
97万元商业展示800平米装修案例-11
97万元商业展示800平米装修案例-12
97万元商业展示800平米装修案例-13
97万元商业展示800平米装修案例-14
南京喵熊网络科技有限公司 苏ICP备18050492号-4知末 © 2018—2020 . All photos and trademark graphics are copyrighted by their owners.增值电信业务经营许可证(ICP)苏B2-20201444苏公网安备 32011302321234号
客服
消息
收藏
下载
最近