查看完整案例

收藏

下载
>42㎡焦糖复古的二人爱巢,附5w软装清单
42㎡焦糖复古的二人爱巢,附5w软装清单
参考造价:5万元
风格:复古风
空间:一居
面积:42平米
浏览数:396
案例简介
Case description
房屋位置:北京
小区名称:通州区 加州小镇
房屋信息:一室0厅一厨一卫
房屋概况:精装
房屋风格:复古风
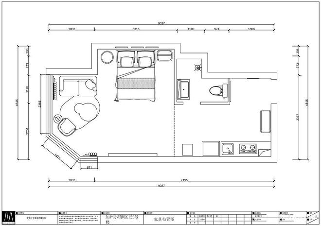
建筑面积:42㎡
业主需求:业主是一对新婚小夫妻,在环球影城投资了一套42㎡的小公寓以备游玩时做临时居所,希望温馨浪漫。
设计前:
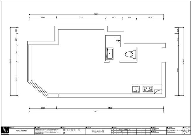
1. 屋内四白落地,窗户有异形拐角,无客厅区域。
2. 没有冰箱、洗衣机、电视等日常家电。
3. 没有衣柜进行储物。
4. 电表箱明显,影响美观。
设计后:
1. 利用阳台区良好的落地窗采光,规划休闲客厅区。
2. 增加洗衣机柜和白色家电。
3. 利用床头正对的纯白墙体,作为投影幕布墙。
4. 利用3315mm的床头宽度,设计移动式衣架满足临时游玩时衣物的存放。
5. 电表箱用艺术装饰画进行遮盖。
入户门配备脏橘色轻奢换鞋凳,表面科技布材质柔软舒适。挂画用同色做背景,色调统一。黑白色千鸟格靠包给温暖的空间加点清凉的元素。
简约钟表画即作为装饰品,又完成了电表箱的遮挡。
入户门配备脏橘色轻奢换鞋凳,表面科技布材质柔软舒适。挂画用同色做背景,色调统一。黑白色千鸟格靠包给温暖的空间加点清凉的元素。
入户门配备脏橘色轻奢换鞋凳,表面科技布材质柔软舒适。挂画用同色做背景,色调统一。黑白色千鸟格靠包给温暖的空间加点清凉的元素。
利用阳台靠窗先天的采光条件设计了休闲客厅区。一个橙色双人沙发床、一个羊羔绒单椅,再配上云朵茶几和地毯,满足两人坐卧的慵懒生活。
利用阳台靠窗先天的采光条件设计了休闲客厅区。一个橙色双人沙发床、一个羊羔绒单椅,再配上云朵茶几和地毯,满足两人坐卧的慵懒生活。
一支龙血树盆栽给空间带来绿色元素,让空间充满生气。
利用阳台靠窗先天的采光条件设计了休闲客厅区。一个橙色双人沙发床、一个羊羔绒单椅,再配上云朵茶几和地毯,满足两人坐卧的慵懒生活。
利用阳台靠窗先天的采光条件设计了休闲客厅区。一个橙色双人沙发床、一个羊羔绒单椅,再配上云朵茶几和地毯,满足两人坐卧的慵懒生活。
利用阳台靠窗先天的采光条件设计了休闲客厅区。一个橙色双人沙发床、一个羊羔绒单椅,再配上云朵茶几和地毯,满足两人坐卧的慵懒生活。
利用阳台靠窗先天的采光条件设计了休闲客厅区。一个橙色双人沙发床、一个羊羔绒单椅,再配上云朵茶几和地毯,满足两人坐卧的慵懒生活。
利用阳台靠窗先天的采光条件设计了休闲客厅区。一个橙色双人沙发床、一个羊羔绒单椅,再配上云朵茶几和地毯,满足两人坐卧的慵懒生活。
床是业主自己原有的,设计师按照空间黑白红棕的色调给搭配了挂画和床品。
利用阳台靠窗先天的采光条件设计了休闲客厅区。一个橙色双人沙发床、一个羊羔绒单椅,再配上云朵茶几和地毯,满足两人坐卧的慵懒生活。
脏橘色棉麻复古窗帘内侧搭配鱼骨纱纱帘,古典又时尚
傍晚时节,即使光线逐渐变暗,但是屋内红白色系的搭配反而会让空间美得像开了滤镜。
夜幕降临,躺在床上观赏超大的投影屛,二人世界的浪漫想想都很甜。
傍晚时节,即使光线逐渐变暗,但是屋内红白色系的搭配反而会让空间美得像开了滤镜。
床是业主自己原有的,设计师按照空间黑白红棕的色调给搭配了挂画和床品。
夜幕降临,躺在床上观赏超大的投影屛,二人世界的浪漫想想都很甜。
夜幕降临,躺在床上观赏超大的投影屛,二人世界的浪漫想想都很甜。
仿水晶台灯,特别出彩好看。
古铜色挂衣架,满足临时居住的衣物存放需求。
厨房采用一字型橱柜,为了避免洗衣机的突兀打乱整洁有序的空间,在厨房边缘安置了上翻盖洗衣机柜,滚筒洗衣机隐藏其中。
厨房采用一字型橱柜,为了避免洗衣机的突兀打乱整洁有序的空间,在厨房边缘安置了上翻盖洗衣机柜,滚筒洗衣机隐藏其中。
卫生间以白色为主,干净整洁。利用狭小的空间设计体积小巧的解决,人体活动动线非常灵活。
卫生间以白色为主,干净整洁。利用狭小的空间设计体积小巧的解决,人体活动动线非常灵活。
厨房采用一字型橱柜,为了避免洗衣机的突兀打乱整洁有序的空间,在厨房边缘安置了上翻盖洗衣机柜,滚筒洗衣机隐藏其中。
卫生间以白色为主,干净整洁。利用狭小的空间设计体积小巧的解决,人体活动动线非常灵活。
客服
消息
收藏
下载
最近








