查看完整案例

收藏

下载
Captial Centro internacional de exhibición y convenciones / Zaha Hadid Architects
Captial Centro internacional de exhibición y convenciones / Zaha Hadid Architects
Centro De Exhibición
Edificios Públicos
Ampliación
China
Zaha Hadid Architects
2025
Virgile Simon Bertrand
Centro De Exhibición
Edificios Públicos
Ampliación
Patrik Schumacher
atoshi Ohashi, Paulo Flores
Di Ding, Martin Pfleger, Clara Martins
Leo Alves, I-Chun Lin, Eduardo Camarena, Juan Montiel
Di Ding, I-Chun Lin
Satoshi Ohashi, Paulo Flores, Yang Jingwen, Di Ding, Cristiano Ceccato, Martin Pfleger, Clara Martins, Leo Alves, I-Chun Lin, Eduardo Camarena, Juan Montiel, Yihui Wu, Cristina Barrios Cabrera, Chen Lian, Dilara Yurttas, Felix Amiss, Gaoqi Lou, Hao Yang, Haotian Man, Huiyuan Li, Shuaiwei Li, John Kanakas, Kate Hunter, Nessma Al Ghoussein, Qiren Lu, Thomas Bagnoli, Meysam Ehsanian, Yushan Chen, Zhe Zhong, Xinying Zhang
Satoshi Ohashi, Paulo Flores
Yang Jingwen, Michail Desyllas
Di Ding
Satoshi Ohashi, Paulo Flores, Yang Jingwen, Di Ding, Michail Desyllas, Eduardo Camarena, Enoch Kolo, Che-Hung Chien, Felix Amiss, Genci Sulo, I- Chun Lin, Jiaxing Lu, Juan Liu, Mariana Custodio dos Santos, Meng Zhao, Michael On, Nastasja Mitrovic, Nicolas Tornero, Ying Xia, Zheng Xu
Beijing Institute of Architectural Design, Beijing BIAD Decoration Engineering and Design CO., LTD (Conference Center Interior), Beijing E.Scene Art Design Co. LTD (Exhibition Interior), Cheng Chung Design (Hotel Interior)
Toryo International Lighting Design Center
CCAT
AECOM
{:text=>"China Construction Second Engineering Bureau Ltd.", :url=>""}
Beijing Construction Engineering Group
{:text=>"China Academy of Building Research", :url=>""}
Ecoland
China
CIECC expande el recinto de exposiciones existente de Beijing a más de 611,000 m². Proporciona nueve nuevos salones de exposiciones, tres salones de recepción, un centro de conferencias para 9,000 delegados y un hotel con 410 habitaciones. La fabricación y construcción modular de CIECC minimizó el tiempo de desarrollo del centro, la inversión y los costos operativos.
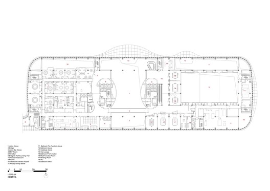
L01 Floor Plan - Exhibition Center
Como un centro líder de comercio, cultura y gobierno, Beijing ha experimentado un crecimiento significativo en las industrias de servicios y tecnología digital de la ciudad. Esta continua expansión de los sectores corporativos de Beijing ha aumentado la demanda para que la ciudad albergue convenciones, conferencias internacionales y exposiciones industriales a las que asisten delegados de toda China y de todo el mundo.
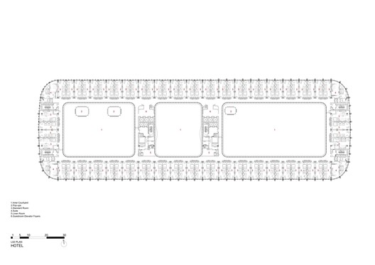
Para satisfacer este crecimiento, el nuevo Centro Internacional de Exposición y Convenciones de la Capital (CIECC) diseñado por Zaha Hadid Architects es el recinto de exposiciones y convenciones más grande y avanzado de Beijing; expandiendo la instalación existente de la ciudad a más de 611,000 m² con nueve nuevos salones de exposiciones, así como tres nuevos salones de recepción, un centro de conferencias para 9,000 delegados y un hotel con 410 habitaciones.
Sections - Exhibition Center
Ubicado en la Línea 15 de la red del Metro de Beijing dentro del distrito Shunyi de la ciudad, adyacente al Aeropuerto Internacional de la Capital, el eje central norte-sur del CIECC sirve como el conector principal entre los nueve salones de exposiciones; proporcionando claridad en la navegación, máxima flexibilidad y eficiencia, así como creando un patio central y un lugar de encuentro dentro de espacios para eventos al aire libre protegidos y jardines paisajísticos.
Concebido como 'ribbons' que entrelazan todas las nuevas instalaciones, los puentes sobre este patio central también conectan los salones de exposiciones, el centro de conferencias y el hotel, para proporcionar circulación interior entre los espacios para eventos. El centro de conferencias y el hotel están ubicados al norte del sitio, definiendo una nueva plaza pública para exposiciones y eventos. El movimiento de personas, mercancías y vehículos a lo largo del CIECC se divide en tres rutas distintas para ayudar a la circulación, proporcionar una adaptabilidad óptima y evitar interrupciones a diferentes eventos concurrentes.
El sistema de techo compuesto del CIECC, con geometrías simétricas, crea una estructura aislada, ligera y de gran luz que proporciona espacios sin columnas que se pueden adaptar rápidamente a cambios en las exposiciones y en la naturaleza de uso. Esta fabricación y construcción modular minimizó el tiempo de desarrollo del centro, la inversión y los costos operativos. El lenguaje arquitectónico fluido del centro y la fachada plisada de color cobre profundo, que incorpora grandes ventanas empotradas, han sido diseñados para equilibrar la inmensa escala industrial y la materialidad del CIECC.
Alcanzando la más alta certificación del Programa de Edificación Verde de China, el centro utiliza sistemas inteligentes de gestión de edificios con ventilación híbrida, asegurando una óptima ventilación natural respaldada por equipos HVAC de alta eficiencia para mejorar la calidad del aire interior y minimizar el consumo de energía. La recolección de agua de lluvia a lo largo de la extensa huella del CIECC, el reciclaje de aguas grises y la energía fotovoltaica para la generación de energía en el sitio reducirán la demanda de agua y energía del suministro municipal de la ciudad.
Zaha Hadid Architects
客服
消息
收藏
下载
最近















































































