查看完整案例

收藏

下载
远离喧嚣,隐于茂林山谷的寄宿行政办公室
现代化的相互连通又透明的工作生活场所。
Ta Nung 寄宿行政办公室集群坐落于越南西部距离达拉中心18公里的Ta Nung 谷。这儿有个以花田之乡、无边咖啡农场而著名的小镇。这个办公室集群由于在达拉的周边,为8-10个工作人员提供了友好的工作环境,他们掌管了整个 Ta Nung 寄宿行政系统的运营。
▲ 总平面图
一栋行政建筑隐于山谷中,被建成了现代化的相互连通又透明的工作场所,融入了 Ta Nung 摄人心魄的美景中。
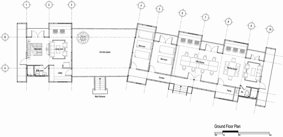
为了追求开放性、连通性,并与基地优美的自然环境进行互动,这个办公场地的中间布置了一处开放区域,是一个公共露台。许多更为私密的办公区域分布在其两边。主要的办公场所在这个建筑集群的东面,在那里人们可以边沉醉于美景和温和湿润的松树林的氛围中,边与人邂逅、工作、社交。
▲ 平面图
公共露台位于集群的中央,作为人们进入空间的缓冲区。这个平台是促进工作人员互动、让人们聚集在一起吃午餐的完美地点。一棵松树被保留作公共露台的一部分,使这里成为自然保护行动的见证者。
这个露天平台也是连接主办公室和卧室套房、起居室以及其他设施的桥梁。充足的光照和自然的美景更唱迭和。从下至上大片连接的落地窗,配合朴素而典雅的松木建材和节奏分明的屋顶设计,在充分利用南北两向阳光和四周环境的同时,营造了趋于一体的户内外体验。
最大的挑战在于如何在不过度改变无电的Ta Nung自然丛林的原始风貌的前提下,依然能在夜晚找到这座宅邸。其解决方案便是利用多个暖光的低射频灯结合内部折射的效果,将这座宅邸打造成在黑暗中自主发光的灯笼,使其变得更生动并且更容易在夜间辨识。
设计图纸:
▲ 立面图
▲ 立面图
▲ 剖面图
项目信息:
设计方:MyAn Architects
地址:Ta Nung, Thành phố Đà Lạt, Lâm Đồng, 越南
类别:办公建筑
设计团队:Tran Thien Sinh, Huynh Duc Thua, Nguyen Ngoc Hai
建筑面积:500.0 m2
项目年份:2017
厂家:Hafele, Hunter Douglas, Toto, Häfele, Pomina, Khai Dat
客服
消息
收藏
下载
最近













