查看完整案例

收藏

下载
Casa Confusa / SO
Casa Confusa / SO
Casas
Chiang Mai,
Tailandia
Arquitectos:
SO
SO
Área:
250
m²
Fotografías:
Filippo Poli
Casas
Thinnapong Yodhong
SO
Ton-Aek Construction by Tachanop Banchongrak
Área:
600 m2
Narong Othavorn
Chiang Mai
Tailandia
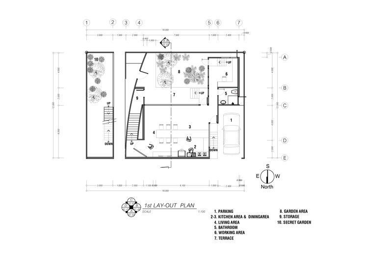
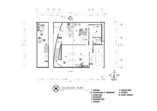
Esta casa privada está situada en una parcela que el propietario dejó vacía durante muchos años. La tierra había sido utilizada por las personas de la zona como un atajo entre 2 carreteras locales, lo que ha creado un camino/trazado casi permanente.
Planta Piso Inferior
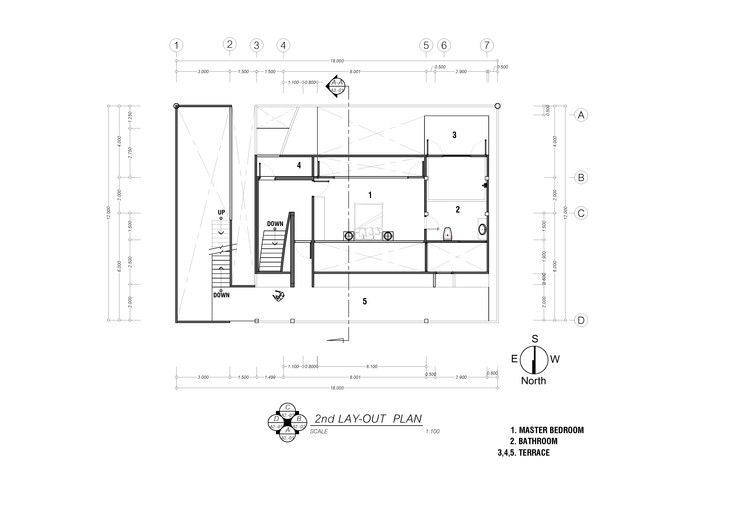
Planta Piso Superior
Se consideró que la casa pudiera permitir el funcionamiento de ese camino incluso cuando la construcción estuviera terminada, y que pareciera que casi nada hubiera pasado con la construcción. El resultado es un edificio que se ubica confusamente entre el dominio público y privado, aunque el propietario puede vivir su vida privada dentro del espacio.
Aunque una de las entradas comparte el mismo camino que recorre la casa de adelante hacia atrás, separado por un pequeño jardín de malezas que se puede ver antes de entrar a la casa, sólo se puede ingresar luego de atravesar toda la casa hasta el 2do piso y hacer la salida a la terraza luego de cruzar el pequeño puente sobre el camino y bajar al jardín donde habrá otra terraza en el futuro.
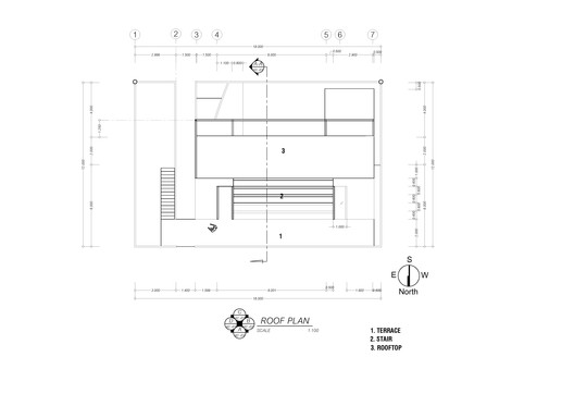
La terraza de la azotea de esta casa se considera una zona de reunión al aire libre multifuncional, con un techo en forma de escalera donde los visitantes pueden sentarse a mirar el patio delantero, donde cualquier cosa podría pasar delante de sus ojos.
SO
SO
Concreto
Concreto
客服
消息
收藏
下载
最近























