查看完整案例

收藏

下载
Сокольническая площадь, реализованный проект благоустройства
Фотография © Юлия Тарабарина, Архи.ру, 2023
Сокольническая площадь
информация:
статус: реализовано
даты: 2019/ — 05.2023
region= area= address=Сокольническая площадь country_t=Россия city_t=Москва
место: Москва, Сокольническая площадь
координаты: 55.790348, 37.679043
функция: Ландшафт / Благоустройство территории
теги: Кирпич, send.project
площадь участка: 3,4 га
ссылки: Проект на сайте Megabudka
Кирилл Губернаторов
Kirill Gubernatorov / Россия
Дарья Листопад
Россия
Артем Укропов Россия Megabudka Россия авторский коллектив Кирилл Губернаторов, Кирилл Гудков, Антон Горовой, Дарья Листопад, Артём Укропов, Артём Нецветаев, Наталья Суворова, Игорь Яковлев
партнеры, заказчики, смежники совместно с Мосинжпроект
другие названия проекта
Благоустройство Сокольнической площади Сокольническая площадь, реализованный проект благоустройства
Фотография © Юлия Тарабарина, Архи.ру, 2023
Архи.ру об этом объекте: 21.08.2023 Юлия Тарабарина. Удариться об кирпич
В 2019 году архитекторы бюро Megabudka предложили замостить Сокольническую площадь клинкерным кирпичом – возродить эксперименты, которые проводили в Москве начала XX века. Проект реализован: что-то, как всегда, сократили, но кирпич довольно-таки уверенно «держит удар». Ищем 10 отличий и рассматриваем прообразы.
Архитекторы Megabudka – мастера работы с общественным мнением, и когда они в 2020 году выставляли проект на голосование (см. наш рассказ), то те версии, которые считали неправильными, нарисовали заметно более неприятными, чем основной вариант. Так чт... читать дальше
другие тексты Архи.ру: 10.02.2020 Дарья Горелова. Сокольники: ковер из кирпича
Сокольническая площадь, реализованный проект благоустройства
Фотография © Юлия Тарабарина, Архи.ру, 2023
описание:
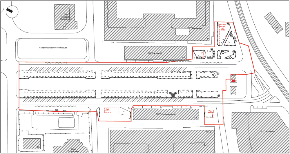
Сокольническая площадь соединяет павильон выхода из метро и парк «Сокольники». Хоть эта территория и называется площадью, фактически, это транзитная зона и одновременно живописная аллея.
Исторический экскурс
Сокольническая площадь была местом проведения ярмарок и кроссов, сюда приезжали балаганы, а в 90-е продавали картриджи и диски.
Формообразование
Транзитные потоки станут плотнее из-за новых остановок общественного транспорта. Площадь должна обладать большей пропускной способностью. Для этого мы добавили две дополнительные аллеи по бокам между деревьев.
Озеленение
Раньше на аллее росло 220 лип. Из-за строительства метро на месте некоторых из них появились венткиоски с нормативным отступом, а некоторые деревья попали на новые инженерные сети. В связи с этим, максимальное количество возможных деревьев сократилось до 175. Плотнее высаживать липы не рекомендуется.
Поднятое озеленение защищает площадь от парковок и проездов. Кроме того, на бортах есть деревянные скамейки для отдыха, а растения в клумбе подобраны так, что она хорошо выглядит в любое время года.
Мощение
Красный цвет клинкерного кирпича выбран не случайно. Много исторических зданий, которые находятся в районе Сокольники выполнены из красного кирпича. Кроме того, Сокольники – станция красной ветки метро.
У клинкерных кирпичей низкое водопоглощение (мало впитывают и удерживают в себе воды), высокая морозостойкость и прочность, а еще они устойчивы к воздействию кислот и других агрессивных факторов. В мощении проработаны разные паттерны в зависимости от функциональных зон.
Венткиоски и туалет: Венткиоски и туалет формируют архитектурный образ аллеи, встраиваясь в мощение.
Освещение: Переосмысление устоявшихся форм – неотъемлемый процесс для создания уникального и в то же время близкого к традициям места. Ниже приведена схема поисков нового дизайна для старых фонарей.
В проекте были предложены качели и фонтан, но по ряду причин от них пришлось отказаться.
***
Пресс-релиз Москомархитектуры: Сокольническую площадь, идущую от станции Большой кольцевой линии «Сокольники», благоустроят: высадят деревья, сделают клумбы и удобные лавочки, а саму площадь замостят клинкерной брусчаткой. Об этом рассказал главный архитектор Москвы Сергей Кузнецов.
«В рамках строительства станции БКЛ «Сокольники» обязательно будет благоустроена и ведущая к парку Сокольническая площадь. Сейчас здесь развернута строительная площадка, но к сентябрю следующего года появится парк по проекту бюро Megabudka. Архитекторы встречались с жителями, чтобы учесть их пожелания, и в результате, проект получился очень «живым», современным, и композиционно дополнит входную группу парка Сокольники», – отметил Сергей Кузнецов.
На площади сделают покрытие из брусчатки нескольких видов, которая также позволит замаскировать вентиляционные шахты новой станции метро. Кроме того, высадят многолетние деревья с приствольными решетками, а зоны цветников дополнят лавочками, что позволит создать уютные зоны отдыха. По обеим сторонам площади предусмотрены парковочные карманы и остановки общественного транспорта.
Напомним, дизайн станции «Сокольники», а также станций «Марьина Роща» и «Рижская», был определен в ходе международного архитектурного конкурса.
Сокольническая площадь, реализованный проект благоустройства
Фотография © Юлия Тарабарина, Архи.ру, 2023
Сокольническая площадь, реализованный проект благоустройства
Фотография © Юлия Тарабарина, Архи.ру, 2023
Сокольническая площадь, реализованный проект благоустройства
Фотография © Юлия Тарабарина, Архи.ру, 2023
Сокольническая площадь, реализованный проект благоустройства
Фотография © Юлия Тарабарина, Архи.ру, 2023
Сокольническая площадь, реализованный проект благоустройства
Фотография © Юлия Тарабарина, Архи.ру, 2023
Клинкерное мощение. Сокольническая площадь, реализованный проект благоустройства
Фотография © Юлия Тарабарина, Архи.ру, 2023 Сокольническая площадь, реализованный проект благоустройства
Фотография © Юлия Тарабарина, Архи.ру, 2023 Сокольническая площадь, реализованный проект благоустройства
Фотография © Юлия Тарабарина, Архи.ру, 2023 Сокольническая площадь, реализованный проект благоустройства
Фотография © Юлия Тарабарина, Архи.ру, 2023 Сокольническая площадь, реализованный проект благоустройства
Фотография © Юлия Тарабарина, Архи.ру, 2023 Сокольническая площадь, реализованный проект благоустройства
Фотография © Юлия Тарабарина, Архи.ру, 2023 Сокольническая площадь, реализованный проект благоустройства
Сокольническая площадь © Megabudka/Предоставлено пресс-службой Москомархитектуры
Сокольническая площадь © Megabudka/Предоставлено пресс-службой Москомархитектуры
Сокольническая площадь © Megabudka
Сокольническая площадь © Megabudka/Предоставлено пресс-службой Москомархитектуры
Сокольническая площадь © Megabudka/Предоставлено пресс-службой Москомархитектуры
Сокольническая площадь © Megabudka/Предоставлено пресс-службой Москомархитектуры
Фонтан. Отменен. Сокольническая площадь © Megabudka/Предоставлено пресс-службой Москомархитектуры
客服
消息
收藏
下载
最近

























































