查看完整案例

收藏

下载

翻译
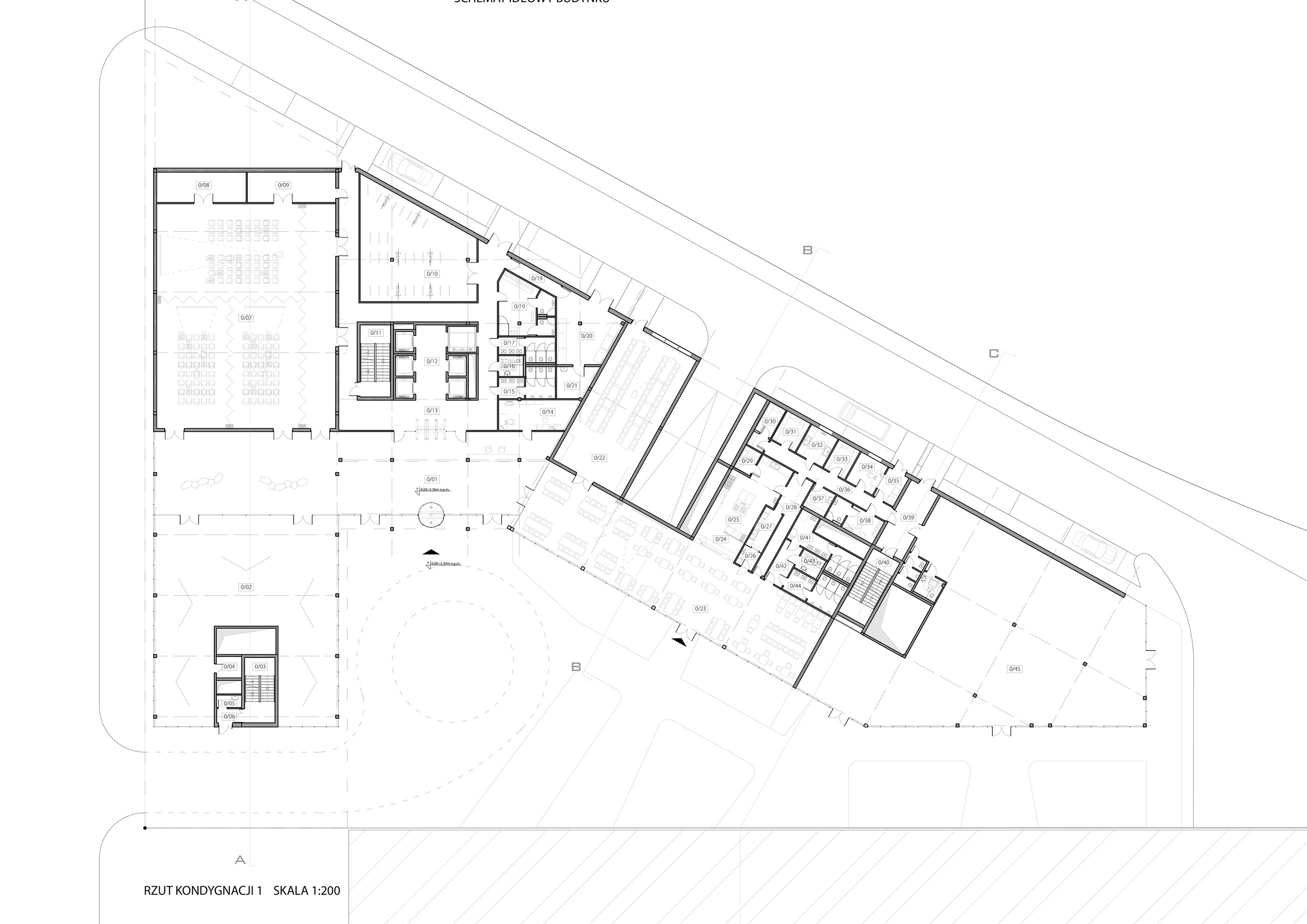
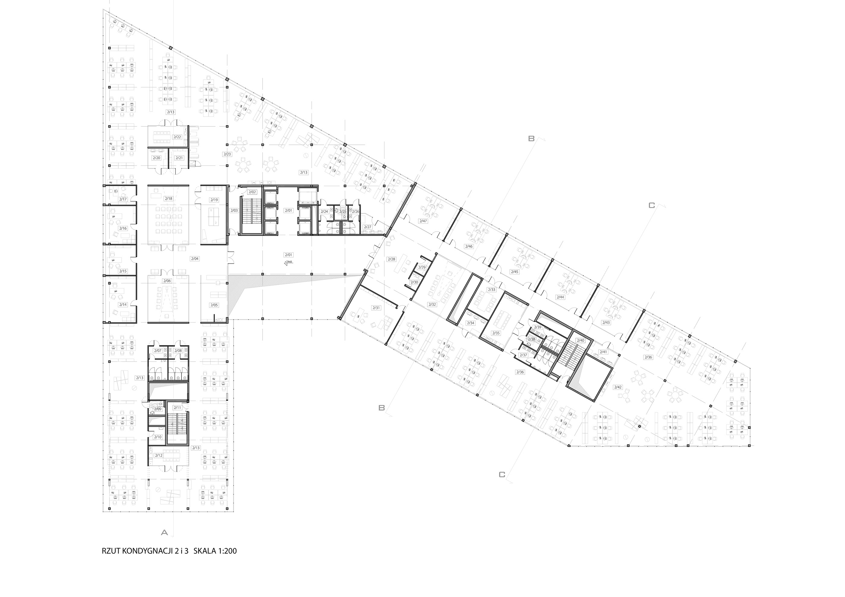
Projekt dyplomowy magisterski Centrum administracyjne Nauta na terenach postoczniowych w Gdyni. / Master degree project - Office center "Nauta" on post-industrial area in Gdynia Promotor: dr inż. arch. Wojciech Targowski / Supervisior: dr inż. arch. Wojciech Targowski Recenzent: dr inż. arch. Agnieszka Gębczyńska - Janowicz / Revievier: dr inż. arch. Agnieszka Gębczyńska - Janowicz ROK: 2016 / YEAR: 2016
客服
消息
收藏
下载
最近















