查看完整案例

收藏

下载
>83㎡“瓷房子”,10种瓷砖打造的简约风
83㎡“瓷房子”,10种瓷砖打造的简约风
参考造价:
28万元
风格:现代简约
空间:二居
面积:83平米
浏览数:1540
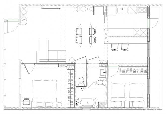
业主家是30年房龄的老房子,原本是三居室,由于业主独自居住,所以改成两居室加一开放式书房的格局配置。业主喜欢瓷砖,设计师便选用了十种不同尺寸、花色的瓷砖,来妆点空间和分隔空间,再搭配木质、涂料、仿旧感家具,打造出充满个性的复古单身宅。
设计师在玄关选用草绿色花砖,象征着将窗外的绿意带入室内,并以微水泥粉光墙面,呈现出自然原始样貌。
设计师在玄关选用草绿色花砖,象征着将窗外的绿意带入室内,并以微水泥粉光墙面,呈现出自然原始样貌。
电视墙选用深绿色涂料,与玄关花砖的绿意相互呼应,而墙上的金属铝条,则是用来分割墙面、调整比例画面,再搭配深浅咖色交错的木纹砖地板,形塑出沉稳复古氛围。
设计师在玄关选用草绿色花砖,象征着将窗外的绿意带入室内,并以微水泥粉光墙面,呈现出自然原始样貌。
设计师在玄关选用草绿色花砖,象征着将窗外的绿意带入室内,并以微水泥粉光墙面,呈现出自然原始样貌。
电视墙选用深绿色涂料,与玄关花砖的绿意相互呼应,而墙上的金属铝条,则是用来分割墙面、调整比例画面,再搭配深浅咖色交错的木纹砖地板,形塑出沉稳复古氛围。
电视墙选用深绿色涂料,与玄关花砖的绿意相互呼应,而墙上的金属铝条,则是用来分割墙面、调整比例画面,再搭配深浅咖色交错的木纹砖地板,形塑出沉稳复古氛围。
电视墙选用深绿色涂料,与玄关花砖的绿意相互呼应,而墙上的金属铝条,则是用来分割墙面、调整比例画面,再搭配深浅咖色交错的木纹砖地板,形塑出沉稳复古氛围。
电视墙选用深绿色涂料,与玄关花砖的绿意相互呼应,而墙上的金属铝条,则是用来分割墙面、调整比例画面,再搭配深浅咖色交错的木纹砖地板,形塑出沉稳复古氛围。
餐厅侧墙层架是用铁架搭配木作的格柜,有足够的承重力,使用也方便,让业主可以用来摆放书籍、展示物品,还能作为格挡,隔绝厨房油烟。
餐厅侧墙层架是用铁架搭配木作的格柜,有足够的承重力,使用也方便,让业主可以用来摆放书籍、展示物品,还能作为格挡,隔绝厨房油烟。
餐厅侧墙层架是用铁架搭配木作的格柜,有足够的承重力,使用也方便,让业主可以用来摆放书籍、展示物品,还能作为格挡,隔绝厨房油烟。
厨房里的黑白花砖地板,与防溅墙上的铁道砖,呈现出明亮简约的空间感,长虹玻璃拉门,则让厨房不会过于封闭,同时引入采光。
木质调打造的书房,格外温馨,业主在此办公学习都相当舒适放松,设计师将定制书桌靠墙摆放,既不占空间,又能保持宽敞、顺畅的生活动线。
木质调打造的书房,格外温馨,业主在此办公学习都相当舒适放松,设计师将定制书桌靠墙摆放,既不占空间,又能保持宽敞、顺畅的生活动线。
厨房里的黑白花砖地板,与防溅墙上的铁道砖,呈现出明亮简约的空间感,长虹玻璃拉门,则让厨房不会过于封闭,同时引入采光。
因卫浴空间较大,搭配大板瓷砖可以减少缝隙,较为美观、好清理,而纯色六角砖地板,则是简单又有型。
因卫浴空间较大,搭配大板瓷砖可以减少缝隙,较为美观、好清理,而纯色六角砖地板,则是简单又有型。
主卧延续简约配色,搭配精致玻璃壁灯,复古又温馨,而顶天立地大衣柜,则大大满足了业主的收纳需求。
因卫浴空间较大,搭配大板瓷砖可以减少缝隙,较为美观、好清理,而纯色六角砖地板,则是简单又有型。
客浴中绿、橘色相间的马赛克砖,拼贴出复古感,打造清爽活泼的立面端景,并选用大面镜子,延伸视觉、放大空间。
主卧延续简约配色,搭配精致玻璃壁灯,复古又温馨,而顶天立地大衣柜,则大大满足了业主的收纳需求。
客服
消息
收藏
下载
最近








