查看完整案例

收藏

下载
Как удачно реализовать проект дома из контейнера?
Проект дома из контейнера для грузоперевозок от архитекторской студии Un Dernier Voyage подразумевает удивительную конструкцию, которая из промышленного объекта превращается в полноценное жилое помещение. Здание расположено на небольшой металлической платформе, держащуюся на четырех опорах.
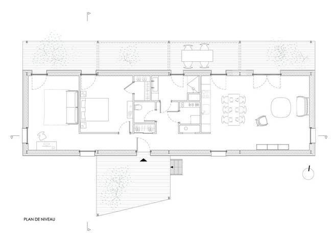
Дом состоит из двух контейнеров: один предназначен непосредственно для жизни, в то время как другой является мастерской, поскольку заказчиком является скульптор.
Общая площадь помещения – 26 квадратных метров. Окна дома имеют форму прямоугольника (в случае с дверями – многоугольника) и обеспечивают своими достаточно большими размерами отличное естественное освещение.
Помещение спроектировано в так называемом стиле «хай-тек» с обилием металлических элементов и механических систем, используемых в промышленном судоходном контейнере. И интерьер, и экстерьер оформлены в цветах, которые были присущи оригинальной транспортировочной конструкции. Особенно ярко это выражено в мастерской.
Дизайн дома достаточно брутален, поскольку выполнен он с широким применением металлических деталей, листовой стали, бетонного пола и с обилием технического оборудования. Снаружи здание прекрасно контрастирует с сельскими пейзажами.
Это действительно довольно хороший, сдержанный современный дом для скульптора, который позволяет привык жить в мире креатива и неординарности.
Несмотря на то что здание выполнено из контейнера, грузовым или транспортировочным его назвать уже не поворачивается язык. Первоначальная конструкция настолько преобразилась, что теперь это исключительно полноценное жилое помещение.
客服
消息
收藏
下载
最近









