查看完整案例

收藏

下载
乌托邦的乡村理想想象力的森林叙事宁静和谐的体育馆设计
塔朗斯皮埃尔-保罗-伯纳德体育场设计最开始于 1976 年落成,坐落在图阿尔斯森林的中心地带。这里的环境异常荒凉。该体育场主要用于田径运动,曾举办过国内和国际赛事,特别是德卡斯特(Décastar)赛,自 1998 年以来一直是国际田联(IAAF)综合项目世界挑战赛的一部分。
2018 年,凯文-梅尔在这里创造了十项全能世界纪录。从那时起,这里就成为世界级运动员的必经之地,也是波尔多每年最大的体育盛事,吸引了超过 15000 名观众。2020 年 3 月,Décastar 在皮埃尔-保罗-伯纳德体育场接受了世界田径协会颁发的遗产牌匾。该奖项旨在表彰这一国际赛事对世界田径历史和发展做出的独特贡献。
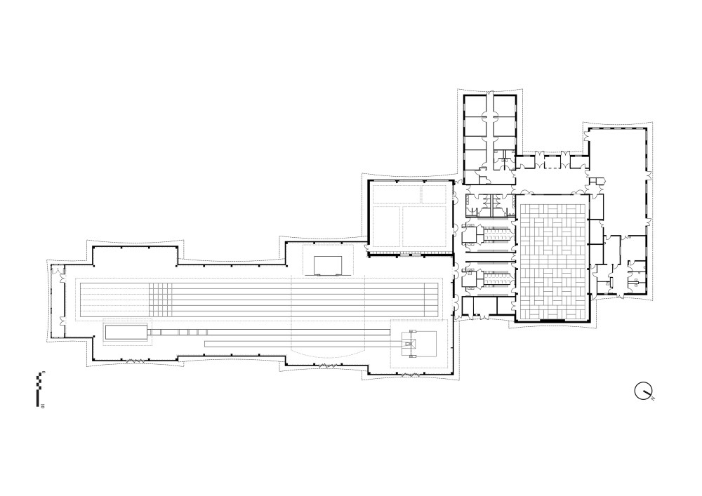
2016 年,”Bordeaux Métropole “市政社区委托 K 建筑设计公司对体育场的跑道和看台进行翻新,并建造一个维护部门,最重要的是建造一个新的体育综合体,包括室内练习场、道场、举重室、行政部门和休闲空间。
挑战。Thouars公共木材是该市的一座天然纪念碑。在不移走一棵树的情况下增建 4000 平方米的建筑显得十分神奇。这里存在着一个永恒而又无限现实的难题:”我们能牺牲一个活生生的大教堂来建造一个人工小教堂吗?而且,即使草坪早已从自然生物群落中开垦出来,在需要棚型建筑的情况下,这项计划在整个景观中又能采取什么形式呢?
概念。对于卡琳-赫尔曼(Karine Herman)和热罗姆-西格瓦尔特(Jérôme Sigwalt)来说,图阿尔斯森林是一个活生生的神话。它代表了一个乌托邦,一个乡村理想,在那里人类重新获得了与其他生物世界共生的能力。该项目想象了一种森林叙事,在这种叙事中,建筑通过在树木之间滑动,以模仿和最小化的方式被书写。
该项目巨大的大厅被想象成一个由简陋谷仓组成的小村庄。在平面和剖面上,这些建筑体量被分割得支离破碎,以减少体量感。外墙由深色木板制成,仿佛沉浸在天幕的阴影中。屋顶则采用了薄而适中的波纹金属板,让人联想到薄雾。
这些建筑简洁明了,尽量减少多余的元素,突出了一种简约的生活方式,强调本质。这是一个宁静的项目,在大自然面前,它寻求与大自然的和谐,在运动员面前,它为他们提供心灵的宁静。
这些建筑简洁明了,尽量减少多余的元素,突出了一种简约的生活方式,强调本质。这是一个宁静的项目,在大自然面前,它寻求与大自然的和解,在运动员面前,为他们提供心灵的宁静。
这座建筑也是当地历史的延续,是 “Girolle “的延续,”Girolle “是 “波尔多学院 “在 60 年代设计的流行住宅。轻盈的屋顶、宽大的悬挑、透明的效果、自然光的引入以及景观本身的引入、建筑的诚意以及木材作为建筑材料的使用,这些都是该地区沙地松林中常见的小房子的共同特征。
在战术上,为了将故事带入背景中,正是这些松树林中生长着海松,用来制作体育场新建筑的胶合框架。由于两个原因,木材被广泛用于结构和覆层。首先,它是一种优质的生物源材料,而且能够捕获大量的二氧化碳;其次,它是一种可再生的材料,而且具有很高的经济价值。
第二,更主观,在于它的文化能力,传达出一种与项目所捍卫的价值观相关联的柔和、自然的形象。有趣的是,生物学家对木材的亲生物效应进行了测量,发现在以木材为主的建筑中,人们的幸福感会提高 10%。
所有外立面都采用了 “影子 “烧木覆层,其灵感来自日本的 Yakisugi[1](字面意思为 “烧杉木”)技术。这是一种根植于对人与自然尊重的祖传技艺。经过这种自然处理的木材更耐火、虫蛀和真菌。
乌托邦的乡村理想想象力的森林叙事宁静和谐的体育馆设计
客服
消息
收藏
下载
最近





























