查看完整案例

收藏

下载
>光之造势,筑自然而舒适的办公空间
光之造势,筑自然而舒适的办公空间
参考造价:
20万元
空间:办公空间
面积:200平米
浏览数:9139
案例简介
Case description
空间环境可以影响一个人
甚至可以改变一个人
光影、原木,绿植构造其空间氛围
阳光自在 舒适自然
空间环境可以影响一个人,甚至可以改变一个人,根据用户提出的需求,该办公室是作为临时办公用,主要功能为接待客户,辅以成员办公。
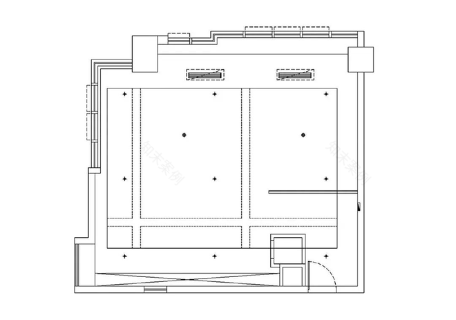
▲改造前平面布置图
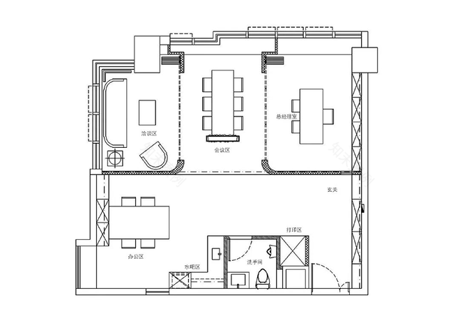
打破原有空间格局,利用三角动线,将水吧区、洗手间作为一角,办公区作为一角,总经理办公室作为一角方便使用,会议区设置在总经理室与办公区之间,保证动线合理。
利用该空间大面积采光的优势结合台阶对空间进行划分,将洽谈区、会议区、总经理室等主要区域放置在采光风景好的地方,将办公区放在相对安静的地方;
空间整体利用弧形元素营造空间特点,通过不透明玻璃门保证空间的隐私性与开放性;
▲改造后平面布置图
进门右手边利用小景增加办公室艺术气息,上方利用角落区域进行储纳柜设置,正对门采用适当的留白使空间简洁明朗;在吊顶的造型规划上利用弧形元素追求统一,同时减弱梁的特殊性,利用弧形隔断呼应空间特点;在隔断靠墙一边设置玻璃隔断,增强空间的通透性。
进门左手边即为打印机位置,利用原有不可移动的柱体巧妙地利用本身背面柱体与卫生间形成的转角位置放置打印机。水吧靠近办公区域,便于员工休息使用,同时也便于洽谈区的客人使用,休息区整体与其他功能区处于平行,动线简单合理。
根据用户将空间整体作为接待客户的主要功能需求,所以我们通过对地板形态的选择与错层的利用对空间区域进行划分。将洽谈区、会议区、总经理室等重要区域放置在采光风景好的区域,将办公区、休息区放在相对安静的区域,同时利用灯带给采光较弱的区域进行补光。
洽谈区以一张长沙发,两张小矮几的形式呈现,表明该洽谈区是以交谈为主要功能的商务简约风格,同时利用绿植给空间增加活力。在整体空间家具选配的细节方面,通过对洽谈区的沙发与办公区的长桌选择,我们可以直观的感受到空间材质、风格的整体性与统一性。
会议区与洽谈区间设置了折叠门,与总经理办公室间同样设置了折叠门,会议区可开放可独立,办公、开会、会客三个功能互相不影响,真正做到工作空间的独立与统一,仅采用一张长桌、两张矮凳,体现空间的简洁性与实用性。
总经理办公室区域利用了角落柱子的厚度,将书柜、置物柜表面等做到与柱子平齐,储物收纳的同时无形中提高了空间整洁度;整体空间采用一幅书法,一盆绿植,一张简单的办公桌,提高了办公室的文化气息,同时方便总经理办公会客;
空间环境可以影响一个人
甚至可以改变一个人
即使是临时办公室
我们也应该尊重他的空间特性
阳光 自在 舒适 自然
客服
消息
收藏
下载
最近








