查看完整案例

收藏

下载
Арма: корпуса 4, 5, 5а. Сергей Киселев и Партнеры, 2014. Фотография © Юлия Тарабарина, 2016
Арма: корпуса 4, 5, 5а / Buildings 4, 5, 5a
информация:
статус реализовано
даты 2011—2013/2014
место Москва, Нижний Сусальный переулок, д. 5, строения 4, 5, 5а
координаты 55.759887, 37.663747
функция Административно-офисный/офисное здание
площадь участка 0,9992 га
площадь застройки 4 399 м2
площадь подземная 3 831 м2
общая площадь 20 441 м2
строительный объем 94 910 м3
Площадь территории под благоустройство: 5 593 м2
Площадь озеленения: 768xa0м2
Площадь газонных решеток: 686xa0м2
Площадь мощения: 2 912xa0м2
Количество машиномест: 56
Наземная площадь здания: 16 613xa0м2
Владимир Лабутин Vladimir Labutin / Россия
АМ Сергей Киселев и Партнеры
Sergey Kisselev & Partners / Россия
авторский коллектив
Главный архитектор проекта: Владимир Лабутин
Архитекторы: Александр Добрев, Анна Савелова, Наталья Хайкина, Деница Петрова
Инженеры: Игорь Шварцман, Вадим Буромских, Андрей Кулик
партнеры, заказчики, смежники
Заказчик: Большой Город
другие названия проекта
Офисно-торговый комплекс на территории завода «Арма». Строение 4, 5, 5а (объект № 392-4)
Арма: корпуса 4, 5, 5а. Сергей Киселев и Партнеры, 2014. Фотография © Юлия Тарабарина, 2016
Газгольдеры – знаковые здания территории делового комплекса Арма. В них разместились офисы его руководства, здесь же нашли для себя место различные рестораны и клубы, в том числе культовые, знаменитые и полузакрытые. Газгольдеры – башни для хр
Арма: корпуса 4, 5, 5а. План -1 этажа © Сергей Киселев и Партнеры
описание:
Характеристика участка
Участок строительства офисно-торгового комплекса расположен в Басманном районе ЦАО г. Москвы в центральной части территории ОАО «АЗ «АРМА». К участку застройки примыкают здания четырех реконструируемых газгольдеров, а также корпуса 2 и 3. Все существующие сооружения, включая корпуса 4 и 5, выдержаны в единой исторической стилистике. Перепад рельефа достаточно значителен и в направлении с северо-запада на юго-восток достигает двух метров.
Проектом предусматривается строительство четырехэтажного П-образного корпуса в «пятне» застройки сформированного в советский период комплекса разнофункциональных пристроек к основным корпусам 4 и 5 исторических промышленных строений. Главный вход и основной транспортный въезд на участок расположены с севера, что обеспечивает удобный доступ к корпусу со стороны Нижнего Сусального переулка для сотрудников и посетителей.
Топографические особенности участка
В настоящее время поверхность участка спланирована, частично застроена и заасфальтирована. Условия поверхностного стока характеризуются как удовлетворительные. Техногенные отложения – насыпной грунт, супесь серая, коричневая, пластичная и суглинок тугопластичный с примесью органических веществ, с включением обломков кирпича, строительного щебня, мусора, местами до 25%. Мощность слоя от 1,5 до 5,0 м. Ниже флювиогляциальные отложения – суглинок коричневый, преимущественно полутвёрдый, реже тугопластичной консистенции, с прослоями супеси пластичной и твёрдой, с включениями гравия. Местами суглинок имеет цвет тёмно-серый до черного. Мощность слоя от 5,0 до 8,8 м. Песок мелкий, преимущественно бежевый, с тонкими прослоями супесей и суглинков с обломками юрской фауны, средней плотности, средней степени водонасыщенности. Мощность слоя достигает 4,5-7,0 м.
Гидрогеологические условия участка характеризуются наличием четвертичного водоносного горизонта, вскрытого на глубине 4,5- 4,0 м (абсолютные отметки 129,98-130,70 м). Воды безнапорные. В период снеготаяния и обильного выпадения осадков возможно возникновение верховодки в насыпных грунтах на отметках, близких к поверхности. В случае, когда за уровень подтопления принимается 2,0 м, участок находится в потенциально подтопляемом состоянии. Площадка потенциально опасна в отношении развития карстово-суффозионных процессов.
Объемно-планировочные решения
Объемно-планировочные решения проектируемого четырехэтажного административно-торгового здания выполнены в соответствии с утвержденной ранее архитектурной концепцией, в которую были внесены изменения на основании действующих противопожарных норм и расчета лифтового трафика. Здание имеет П-образный план и находится в абрисе исторически сложившейся застройки в пространстве корпусов 4 и 5. Оно составит ансамбль с этими двумя объединенными исторической темой корпусами, подлежащими реновации с реставрацией и санацией кирпичной кладки периметральных стен.
Корпус 4
Историческое здание подлежит реконструкции с разбором всех перекрытий. Под периметром наружных кирпичных стен устраивается подземное пространство высотой 3,96 м. Конструктивная схема реконструируемого здания – рамносвязевой каркас из монолитного железобетона, плиты перекрытий и покрытия железобетонные монолитные. Ограждающие стены подземного этажа – железобетонные. Здание разделяется на четыре отсека, попарно примыкающих к лестничным клеткам «палладианского» типа, которые являются эвакуационными. Торговые помещения расположены на первом, втором, а также на большей части подземного этажа, где они примыкают к зоне технических помещений. Торговое пространство разделено на четыре 3-этажных лота, каждый из них имеет по два самостоятельных входа-выхода на первом этаже, из которых один используется как загрузочный. Связь между этажами внутри лота осуществляется самостоятельными лестницами.
Корпуса 5 и 5а
Проектом предусмотрен снос всех строений, примыкающих к корпусу 5, включая снос исторической северо-восточной стены. К оставшемуся историческому периметру пристраивается Г-образный в плане объем, таким образом, что его узкое крыло примыкает к корпусу 4, замыкая трехчастную П-образную композицию комплекса. Под периметром исторических и вновь возводимых стен устраивается подземный этаж. Конструктивная схема здания – рамно-связевой каркас из монолитного железобетона, плиты перекрытий и покрытия железобетонные монолитные. Вновь возводимые наружные стены выполняются по схеме вентилируемого фасада с облицовкой кирпичом компании «Tilleri» Tilleri punane NRT75 (270x130x75) или аналогичным в цветовой гамме исторического. Крепление к бетонным стенам осуществляется системой кронштейнов специальной конструкции JVA производства JORDAL (Германия), либо ее аналогами.
Функциональная организация аналогична таковой в корпусе 4, только с более крупной нарезкой на лоты.
Заполнение проемов
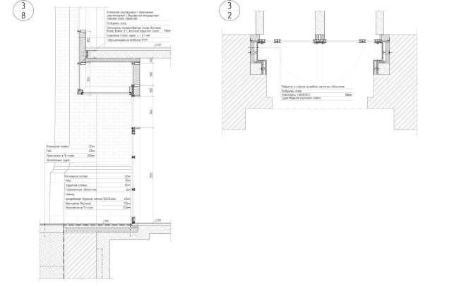
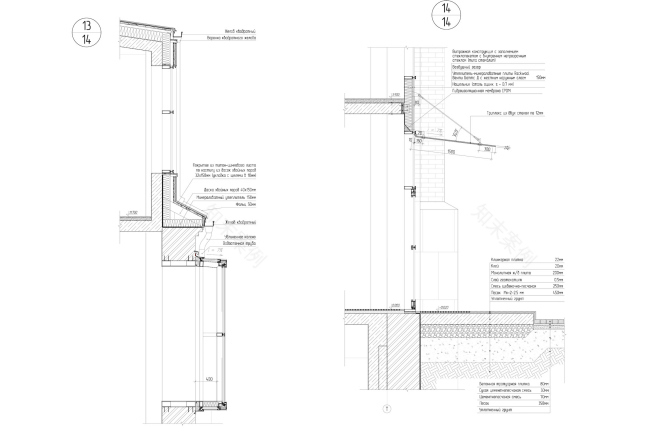
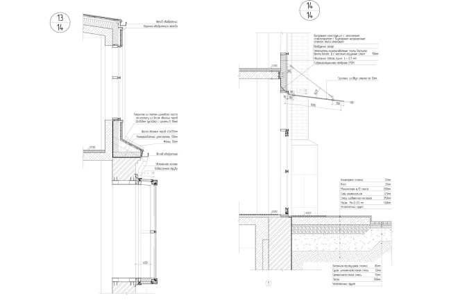
Заполнение оконных проемов осуществляется с использованием алюминиевой фасадной системы (HUECK TRIGON 50 или аналогичной) с шириной профилей 50 мм. Стеклопакеты фиксируются при помощи наружных прижимных профилей (горизонтальных и вертикальных), имеющих одинаковую высоту и глубину, равную 150 мм, которая должна быть подтверждена статическим расчетом. Стеклопакеты для витражей в безопасном исполнении, толщиной 36 мм (8х16х6.6.2) с наружным закаленным стеклом и внутренним многослойным (триплекс), причем одно из стекол должно быть с низкоэмиссионным покрытием. Алюминиевые двери должны быть выполнены из теплоизолированных профилей с шириной термомоста не менее 30 мм (HUECK CAMBDA 7H или аналогичной). Наружное стекло – закаленное и внутреннее – многослойное, одно из стекол должно быть с низкоэмиссионным покрытием. Двери, расположенные на путях эвакуации, оборудуются фурнитурой с функцией антипаника. Для создания необходимых условий освещенности на четвертом этаже комплекса применены мансардные окна VELUX.
Кровли
Покрытие кровель – цинк-титан (Rheinzink либо аналогичное), цвет патинированный серо-голубой. Монтаж производится по деревянным лагам и сплошному настилу. Все деревянные элементы обрабатываются антипиренами и антисептиками. Соединение – фальцевое. На кровле предусматриваются системы снегозадержания (FLENDER FLUX или аналогичные). Отвод дождевых вод производится по водосточным трубам, также выполненным из цинк-титана. Кровли оборудуются системой обогрева на основе саморегулирующегося кабеля RGS, производства компании “Thermon”, либо аналогичного. Предусматривается установка щита управления кабеля обогрева с защитно-пусковой автоматикой, терморегулятором и внешним датчиком температуры. Режим работы ручной и автоматический.
Концепция архитектурного освещения
Для того чтобы подчеркнуть пластику архитектурных элементов корпусов и фактуру кирпичных кладок, на фасады интегрированы световые приборы с направленными световыми потоками. В качестве источников света применены металлогалогеновые лампы с теплым спектром. Входные группы комплекса освещены дополнительно. Кроме того, предусмотрены разные по типам световые приборы, создающие комфортное освещение общественной территории, дорожек, паркинга.
Арма: корпуса 4, 5, 5а. Сергей Киселев и Партнеры, 2014. Фотография © Юлия Тарабарина, 2016
здесь использованы материалы и технологии:
АО «ТАТПРОФ»
Все окна газгольдеров – большие, с дугообразными лучковыми перемычками вверху, и стеклянные входные группы, часть из которых снабжена интегрированными спайдерными козырьками, выполнены с использованием анодированного профиля ТАТПРОФ серии ТПТ-65. Дугообразные завершения окон, почти обязательные для XIX века и малопривычные в XXI-м, потребовали индивидуальных чертежей и консультаций технических специалистов компании ТАТПРОФ.
Круговое панорамное окно в верхней части каждой башни, визуально поддерживающее новую кровлю – выстроено с помощью технологий остекления компании ТАТПРОФ.
Часть окон и входных групп отдельно стоящих административных корпусов сделаны из неанодированного алюминиевого профиля компании xa0ТАТПРОФ.
Арма: корпуса 4, 5, 5а. Сергей Киселев и Партнеры, 2014. Фотография © Юлия Тарабарина, 2016
Арма: корпуса 4, 5, 5а. Сергей Киселев и Партнеры, 2014. Фотография © Юлия Тарабарина, 2016
Арма: корпуса 4, 5, 5а. Сергей Киселев и Партнеры, 2014. Фотография © Юлия Тарабарина, 2016
Арма: корпуса 4, 5, 5а. Сергей Киселев и Партнеры, 2014. Фотография © Юлия Тарабарина, 2016
Арма: корпуса 4, 5, 5а. Сергей Киселев и Партнеры, 2014. Фотография © Юлия Тарабарина, 2016
Арма: корпуса 4, 5, 5а. Сергей Киселев и Партнеры, 2014. Фотография © Юлия Тарабарина, 2016
Арма: корпуса 4, 5, 5а. Сергей Киселев и Партнеры, 2014. Фотография © Юлия Тарабарина, 2016
Арма: корпуса 4, 5, 5а. Сергей Киселев и Партнеры, 2014. Фотография © Юлия Тарабарина, 2016
Арма: корпуса 4, 5, 5а. Сергей Киселев и Партнеры, 2014. Фотография © Юлия Тарабарина, 2016
Арма: корпуса 4, 5, 5а. Сергей Киселев и Партнеры, 2014. Фотография © Юлия Тарабарина, 2016
Арма: корпуса 4, 5, 5а. Сергей Киселев и Партнеры, 2014. Фотография © Юлия Тарабарина, 2016
Арма: корпуса 4, 5, 5а. Сергей Киселев и Партнеры, 2014. Фотография © Юлия Тарабарина, 2016
Арма: корпуса 4, 5, 5а. Визуализация, 2013 © Сергей Киселев и Партнеры
Арма: корпуса 4, 5, 5а. Визуализация, 2013 © Сергей Киселев и Партнеры
Арма: корпуса 4, 5, 5а. Визуализация, 2013 © Сергей Киселев и Партнеры
Арма: корпуса 4, 5, 5а. Визуализация, 2013 © Сергей Киселев и Партнеры
Арма: корпуса 4, 5, 5а. Визуализация, 2013 © Сергей Киселев и Партнеры
Арма: корпуса 4, 5, 5а. Визуализация, 2013 © Сергей Киселев и Партнеры
Арма: корпуса 4, 5, 5а. Визуализация, 2013 © Сергей Киселев и Партнеры
Арма: корпуса 4, 5, 5а. Визуализация, 2013 © Сергей Киселев и Партнеры
Арма: корпуса 4, 5, 5а. Визуализация, 2013 © Сергей Киселев и Партнеры
Арма: корпуса 4, 5, 5а. Визуализация, 2013 © Сергей Киселев и Партнеры
Арма: корпуса 4, 5, 5а. Визуализация, 2013 © Сергей Киселев и Партнеры
Арма: корпуса 4, 5, 5а. Визуализация, 2013 © Сергей Киселев и Партнеры
Арма: корпуса 4, 5, 5а. Визуализация, 2013 © Сергей Киселев и Партнеры
Арма: корпуса 4, 5, 5а. Генеральный план © Сергей Киселев и Партнеры
Арма: корпуса 4, 5, 5а. Ситуационный план © Сергей Киселев и Партнеры
Арма: корпуса 4, 5, 5а. План 1 этажа © Сергей Киселев и Партнеры
Арма: корпуса 4, 5, 5а. План 2 этажа © Сергей Киселев и Партнеры
Арма: корпуса 4, 5, 5а. План 3 этажа © Сергей Киселев и Партнеры
Арма: корпуса 4, 5, 5а. План 4 этажа © Сергей Киселев и Партнеры
Арма: корпуса 4, 5, 5а. План 5 этажа © Сергей Киселев и Партнеры
Арма: корпуса 4, 5, 5а. План кровли © Сергей Киселев и Партнеры
Арма: корпуса 4, 5, 5а. Разрезы © Сергей Киселев и Партнеры
Арма: корпуса 4, 5, 5а. Разрез © Сергей Киселев и Партнеры
Арма: корпуса 4, 5, 5а. Разрез © Сергей Киселев и Партнеры
Арма: корпуса 4, 5, 5а. Разрезы © Сергей Киселев и Партнеры
Арма: корпуса 4, 5, 5а. Разрезы © Сергей Киселев и Партнеры
Арма: корпуса 4, 5, 5а. Разрезы © Сергей Киселев и Партнеры
Арма: корпуса 4, 5, 5а. Фасад © Сергей Киселев и Партнеры
Арма: корпуса 4, 5, 5а. Фасад © Сергей Киселев и Партнеры
Арма: корпуса 4, 5, 5а. Фасад © Сергей Киселев и Партнеры
Арма: корпуса 4, 5, 5а. Фасад © Сергей Киселев и Партнеры
Арма: корпуса 4, 5, 5а. Фасад © Сергей Киселев и Партнеры
Арма: корпуса 4, 5, 5а. Фасад © Сергей Киселев и Партнеры
Арма: корпуса 4, 5, 5а. Узлы © Сергей Киселев и Партнеры
Арма: корпуса 4, 5, 5а. Узлы © Сергей Киселев и Партнеры
Арма: корпуса 4, 5, 5а. Узлы © Сергей Киселев и Партнеры
Арма: корпуса 4, 5, 5а. Узлы © Сергей Киселев и Партнеры
Арма: корпуса 4, 5, 5а. Узлы © Сергей Киселев и Партнеры
Арма: корпуса 4, 5, 5а. Узлы © Сергей Киселев и Партнеры
Арма: корпуса 4, 5, 5а. Узлы © Сергей Киселев и Партнеры
客服
消息
收藏
下载
最近




























































