查看完整案例

收藏

下载
Kambimoto housing
Nairobi, Kenya
In-situ upgrading of slum dwellings focused on incremental housi
Phase:
in use
Design:
Tecta Consultants
The Kambimoto project is the result of many years of diligent work by Pamoja Trust, in partnership with Muungano wa Wanavijiji, working in the Mathare Valley slum, on the northern edge of Nairobi. Once completed, approximately 70 units of new housing will replace the previous substandard housing located on site. The construction of the project began in 2003, and the first 34 units were completed in 2005. Another 20 units were completed in 2009, and the rest are yet to be completed. The new housing is incremental, where each family is provided with a basic one-bedroom, one-story space with a small sink and bathroom that could eventually be expanded vertically up to three stories.
One of the goals of this project was to shift the power and decision making process to the community members themselves Another goal was to ensure that they would be able to remain on the land they had lived on for years, but then also remain in the new houses years once they were completed.
In many ways, the completion of actual housing units, is only one very small part of this project. The community building and engagement process began in 2000, while construction didn’t commence until five years later. Pamoja and Muungano spent a significant amount of time understanding the community dynamics through an intensive process. Central to this process was enumerations, which collected information from each community member. Additionally, they worked with community members to develop savings schemes, whereby each person would contribute a small amount of money each month toward a down payment on their future homes. It was through this process that Pamajo and Muungano recognized that both structures and tenants have rights – a rare acknowledgement. As a result, all future homeowners were able to agree that everyone would get the same size starter house. In addition, because of the organization, funds saved, and clear plan developed, Pamoja was able to convince Nairobi City Council to grant land tenure to the community. Without this, the new housing could be deemed illegal, and would face many of the uncertainties that the rest of Nairobi’s informal settlements deal with.
In the Kambimoto project, Pamoja Trust used some technology developed for slum upgrading in India. Using small, precast pieces of concrete, the technology not only makes a sturdy house, but is also something that can be done by local community members. There was a mini-fabrication tent where the individual pieces were pre-fabricated. Skilled masons led the overall construction, which consisted of pre-case pieces, cast in place columns, and concrete blocks. Community members were trained in all of these processes.
The strength of the new materials also added other benefits. Once the first floor was completed, most people had a rooftop, where they could hang clothes, raise rabbits, grow plants, and gather. This was never the case with the corrugated metals shacks most of them inhabited before.
The connection to land cannot be understated in the Kambimoto project. This project’s main goal was to secure tenure to land that these community members were already living on. Additionally, this project ensured that those living on this particular plot of land could actually remain there, as opposed to moving to new housing somewhere else.
From a climate standpoint, the thermally massive materials of concrete and block create a much more temperate and comfortable house to live in compared to the ubiquitous metal shacks that define Nairobi’s slums.
2008-2011: changes
2008-layout
2008-gates
2008-rooftops
2008-unfinished stairs
2008-rooftop
2008-house1
2008-floor construction
2008-floor construction2
2008-training
2008-construction blocks
2008-construction
2008-construction
2008-old/new
2008-fabrication/training space
2008- precast beams
2011-facade
2011-facades
2011-entry
2011-street
2011-additions
2011-bedroom
2011-kitchen
2011-side street
2011-street
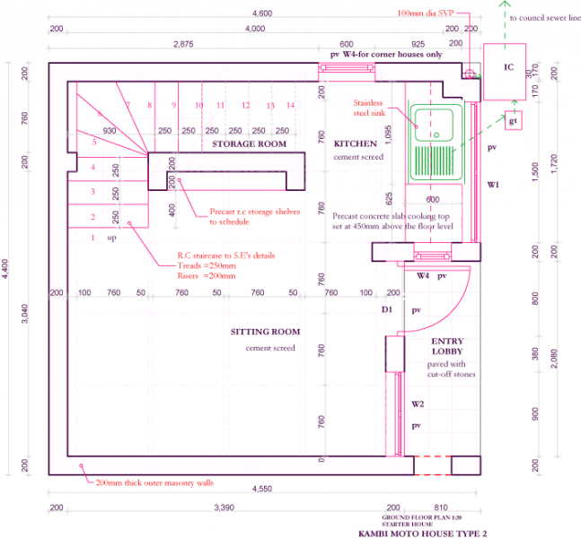
Kambimoto- Unit Ground Floor
Kambimoto- Unit First Floor
Kambimoto- Unit Second Floor
Kambimoto- Front Elevation
Kambimoto- Section
More info at Incremental House
客服
消息
收藏
下载
最近








