查看完整案例

收藏

下载
TRIFAB,
Mikel Marin
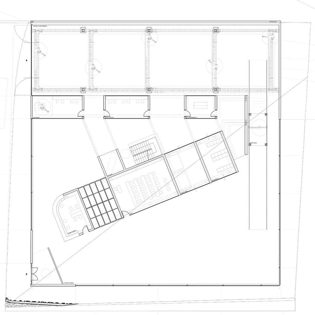
n nuevo espacio para el Fablab de la Escuela de Arquitectura de Donostia, un pabellón industrial donde la fabricación digital es la directriz del proyecto.
El proyecto pretende crear un nuevo espacio para el FabLab de la Escuela de Arquitectura de Donostia. La idea de convertir el pabellón industrial tradicional en algo que muestre el potencial de la fabricación digital es la principal línea directriz del proyecto. Un edificio que pretende convertirse en un referente para la ciudad que busca atraer e invitar a conocer más a fondo esta nueva forma de hacer artesanía y hacerla accesible a todos los interesados.
Mikel Marin
San Sebastián, España.
Escuela Técnica Superior de Arquitectura de San Sebastián.
2022
客服
消息
收藏
下载
最近












