查看完整案例

收藏

下载
Building 1, building 2 for Kurort Pirogovo
information:
status
project
date
01.
2007
—06.
2007
place
Russia
,
Kurort Pirogovo
function
Residential
/
Villa
Residential Area
2 000 м
2
Other Buildings
Пирогово (бывший пансионат Клязьминского водохранилища)
Nikolas Lyzlov
/
Russia
Architectural workshop Lyzlov («AML»)
/
Russia
Design Team
Nikolay Lyzlov, Marat Gareev, Nadezhda Voskresenskaya
Archi.ru about this project:
17.09.2007
Julia Tarabarina. Mannerism through modernism
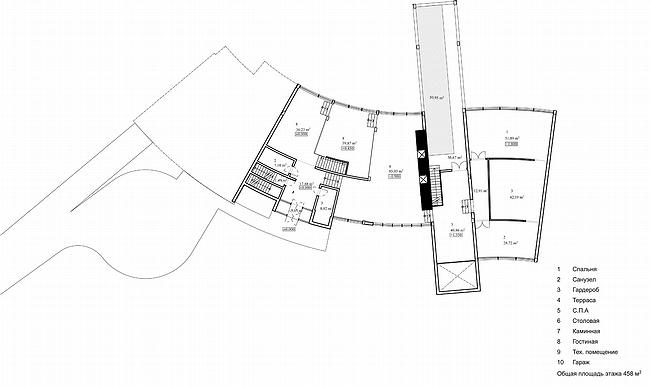
Two buildings set projected by Nikolay Lyzlov for Pirogovo combines purity of forms with their sophisticated interpretation. The resulting complex image is submerged into its natural environment and at the same time re-shaped it.
A villa projected by Nikolay Lyzlov for ‘Pirogovo resort collection’ consists of two buildings dug into earth next to the ideal surface of a golf-field in such a way so they were almost invisible. Most of the walls are of glass, are roofs are suppose
...
Nikolas Lyzlov,
Other Buildings:
客服
消息
收藏
下载
最近



































