查看完整案例

收藏

下载
戈者设计
尊重原貌现代复兴为庭院式画廊注入活力的公寓楼设计
尊重原貌,现代复兴 – 该公寓楼设计在布拉格的 Nusle 区,位于 Boleslavova 3 号的重建项目为一座建于 19 世纪和 20 世纪之交的庭院式画廊建筑注入了新的活力。重建工程保留了该建筑的历史精髓,同时加强了公共空间,并根据当代生活需求量身打造了具有现代布局的公寓。根据平面布局,设计出了 15 个独特的住宅单元,可以欣赏到努斯莱山谷的美景。新的干预措施以贯穿整栋房屋的非传统粉色调为代表。
庭院画廊建筑–建筑的全面改造重点在于创造紧凑的布局和空间细节,重新定义结构中几种过时的功能。长廊以前是通往各单元的公共露天走道,现在则变成了私人阳台。建筑后侧的外墙采用了浅羊绒色调,并进行了隔热处理。长廊的拱形天花板强调了庭院的独特性,而棋盘图案的瓷砖和精致的金属栏杆则使庭院更加柔和。庭院对所有住户开放,底层公寓前的花园也得到了很好的维护。坡屋顶上覆盖着混凝土瓦片,宽敞的工作室窗户将屋顶打通。
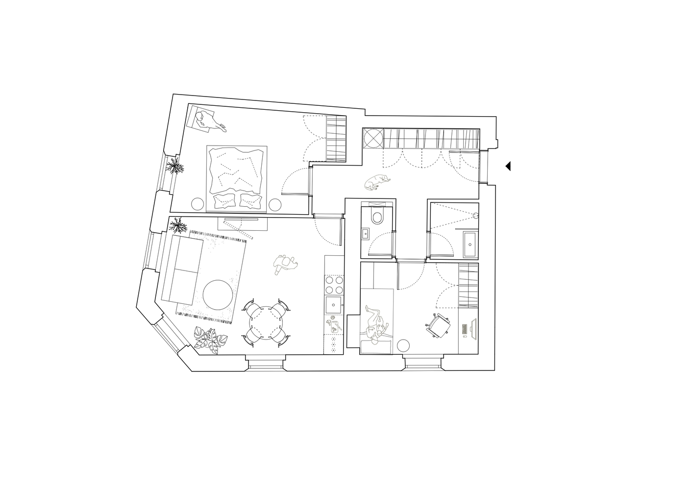
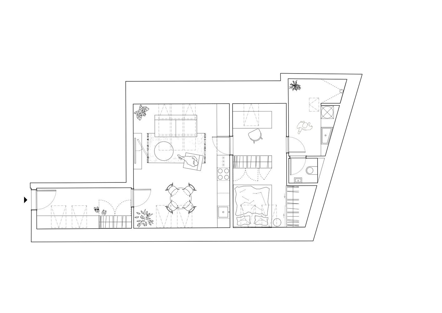
公寓布局–每个公寓单元都是独一无二的,没有重复的楼层布局。“一楼和二楼的公寓经过重新设计,更适合现代生活–浴室更宽敞,布局更合理,有的甚至还有阳台。用混凝土板加固天花板,不仅增强了楼层的结构稳定性,还以裸露混凝土天花板的形式增添了迷人的视觉元素。一楼和二楼之间是该住宅中唯一的一栋小别墅,其入口直接通向街道。阁楼的改动最大,以前的阁楼空间被分割成四个大小不一的单元。关键的挑战之一是避免吊顶,同时最大限度地布置天窗,即使在浴室这样的空间也不例外。浴室门上方的圆形采光井将日光引入入口走廊。建筑师凯特琳娜-普鲁乔娃(Kateřina Průchová)在介绍布局解决方案时解释说:”自然采光是阁楼的重点,并成功地融入了其他楼层的房间。
公寓内饰 – 每套公寓的新布局为满足未来住户的个性化需求创造了理想的框架。所有单元都采用统一的标准,包括带集成电暖气的地板和土白色调的现代浴室。此外,还配备了加热毛巾架以及格雅(Grohe)和劳芬(Laufen)品牌的卫浴设备。底层公寓保留了原有的结构元素,如桶形拱顶和壁龛,增强了住宅的历史特征,同时提供了视觉和功能价值。位于底层的一套样板房也是由 Plus One Architects 设计的,采用了不锈钢厨房和荷兰品牌 Palet 的红粉色釉面砖,还有实用的异型百叶窗,既保护了隐私,又能在炎热的夏天降温。这栋楼唯一的一栋公寓因其整体式混凝土楼梯而引人注目。此外,顶层还配备了空调设备,以确保舒适的室内环境。
投资者 – Plus One Architects 工作室的设计方法是以现代的方式发掘和突出现有空间的特质,并以对每个客户的个性化需求、愿景和限制的理解为驱动力。“整个过程的成功建立在投资者 Castle Rock Investments 给予我们的自由和信任之上。建筑师 Petra Ciencialová 在描述与开发商的合作时说:”客户支持我们设计的独特性,并不惧怕材料和色彩方面的大胆解决方案。建筑师 Petra Ciencialová 在谈到与开发商的合作时说,”我们的设计与众不同,既尊重了建筑的历史特征,又提供了功能齐全、美观精致的居住空间。虽然该建筑是为私人住宅设计的,但它为具有历史价值的城市建筑改造提供了更广泛的灵感。
客服
消息
收藏
下载
最近


































