查看完整案例

收藏

下载
戈者设计
功能理性的秩序深圳万象天地蕉内内衣店设计
在蕉内深圳万象天地内衣概念店的设计中,Some Thoughts取消了强行施加的“诗意”,尝试通过功能性全面主导空间,从而达成一种理性的秩序。功能性是一个真实、自主的存在,独立于任何具体的物质表现形式。在某种意义上,功能主义和“诗意”是相对立的。
在超越虚空的本质的过程中,理性和机械动态影响着它们的构成体系。吊轨仓储传递了技术和地理位移的概念,其中技术工程的功能性通过存在的行为得到加强。在这种循环的运行周期下,某种秩序便以功能的形式出现,并伴随着对抽象、虚空的打破。
金属作为非常规的线条其强度与韧性支撑了功能性与效率的存在,而不断混合和凝固的碎石、胶和水等材料以人为的方式激活着自然,并使得有机物在结构之间输出强烈的视觉记忆。
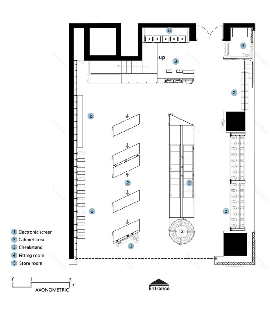
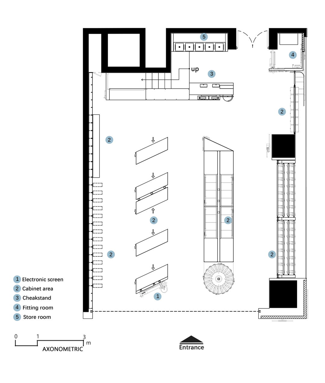
没有功能则没有现实。在相对集约的面积条件下,设计师将空间顶部设置了吊轨式的仓储体系取代了传统意义上的仓库。希望以更精准、复杂但高效的结构,区别于当下主流的空间表现形式。
在蕉内深圳万象天地店的概念设计中,设计师放弃对空间强加的“诗意”,从而衍生出空间本身的自由动线,而这种自由更是通过行为模式与功能的便利性来赋予。
项目名称|Bananain蕉内深圳万象天地概念店
项目地点|中国 深圳 南山区华润万象天地B1
设计公司|Some Thoughts空间设计工作室
主持设计|李京泽
设计团队|李连琳琛
项目业主|Bananain蕉内
主要用材|胶粘石、红铜不锈钢、亚克力、地砖、U型玻璃、肌理漆
室内面积|95㎡
设计时间|2021.7-2021.9
建造时间|2021.10-2021.12
项目摄影|SFAP
功能理性的秩序深圳万象天地蕉内内衣店设计
客服
消息
收藏
下载
最近













































