查看完整案例

收藏

下载
>璞采 | 行 . 深
璞采 | 行 . 深
参考造价:
20万元
空间:休闲空间
面积:110平米
浏览数:2143
案例简介
Case description
行:是一种态度
生活的魅力基于凝练……
深:是一种智慧
生活的旅途需要沉淀……
项目地址:中国·成都
设计方向:现代、质朴、干练
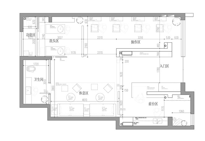
规避建筑结构缺陷,合理规划空间动线,划分出适当的空间区域比例,从而转换为顺畅的商业运作。
“两横一竖”的整体布局规划让空间显得干净干练。木质简洁隔断让空间更有层次,让空间有自己的符号。它和卫生间的木条隐形墙一柔一硬也显得相得益彰
设计的过程即是发现问题和解决问题的过程。空间略胖,中间厚厚的承重墙,缺乏自然光线,预算较为局限,它们让我们沉思也引来了我们后期收获的喜悦。
结合建筑本身结构规划出合理的建筑体块,让空间拥有自己的基因与特色……
木、水泥、深色漆面三种材质在空间形成穿插,体块的规划处理也让它们有了各自的退让和彰显。从而塑造了一个温厚饱满的空间。
深色吊墙形成自己独立的体块,让空间的形体表现更加突出。墙体的隔而不断,让沟通更为流畅,视野更加贯通
色彩厚重而不冷清,追求光与影的融合,水泥、木色及深色墙面与绿植搭配出一处一景
我们注重功能空间的体验感与舒适感,让它在拥有干净的空间基础上结合理性的光线搭配点上合适的软装配饰
软装从客户的质疑道后期的欣喜,也是一段不错的“旅程”
客服
消息
收藏
下载
最近








