查看完整案例

收藏

下载
>瞳爱--因爱而知其所住, 所持, 所味!瞳爱--因爱而知其所住, 所持, 所味!
参考造价:35万元
风格:现代简约
空间:二居
面积:120平米
浏览数:8010
案例简介
Case description
近相设计此次服务的是一对有着生活品味且对生活充满热情的业主。就在装修期间,业主迎来了新的小生命,为了工作需要跟小宝贝未来的教育问题,才选择购买此房。此房屋原是开发商的样板间。原房无论是空间结构还是其设计风格,业主都不甚满意,故交由近相设计重新改造。
业主需求是:1 希望空间能够更加通透;2 改造出两个卫生间;3 原有厨房太小;4 储物空间过少;5 能留出更多小朋友的活动区域;6 原设计风格太过于花哨,希望设计出既时尚简洁又清新自然的风格;7 女屋主平时工作比较忙,休息时希望能够有更加亲密的情感交流空间;
我们通过改造,屋主需求全部得以实现.
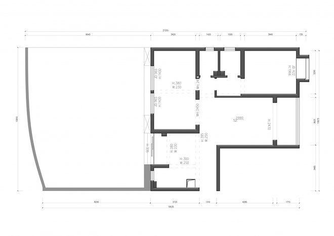
户型图
平面改动:1 厨房改成开放式厨房,增加岛台餐台,使餐厅厨房一体化。2 客厅原有阳台区域,纳入到客厅,增加了一个书吧区,使其客厅变大同时活动区更多,有时男主在书吧台看书工作同时能够及时的与家人产生互动。偶尔两个人也能在此喝点茶或咖啡。 3原有结构使小三房,通过把书房与小孩房打通,做成一个房间,同时沿着墙边做储物柜,增大了房间,以后小孩也有独立的玩耍和活动空间,同时用玻璃移门作为墙使空间变得通透,增加了互动性,以后小孩在房间里活动,父母也能随时注意得到。4原有卫生间使对着大门的,为了解决对冲问题,我们设计了隐形门,同时把原来不大的卫生间分割成两个独立卫生间解决功能问题。5对于露台搭建了一个功能阳光房,地面保留了原有的户外木,后期只用翻新即可,阳光房的功能主要作为以后聚会就餐运动区及洗衣区为一体,特别是在冬天会有一个温暖区域家人可以一起在里面活动,为了夏天不北太阳暴晒也没有用传统的玻璃顶。拥有露台最大的好处是拓展的室内活动空间能与户外有更多的活动空间。8满满的爱,满满的关怀,用我们的视觉打开生活的畅想。
因爱而变,因爱而知其所住, 所持, 所味。
我们将原与客厅相连的阳台区域直接纳入到客厅,并增加了一个书吧区,使客厅空间变大,同时还多出了活动空间。业主能在书吧区看书、工作;闲暇时也能与伴侣在此品茶或咖啡,共度亲密的休闲时光。
此改造充分的满足了业主对空间通透感及情感交流的需求。
从客厅看书吧区,联通后空间显得开阔了
沙发背景
电视柜
摆件
客厅电视墙
从餐厅看过去,本来餐厅不大,平时4人位够了,配木质伸缩餐桌当人多的时候也方便。
开放式厨房,餐厅和吧台一体。我们将原有的封闭式厨房改造成开放式厨房,增加岛台餐台,使餐厅厨房一体化,让空间使用得以物尽其用。软装配饰采用现代混搭元素,整体风格协调一体。
装饰画
入户,换鞋凳
过道,木饰面
隐形门,原有入户正对着卫生间的门,设计了造型隐形门,与过道木饰面融为一体。
主卧,主卧设计完美的展现了业主对色彩的审美需求,所有底色中融入质感灰,跳色配饰清新淡雅。
床头
衣柜
主卧墙面处设计了跳色的艺术挂钩,既可以解决物品挂放,又可以解决墙面色彩过于单一的审美需求。
挂钩
为了使卫生间变得好用 ,进卫生间采取暗藏移门形式,内部马桶用的壁挂式马桶,后期也可以加装淋浴隔断。
高低床,衣柜
原有结构是三个小小的房间,通过把书房与儿童房打通,做成了一个整体房间,使得小朋友有更多独立玩耍的空间;同时沿墙边设计储物柜,解决了原设计中储物空间少的问题;我们使用玻璃移门作为隔墙,一方面使得使空间变得通透,增加了互动性,另一方面可以满足父母需要关注及照看年幼孩童的需求。
露台搭建了一个功能阳光房,地面保留了原有的户外木。阳光房的功能我们主要设计成聚会就餐及运动区域,同时兼顾了洗衣区功能。为夏天不被太阳暴晒,没有使用传统的玻璃顶。业主无论什么季节都可以足不出户的拥有宽敞舒适的活动空间。
台灯
装饰画
书吧台
客厅全景
软装方案
客服
消息
收藏
下载
最近








