知末
知末
创作上传
VIP
收藏下载
登录 | 注册有礼

45万元餐饮空间350平米装修案例(湘菜馆设计)

2023/11/15 00:00:00
查看完整案例
微信扫一扫
收藏
下载
湘菜馆设计
参考造价:
45万元
空间:餐饮空间
面积:350平米
浏览数:3523
案例简介
Case description
现代与中式元素的碰撞并融合进去,使得空间更具风情。
45万元餐饮空间350平米装修案例(湘菜馆设计)-9
45万元餐饮空间350平米装修案例(湘菜馆设计)-10
45万元餐饮空间350平米装修案例(湘菜馆设计)-11
45万元餐饮空间350平米装修案例(湘菜馆设计)-12
45万元餐饮空间350平米装修案例(湘菜馆设计)-13
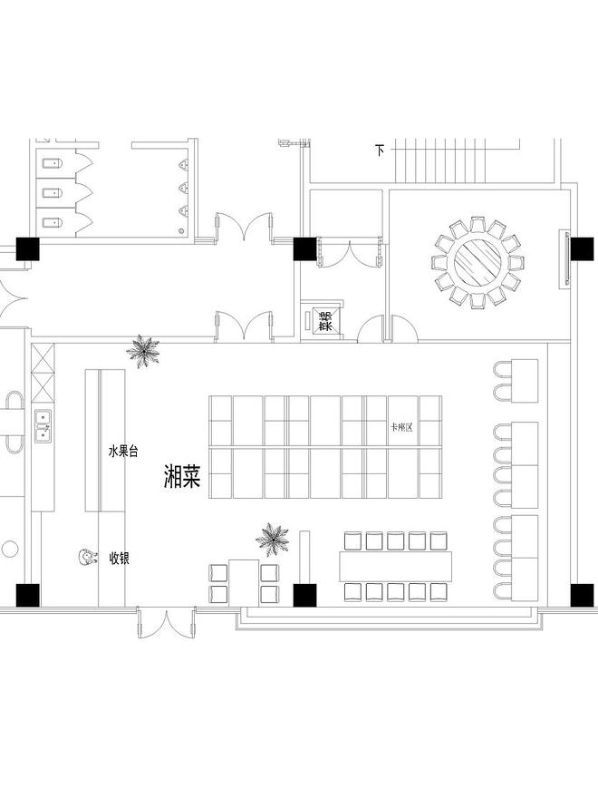
一楼平面布置图
45万元餐饮空间350平米装修案例(湘菜馆设计)-15
二楼平面布置图
南京喵熊网络科技有限公司 苏ICP备18050492号-4知末 © 2018—2020 . All photos and trademark graphics are copyrighted by their owners.增值电信业务经营许可证(ICP)苏B2-20201444苏公网安备 32011302321234号
客服
消息
收藏
下载
最近