查看完整案例

收藏

下载
24 logements sociaux – Restructuration du quartier Les Cavaliers I
rue Georges Guynemer, 69400
Villefranche-sur-Saône
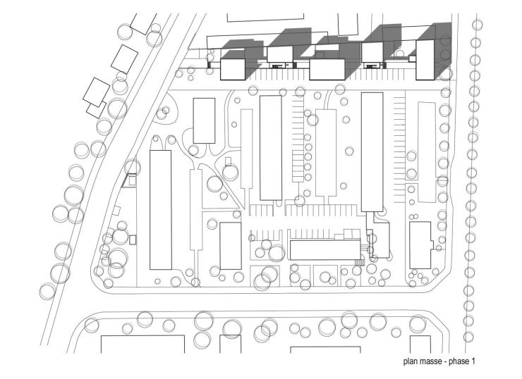
Le travail de l’atelier Philippe Challes porte sur la restructuration du quartier « Les Cavaliers » au nord-ouest de Villefranche-sur-Saône, qui comprend la démolition d’un ensemble de logements LOPOFA (LOgements POpulaires FAmiliaux) construit entre 1930 et 1960, et la reconstruction de quatre immeubles, ainsi que le réaménagement des abords.
Le cahier des charges du maître d’ouvrage identifiait trois problèmes à résoudre pour créer une nouvelle identité à ce quartier dont l’image très dégradée entraînait un fort taux de vacance. Le constat a mis en relief la petite taille des appartements, loin des standards actuels (coin cuisine dans le séjour, salles d’eau), des stationnements disséminés sur l’ensemble du site, en pied d’immeubles, créant des nuisances (bruit, sentiment d’insécurité…) et enfin des limites entre espaces publics et privés peu discernables.
Les quatre bâtiments neufs sont construits pour maintenir le nombre de logements sur le site et s’organisent le long d’une rue intérieure en déclinant plusieurs types de logements. Les immeubles forment de petits plots bardés de bois et couverts de toitures végétalisées. La partie nord du site était traversée d’est en ouest par une voie de desserte surdimensionnée (rue Georges Guynemer) ; en la requalifiant, une largeur de terrain de 20 à 25 mètres a été reconquise entre les immeubles construits et la limite nord.
Le fait de ramener cette voie au plus près de l’existant a permis d’éloigner les nouvelles constructions, de faciliter le rapport d’échelle entre les immeubles environnants et ceux de la parcelle et enfin d’assurer une liaison visuelle des gabarits du bâti en gérant les rapports d’échelle. Ce nouveau bâti de faible hauteur a permis en outre de diversifier la nature des logements du quartier. Le projet se limite à des collectifs en R+3, voire de gabarit inférieur en limite de propriété nord (R+2). Le stationnement privatif est localisé soit en pied d’immeuble avec des dispositifs de filtre (grille végétale), soit en rez-de-chaussée sous les immeubles de logements. Ce parti permet de minimiser l’impact du stationnement et, par des dispositifs d’articulation, de privatiser l’espace en pied d’immeuble ou de le rendre collectif.
Cette variété de logements offre une multiplicité d’appropriation pour les futurs locataires. La rue Georges Guynemer a été également remodelée pour les personnes à mobilité réduite ; les logements sont accessibles de plain-pied. Le gabarit des immeubles étant limité à R+3, ceux-ci sont dépourvus d’ascenseur. Ce travail de « résidentialisation » s’inscrit pleinement dans le cadre de la requalification du quartier des Cavaliers.
Programme
Construction de 24 logements sociaux, stationnements et requalification de la rue Georges Guynemer
Concepteur(s)
Atelier d'Architecture Philippe Challes
Maître(s) d'ouvrage(s)
HABITAT BEAUJOLAIS VAL DE SAONE (HBVS)
Types de réalisation
Habitat collectif
Année de réalisation
2008
Surface(s)
2 710 m² (SHON)
Coûts
1 891 858 € TTC (bâtiment) - 363 120 HT (abords)
Crédit photos
Patrick Müller
Liens page web
Site de l'agence
Réalisation mise à jour
janvier 2024
Array
(
[lat] => 45.993451
[lng] => 4.7056729
[zoom] => 18
[markers] => Array
(
[0] => Array
(
[label] => 298 Rue des Acacias, 69400 Villefranche-sur-Saône Vaurenard, France Auvergne-Rhône-Alpes
[default_label] => 298 Rue des Acacias, 69400 Villefranche-sur-Saône Vaurenard, France Auvergne-Rhône-Alpes
[lat] => 45.9936411
[lng] => 4.7069818
[geocode] => Array
(
[0] => Array
(
[name] => 298, Rue des Acacias, Les Rousses, Vaurenard, Villefranche-sur-Saône, Rhône, Auvergne-Rhône-Alpes, France métropolitaine, 69400, France
[html] => 298 Rue des Acacias, 69400 Villefranche-sur-Saône Vaurenard, France Auvergne-Rhône-Alpes
[center] => Array
(
[lat] => 45.9936457
[lng] => 4.7069828
)
[bbox] => Array
(
[_southWest] => Array
(
[lat] => 45.9936457
[lng] => 4.7069828
)
[_northEast] => Array
(
[lat] => 45.9936457
[lng] => 4.7069828
)
)
[properties] => Array
(
[place_id] => 76032976
[licence] => Data © OpenStreetMap contributors, ODbL 1.0. http://osm.org/copyright
[osm_type] => node
[osm_id] => 5879942450
[lat] => 45.9936457
[lon] => 4.7069828
[class] => place
[type] => house
[place_rank] => 30
[importance] => 9.9999999999545E-6
[addresstype] => place
[name] =>
[display_name] => 298, Rue des Acacias, Les Rousses, Vaurenard, Villefranche-sur-Saône, Rhône, Auvergne-Rhône-Alpes, France métropolitaine, 69400, France
[address] => Array
(
[house_number] => 298
[road] => Rue des Acacias
[neighbourhood] => Les Rousses
[hamlet] => Vaurenard
[town] => Villefranche-sur-Saône
[municipality] => Villefranche-sur-Saône
[county] => Rhône
[ISO3166-2-lvl6] => FR-69
[state_district] => Rhône
[state] => Auvergne-Rhône-Alpes
[ISO3166-2-lvl4] => FR-ARA
[region] => France métropolitaine
[postcode] => 69400
[country] => France
[country_code] => fr
[building] =>
[city] =>
[village] =>
)
[boundingbox] => Array
(
[0] => 45.9935957
[1] => 45.9936957
[2] => 4.7069328
[3] => 4.7070328
)
)
)
)
[uuid] => marker_659564e97d2d8
)
)
[address] => 298 Rue des Acacias, 69400 Villefranche-sur-Saône Vaurenard, France Auvergne-Rhône-Alpes
[layers] => Array
(
[0] => OpenStreetMap.Mapnik
)
[version] => 1.5.6
)
客服
消息
收藏
下载
最近













