查看完整案例

收藏

下载
Minimalist concrete apartments fill a narrow site in Tokyo, designed by Ryuichi Sasaki Architecture
Tokyo
-based Ryuichi Sasaki Architecture has completed a
residential
scheme in the western part of the Japanese capital defined by an exposed
concrete
structure on a constrained site. According to the designers, the three-unit scheme “emphasizes maximal utilization of natural energy and pursues comfortable livability.”
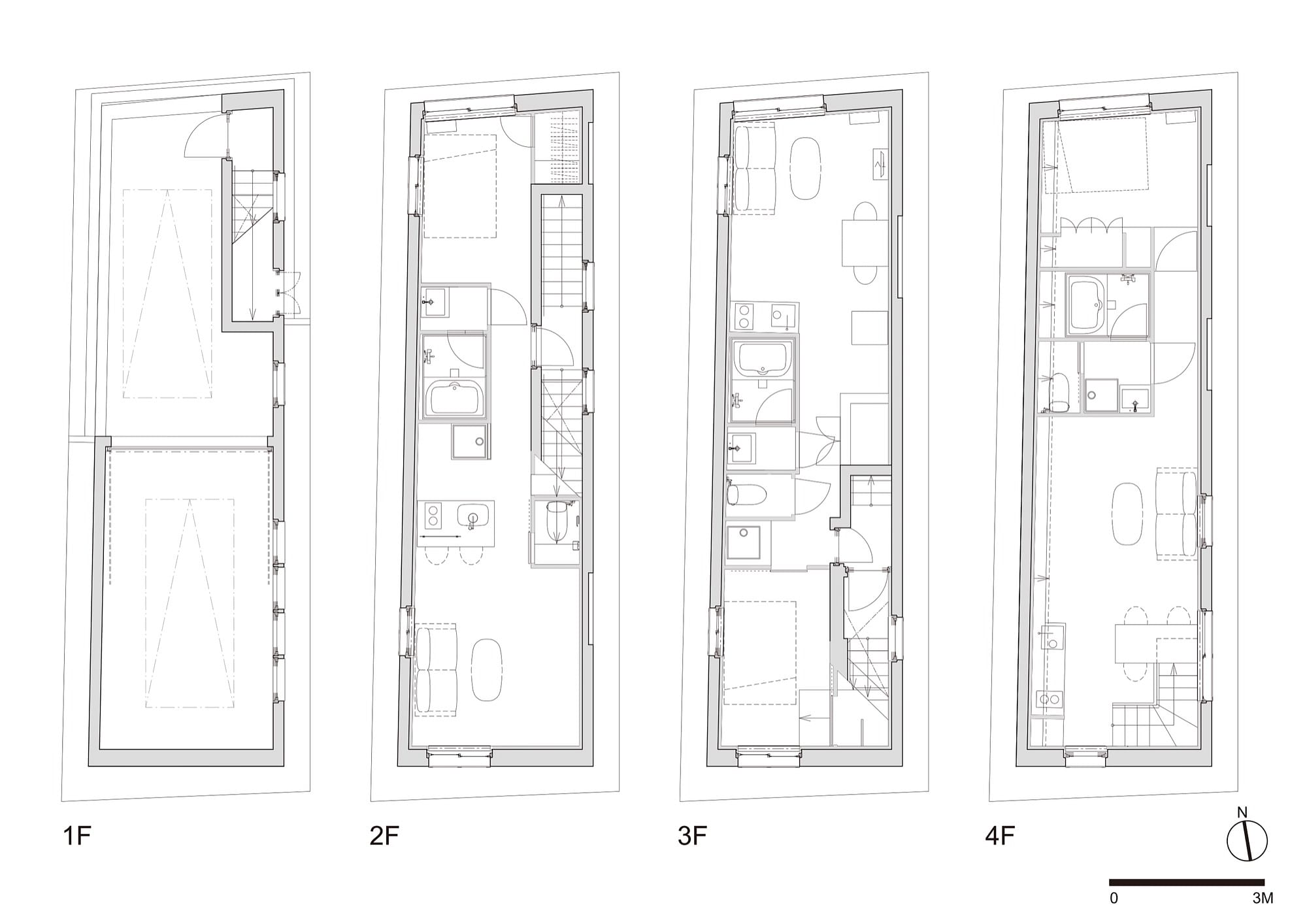
Designed in collaboration with Kiz Architects and Hidetaka Gonai/Escenario, and completed in the winter of 2022, the project measures only 15 feet wide and 46 feet deep. Responding to the site’s narrow constraints, the scheme sees a single staircase linking four levels, “utilizing the space efficiently to ensure ample living areas.”
The staircase is visually integrated into the living spaces, serving as both functional steps and display storage. In addition, the top floor incorporates a workspace counter atop the staircase to facilitate remote working for residents. Elsewhere, two parking spaces are accommodated by a
cantilever
along the eastern elevation, in a move that also facilitates potential room for recreational use.
Inside the apartments, all rooms feature a
minimalist
color scheme with unified white fixtures, fittings, and lighting, alongside concrete and white walls, resulting in an “uncluttered, refined ambiance.” Meanwhile, large, high-performance windows allow natural light and ventilation to minimize the need for air conditioning or artificial lighting.
“The building employs linear lighting to enhance a sophisticated urban atmosphere,” the designers explain. “Despite slope limitations, the lighting design on the inclined top floor walls creates a contrast of light and shadow, enlarging the space's appeal within its limited area, and ensuring a rich living experience.”
客服
消息
收藏
下载
最近























