查看完整案例

收藏

下载
《昼漾 · 月望》
参考造价:
150万元
风格:现代简约
空间:复式
面积:180平米
浏览数:4941
案例简介
Case description
整体是简约风,动线明朗清晰,真正呈现艺术与空间的比例关系,凸显秩序感。在色彩上有着极强的表现力,运用经典的黑白灰搭配温润的原木色与暖橙色,塑造浅淡适宜、简单优雅的视觉美感。
设计之笔勾勒出客厅的灵魂,从细节方面描摹出和谐的艺术美与人文美,打造出现代艺术画廊的既视感,创造和激发出超强的辨识度和容易产生共鸣的空间美感。也在居住者和家之间,悄然建立了温馨的联系。
几何、线条、配色等视觉信号,传递了舒适、惬意、轻松的氛围。光线自由穿梭在室内,与居住者细腻互动,各区域之间既相连又分隔,既有动态又有静态,这是空间梳理的隐形纽带,无限衍生家的功能与情感。
自由流畅的肌理,在餐边柜与餐桌上蔓延,提升了餐厅的艺术张力。简约的高级灰与纯粹的白色错落有致地分布,能令就餐者迅速静下心来,专注于眼前的美食佳肴。设计是无声的,却蕴含着饱满的爱与期待。
设计从传统的厨房结构里跳脱出来,将嵌入式家电与橱柜结合,在材质、色彩、形状的不断变化中,厨房与水吧台之间形成了一种互动式的艺术。各种体块的艺术穿插,创造了更多隐形的收纳空间,轻盈、通透、干净、有序的感觉扑面而来。
阅读角与休息角,颠覆了空间的单一性,保留并发挥出阳光充足的优势。未做任何隔断与形式上的分区,简单的一面柜子与一把沙发椅,就塑造了无限的可能性,希望居住者在此自由探索空间的意义。
简约宁静的卧室中,你不用再被城市的霓虹和匆忙追赶,可以静享月光的照耀与亲吻。清爽的夏风吹来,悦耳情话与动听歌声在你耳旁;温馨的小灯点亮,夜风星光与浪漫日常来你身旁。
卫生间在有限的空间内,塑造具有极强美感的布局,捕捉无数便利又幸福的瞬间。“诗成流水上,梦尽落花间”,光影交错下,呈现着现代风格的低调与高雅,这样的家,声色动人。
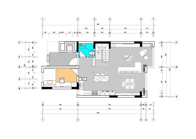
1楼平面布置图
-1平面布置图
2楼平面布置图
自由流畅的肌理,在餐边柜与餐桌上蔓延,提升了餐厅的艺术张力。简约的高级灰与纯粹的白色错落有致地分布,能令就餐者迅速静下心来,专注于眼前的美食佳肴。设计是无声的,却蕴含着饱满的爱与期待。
在材质、色彩、形状的不断变化中,厨房与水吧台之间形成了一种互动式的艺术。各种体块的艺术穿插,创造了更多隐形的收纳空间,轻盈、通透、干净、有序的感觉扑面而来。
设计从传统的厨房结构里跳脱出来,将嵌入式家电与橱柜结合,
设计之笔勾勒出客厅的灵魂,从细节方面描摹出和谐的艺术美与人文美,打造出现代艺术画廊的既视感,创造和激发出超强的辨识度和容易产生共鸣的空间美感。也在居住者和家之间,悄然建立了温馨的联系。
在色彩上有着极强的表现力,运用经典的黑白灰搭配温润的原木色与暖橙色,塑造浅淡适宜、简单优雅的视觉美感。
整体是简约风,动线明朗清晰,真正呈现艺术与空间的比例关系,凸显秩序感。
几何、线条、配色等视觉信号,传递了舒适、惬意、轻松的氛围。光线自由穿梭在室内,与居住者细腻互动,各区域之间既相连又分隔,既有动态又有静态,这是空间梳理的隐形纽带,无限衍生家的功能与情感。
卫生间在有限的空间内,塑造具有极强美感的布局,捕捉无数便利又幸福的瞬间。“诗成流水上,梦尽落花间”,光影交错下,呈现着现代风格的低调与高雅,这样的家,声色动人。
简约宁静的卧室中,你不用再被城市的霓虹和匆忙追赶,可以静享月光的照耀与亲吻。清爽的夏风吹来,悦耳情话与动听歌声在你耳旁;温馨的小灯点亮,夜风星光与浪漫日常来你身旁。
阅读角与休息角,颠覆了空间的单一性,保留并发挥出阳光充足的优势。未做任何隔断与形式上的分区,简单的一面柜子与一把沙发椅,就塑造了无限的可能性,希望居住者在此自由探索空间的意义。
客服
消息
收藏
下载
最近








