查看完整案例

收藏

下载
>与原木朝夕相处,挥洒童趣的无限可能
与原木朝夕相处,挥洒童趣的无限可能
参考造价:
60万元
空间:教育机构
面积:260平米
浏览数:2676
案例简介
Case description
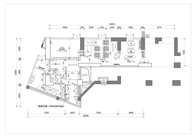
此案例位于深圳.南山.一处住宅小区一楼。
整体功能区分为,①接待区,②前台区,③教课区,④储藏间,⑤就餐区⑥,阅读区,⑦,洗手间。
二楼主体功能为
①教室办公室,②教课区及休息区,③,洗手间
入户大门在设计上,我们规划了一处缓冲空间,方便家长接送有个缓冲地带。
户外大面透明玻璃幕墙能够一览无遗看清园区内的接待区,从而减轻园内孩子接送上以及参观人群的心理上距离感。
外墙材质上保留了原有灰色文化墙,门头招牌上延伸了外墙材质保留整体感,统一和谐。
大门进来首先进入的是接待区,设计上量身定制为小朋友制作了换鞋凳以及换鞋柜,培养小朋友的良好生活习惯。
丰富的色调贯穿柜体和家具,小朋友的想象力时是丰富的,我们适当以此为引导。尤其是房屋形状的柜体是小朋友躲猫猫的重要伙伴。
接待区进入二楼的楼梯,我们在第一步梯中做了1米的缓冲平整区,为避免有可能造成的滑落减少进一步受伤的可能性。
从接待区,通过矮高的门就正式进入了园区,前台区弧形的设计一直延伸至储藏间至一楼洗手间。避免小朋友误入造成不必要的磕碰。
进入洗手间的墙体我们采用了动物形态进行设计,丰富了小朋友的想象空间,直接能看到以海洋为主题的洗手间。增加了趣味性以达到小朋友良好的如厕习惯。
一楼急就餐区保留了原有结构的楼梯,以圆形原木扶手做了改善。每级踏步之间以弧形条收口,大大降低尖锐物体给小朋友带来的潜在危害。
墙顶原木格栅隐藏了设备,周边白色涂料与立面墙体形成材质的呼应,过道处保留了大面积的白。为日后挂放小朋友的画作和生活记忆碎片。温暖及美好不需要刻意但却需要营造被保留的空间,我想这应该是园区一直和设计团队强调的经营理念。
一楼就餐区保留原有的楼梯的重要原因在于此处有通道进入户外花园,
当小朋友们就餐完成后,从动线的便捷性可以直接进入户外花园进行短暂的活动。
一楼的员工就餐空间,在设计上我们做了一个圆形条状窗口。让教室和小朋友的互动增加空间。
一楼洗手间我们以海洋为主题进行设计
顶面采取以海水为主题的顶部材质,墙面与地面马赛克的通铺让小朋友如厕上置身海洋之中,增加趣味性加强记忆以此培养良好的如厕习惯。
二楼的教课及休息空间,我们保留了与一楼顶部原木格栅的做法,地面的原木地板和顶面形成呼应,之间的家具均有日本进口,在于日方的家具设计沟通之际,对家具抽屉及高度的细心贴心要求让我们很受鼓舞,不得不承认在家具方面日方的考虑更贴近使用需求,也让我们更加明白一套好的设计应该有更多可能性。
二楼的整体空间我们在灯光设计上是减分项,也因此是我们此案例的遗憾,从光感,参数,位置都需要值得更深的考究和打磨。
二楼教课区。
二楼教课区。
二楼洗手间沿用海洋及动物形态元素,墙角后均设置防撞条。
此案例给我们设计团队的感触在对待案例应该更多的考虑每一处可能,这也是我们坚持每套案例都需要它的完整性,能够给委托人和使用的每一个人带来便利和改变是团队值得有成就感的事。
客服
消息
收藏
下载
最近








