知末
知末
创作上传
VIP
收藏下载
登录 | 注册有礼

莫兰迪的小确幸 68平米装修案例丨美国丨那阁设计

2022/04/04 00:00:00
查看完整案例
微信扫一扫
收藏
下载
>莫兰迪的小确幸
莫兰迪的小确幸
参考造价:
14万元
风格:北欧风
空间:其他
面积:68平米
浏览数:933
案例简介
Case description
项目性质:LOFT公寓
设计:那阁设计
面积:43㎡+8.3㎡(阁楼)
层高:4.3米
地址:广州番禺区华美国际
主要用材:喷涂、钢筋、钢板喷白色氟碳漆、木纹石塑地板、乳胶漆、小方砖等。
莫兰迪的小确幸  68平米装修案例丨美国丨那阁设计-16
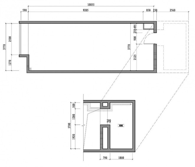
原建筑平面图
莫兰迪的小确幸  68平米装修案例丨美国丨那阁设计-18
原建筑现场照片
莫兰迪的小确幸  68平米装修案例丨美国丨那阁设计-20
首层平面图
莫兰迪的小确幸  68平米装修案例丨美国丨那阁设计-22
夹层平面图
莫兰迪的小确幸  68平米装修案例丨美国丨那阁设计-24
莫兰迪的小确幸  68平米装修案例丨美国丨那阁设计-25
南京喵熊网络科技有限公司 苏ICP备18050492号-4知末 © 2018—2020 . All photos and trademark graphics are copyrighted by their owners.增值电信业务经营许可证(ICP)苏B2-20201444苏公网安备 32011302321234号
客服
消息
收藏
下载
最近