查看完整案例

收藏

下载
CATL Casa de té / HATCH Architects
CATL Casa de té / HATCH Architects
韩爽 - HAN Shuang
Arquitectos:
HATCH Architects
Área:
467
m²
Año:
2024
Fotografías:
Fangfang Tian
Proveedores:
Amazing Energy Technology (Hangzhou) Co.
Wuhu Dingfu Landscape Material Co., Ltd.
Café
Sustentabilidad
David Wei
Equipo De Diseño:
Zhao Danjing, Gan Ji, Lu Huiqin, Wang Qian, Wu Jiechen, Zhang Yuchao, Song Zhizhen, Yang Ying, Duan Jingjing, Huang Pinyang, Su Li Li, Ni Jianmin, Wang Haiping, Chen Hao, Tang Wei, Li Yanzhi
Fujian Guanyunxin Construction Engineering Co.
CATL
Ningde
China
Para abordar la crisis climática global y alcanzar los objetivos de "doble carbono" de China, CATL ha cambiado su enfoque de los logros notables en el campo de las baterías de nueva energía a la creación de entornos urbanos verdes, inteligentes y habitables. La banda de Möbius, un símbolo de ciclos perpetuos, inspiró el diseño de la casa de té. A diferencia de las técnicas pasivas de ahorro energético, este proyecto empodera activamente al edificio con tecnologías avanzadas de nueva energía e interconectividad inteligente.
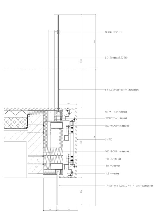
Toda la estructura utiliza BIPV (Fotovoltaica Integrada en Edificios), lo que permite un suministro de energía verde de ciclo completo dentro de un espacio limitado. La precisión del alineamiento de los paneles fotovoltaicos con las curvas del techo asegura una armonía visual. Con materiales como vidrio ultra claro y UHPC (Hormigón de Ultra-Alta Prestación), el diseño logra transparencia y eficiencia energética.
Mientras tanto, la estación de carga inteligente al pie de la montaña proporciona funcionalidad bidireccional de vehículo a red, permitiendo a los vehículos devolver energía a la casa de té. Esto maximiza la eficiencia del uso de energía. Con una producción anual de energía de aproximadamente 55,000 kWh, la casa de té reduce las emisiones de CO₂ en aproximadamente 54.8 toneladas, equivalente a plantar 3,000 árboles cada año.
La casa de té de cero carbono destaca entre la arquitectura rural circundante, creando contrastes marcados en materiales, colores y texturas. Sin embargo, a medida que los visitantes ascienden por el camino en espiral hacia la azotea, son recibidos por una sensación de armonía sin igual.
La estructura de dos pisos comprende un bar de té, un área de intercambio cultural del té y un espacio escénico de ocio, cada uno ofreciendo vistas espectaculares. Las elegantes curvas recorren todo el espacio, integrando sin esfuerzo la arquitectura con el diseño interior y asegurando la unidad del concepto general. Las paredes de vidrio panorámico permiten a los aldeanos y visitantes verse entre sí, formando una apreciación mutua.
David Wei, cofundador de HATCH, comentó: "La casa de té de cero carbono no es solo un edificio de moda; sirve como un conector que une estrechamente las aldeas circundantes, las montañas distantes, la energía renovable, las experiencias turísticas y los estilos de vida locales en una narrativa cohesiva de vida sostenible en la montaña."
HATCH Architects
客服
消息
收藏
下载
最近
































