查看完整案例

收藏

下载
Academia Eagle / Shinberg.Levinas Architectural Design
Academia Eagle / Shinberg.Levinas Architectural Design
Escuelas Renovación
Washington, Estados Unidos
Arquitectos: Shinberg.Levinas Architectural Design
Área: 138 ft²
Año: 2013
Fotografías: Alan Karchmer
Proveedores: Danpal, AutoDesk, Kingspan Light + Air
Escuelas Renovación
Arquitectos A Cargo: Salo Levinas, Milton Shinberg, Antonio Vintro
Equipo: Milton Shinberg AIA, Salo Levinas, Antonio Vintro, Carlos Talero, Robert White
Clientes: Eagle Academy PCS
Civil: VIKA Engineering
Estructura: Shemro Engineering
MEP: Setty & Associates
Contratista: Whiting-Turner
Ciudad: Washington
Pais: Estados Unidos
La Academia Eagle es una renovación completa y una adición a un antiguo edificio escolar. El proyecto tiene capacidad para 770 estudiantes desde jardín infantil hasta la escuela primaria.
El exterior del edificio se compone principalmente de láminas de policarbonato, que crean un efecto de linterna y refuerzan la escuela como un ícono del vecindario. La coloración y la expresión de la fachada son juguetonas y menos uniformes a la vez que presentan una cara limpia y ordenada hacia la calle. La nueva ala fue diseñada para integrar mejor la escuela dentro del vecindario.
La adición da a la calle y refuerza el borde de esta, lo que permite a la escuela mantener el área máxima del sitio para espacios de juegos y otras programaciones. Los puntos destacados del programa para la adición incluyen un nuevo gimnasio y una piscina con vestuarios y espacios de apoyo, así como una biblioteca, centro de computadoras y espacio de oficinas. Reforzando el estado de la escuela como un activo comunitario, los vecinos pueden acceder a la piscina y al gimnasio después del horario escolar. Un desafío importante fue la conexión entre las partes antiguas y nuevas del edificio al crear una entrada nueva, coherente y acogedora.
Planta baja
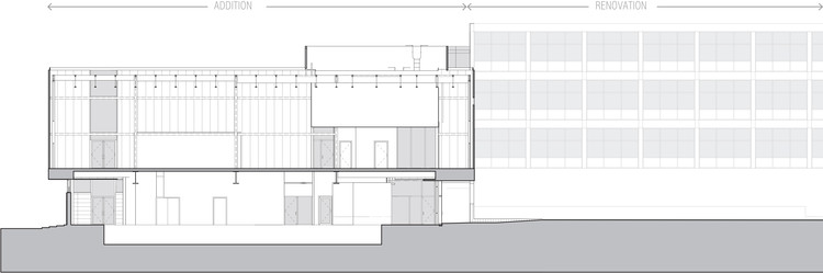
Corte 1
El lobby con sus múltiples conectores a los diversos componentes del edificio hace exactamente eso. Los niveles inferiores de la nueva ala están revestidos de vidrio transparente, lo que maximiza la cantidad de luz diurna que ingresa a los espacios, incluida la piscina. Los niveles superiores están revestidos con paneles de policarbonato translúcido que admiten una luz suave durante el día, lo cual es óptimo para la programación del gimnasio. El proyecto es parte de un plan maestro del sitio que permite la expansión futura y la adición de otro ala a la escuela para la educación o la programación comunitaria.
El proyecto tiene certificación LEED Gold
3400 Wheeler Rd SE, Washington, DC 20032, United States
Shinberg.Levinas Architectural Design
Materiales
Concreto
Plastico
Obras
Proyectos Construídos
Obras Destacadas
Arquitectura Educacional
Escuelas
Remodelaciones
Renovación
Washington
Estados Unidos
客服
消息
收藏
下载
最近





















