查看完整案例

收藏

下载
尽管材料本身并不是诗性的,然而我深信只要为它创造出具有意义的情景,材料便能在建筑里展现出诗性。
——彼得·卒姆托
以木为框架,在秩序中穿梭,错落中构成,游离间行止于光影之下,去营造相遇的偶然性,衍生一场多元场景的不定式体验。
01
穿梭:构建万象
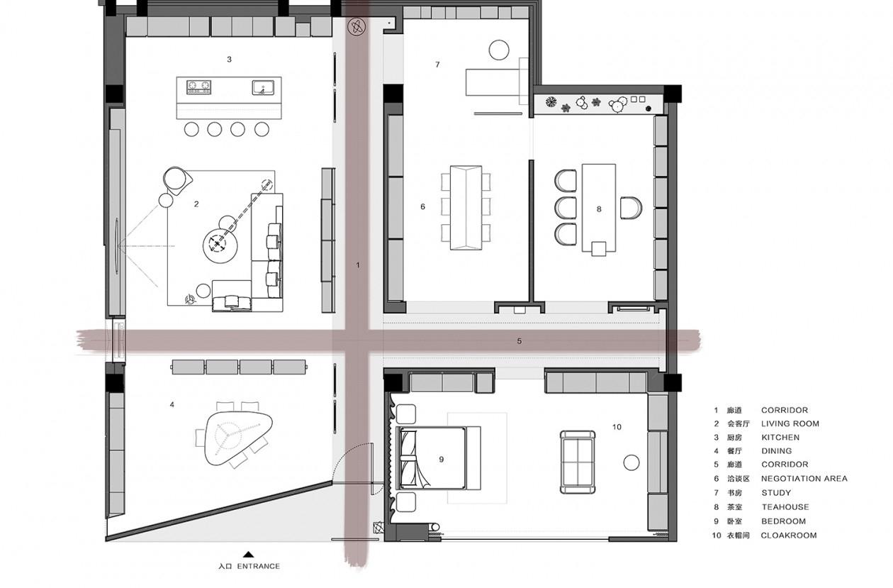
本案是GRIAN CABINET 格瑞恩全屋定制木作展厅,展厅主要承载私人商务接待。因展厅的私密属性,设计特意将入口改为斜切面,外向的开放结构转变为内隐的形态,拟藏边界的同时突出立面展现。主题墙结合木饰面与灯光造型,制造光影律动的层次感,如一座艺术结构与商场共生,彰显品牌气质。
设计对产品、功能、场景、材料等命题深入研究,汲取现代艺术风格,将产品落于丰富真实的生活体验,引导每一位到访者参与其中。
空间内部纵横两条主脉络,通过狭长的艺术廊道给予视野延伸,末端的雕塑吸引焦点,给予动线引导。场景之间连贯递进,每经过一个转折点,都会衍生向内探究的欲望,豁然开朗间唤醒人与环境的感知。
光影美学,是一种静默的哲学,内含刚与柔、恒与变的交织。两条艺术长廊互相畅游,墙面阵列排布火炬灯,仿佛在尺寸之地展开一幅画卷,以圣洁的姿态迎接每一位到访者。
02
变奏:空间交响
场景随动线产生洄游,互相分割、重组,既独立存在又协调共生。设计需要密切调度产品与空间的融合,衡量比例尺度组织多维产品切面,最终落地一整套定制化方案。区域之间逐渐形成过渡,区分不同主题氛围,共同参与这场生命力的变奏。
设计细化会客情景与模式,满足现代品质需求,打造品牌独有的生活哲学。「三角结构」作为客厅区域的视觉主题,形成稳固坚定的意向,朝着线性的、内在的趋势展开,回归物体本质,隐喻产品更加多元化的应用场景。
客厅设置三角体的蒸汽壁炉,使长廊两端形成对景关系,实现空间的交响。结构体内巧妙以玻璃通透外立面,构建四维立体感,内外界面形成有趣的互动,达到一场极具未来先锋主义的艺术体验。
03
叙述:光的边界
不同功能区的建立与串联,同步展示了人与空间的相处边界。设计运用隔断强化了空间轴线,调度区域之间游离、互动的关系,在有序的分割中减少彼此动态的干扰,散射更多动线选择,制造与产品相遇的偶然性。
客餐厨随动线指引,经结构递进,置身于和谐的秩序感,吸引到访者停驻、感知。木纹与不锈钢对冲,一冷一暖形成强烈的视觉反差,寂静无声却扣人心弦,感知现代质感的生活方式
“在伟大的建筑空间中,有一种阴影和光明持续不停地深沉地呼吸:阴影将光线吸入,亮处将光线呼出。”——尤哈尼·帕拉斯玛
设计运用光影塑造空间转场的层次感,暗调中隐喻微光的呈现,使得明与暗彼此交融,线条、形态甚至情绪都被清晰勾勒。
书房与洽谈区通过格子屏风,调度独立或开放的界定关系,避免刻意的距离感。满墙格子柜在规则的体块中排布,于方寸之间,呈现多功能展陈的妙处。
茶室引入原始石纹,秩序陈列发光云石,撑托起一片片人文器物。一方自然端景融入空间,既是造景亦是寄情,恍若在自然中苏醒,等待生机盎然。
艺术装置作为脉络指引,随视角游至卧室区,串联了完整的功能场域。设计基于长期主义的需求,将产品体验汇入生活的动线,细化产品工艺,完成精致的定制化考量。
每一场空间叙事的背后,都是人与品牌之间的深度链接。从视觉鉴赏到情绪与体验的传达,一场沉浸式的互动具象化呈现了产品的内在力量,深切回应了品牌的理念:品质与时光同行,将会愈发历久弥新。
项目名称:格瑞恩木作体验中心
项目地点:江苏·南通
设计机构:JZ DESIGN STUDIO
空间设计:景哲
产品设计:景哲
项目面积:247㎡
设计时间:2023.10
竣工时间:2024.12
项目摄影:谭小中,谢宇辰
内容策划:六七
景哲
JZ DESIGN 主理人
JZ DESIGN STUDIO 专注于商业空间、私人住宅及家居产品设计。
我们将家居产品研发作为商业空间的价值引擎,打造沉浸式体验环境。通过工业化思维重塑居住空间,将家具系统与建筑结构有机融合,实现功能与美学双重升级,为客户创造兼具商业价值与美学深度的系统性解决方案。
客服
消息
收藏
下载
最近

















































