查看完整案例

收藏

下载
Edificio De Oficinas
Filipinas
One World Place / Gensler
One World Place / Gensler
Edificio De Oficinas
Taguig, Filipinas
Arquitectos: Gensler Gensler
Área: 4587 m²
Año: 2015
Fotografías: Gensler
Edificio De Oficinas
Daiichi Properties Inc.
Sy˄2 + Associates, Asian Institute of Technology
R.J. Calpo & Company Inc.
R.A. Mojica and Partners
NBF Consulting Inc.
Megawide Construction Corporation
Jomsar Trading & Engineering Services
L.M. Camus Engineering Corporation
Flowforth Ventures Inc.
Benedicto Limjap Gaviño Jr.
AIDEA
Daiichi Properties Inc.
Taguig, Filipinas
Ubicado en Bonifacio Global City (BGC), One World Place representa un estándar para el diseño innovador en el distrito financiero en pleno auge de Manila. Durante los últimos diez años, la economía de Filipinas ha crecido de forma espectacular, posicionándose como uno de los más fuertes en la región del sudeste asiático, y ahora se espera que sea una de las mayores economías del mundo en la próxima década. Bonifacio Global City, con su horizonte en evolución, es representativo de este crecimiento.
Terminado a finales de 2015, el éxito de One World Place es esencial en el posicionamiento de propiedades Daiichi como una moderna y estimulante nueva inmobiliaria en el mercado de Manila, basando sus valores fundamentales en relaciones duraderas con los clientes y continuamente proporcionando valor a generaciones de futuros líderes de negocios, apoyando así al crecimiento de Filipinas.
Alguna vez el sitio de una base del ejército de Estados Unidos, varios intentos de crear un plan maestro integral para el área de Bonifacio Global City dieron lugar a una superposición única de redes de circulación ortogonales y redondas. Esta disposición crea configuraciones geométricas desafiantes, con pequeñas y muchas veces irregulares parcelas individuales, para el desarrollo futuro.
Mezclando la forma y la función, One World Place se eleva 143.50 metros de altura, lo que contribuye al ya llamativo horizonte de la ciudad. Enraizada con cuatro niveles de estacionamiento subterráneo y seis niveles de estacionamiento en podio, la torre de 32 pisos cuenta con locales comerciales en planta baja, 22 niveles de oficinas, un nivel de penthouse, oficinas ejecutivas y un piso de cubierta de sistemas mecánicos. Los componentes de uso mixto del edificio acomodan una amplia gama de actividades, tales como banca minorista, espacios para pequeñas empresas, cafeterías y espacios de trabajo corporativos. La mayoría de los usuarios ofrecen servicios orientados a la externalización, como los tipos de servicios de BPO y KPO que ocupan plantas de forma individual en la parte inferior del edificio. Las oficinas corporativas ocupan la parte superior del edificio. La fachada está totalmente cubierta de un muro cortina montado en unidades.
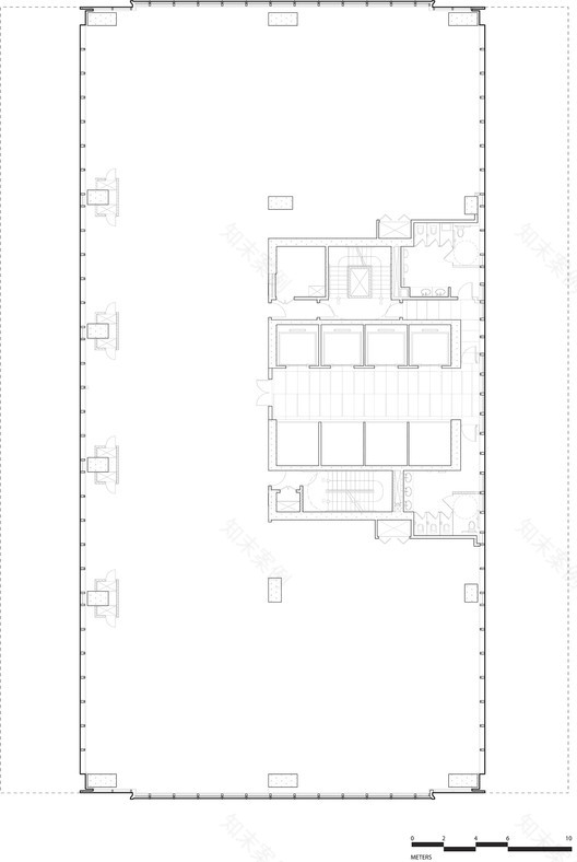
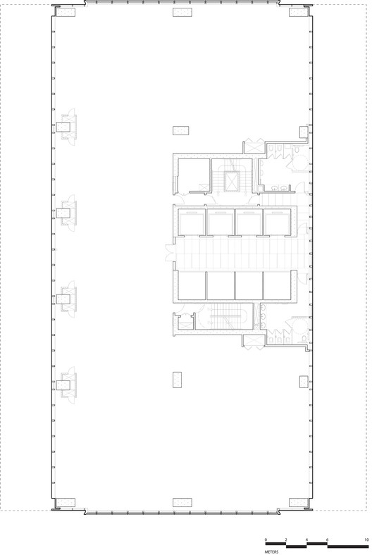
Planta
La torre fue planeada en un sitio de 1.790 metros cuadrados, con una placa de suelo de unos 1.100 metros cuadrados, un núcleo de desplazamiento y la superficie total construida total es de 49,374 metros cuadrados. La instalación de un programa de manera eficiente dentro de una superficie relativamente pequeña plantea un reto significativo.
One World Place ha sido certificado como LEED Gold. El equipo de diseño integró múltiples conceptos de alto rendimiento, incluyendo iluminación natural, ventilación natural y vidrio aislante altamente eficiente con una capa reflectante de energía solar, una alta tasa de acristalamiento y vidrio con transmitancia de luz visible, y protecciones solares exteriores e interiores. Además, los sistemas mecánicos eficientes de Flujo de Refrigerante Variable (VRF), recogida de aguas pluviales en el lugar, y el uso de aguas grises también se incorporó en el diseño del edificio. Este nivel de sostenibilidad ayudará a mitigar los retos climáticos y económicos únicos de la región, proporcionando ventilación natural en una zona dominada por los tifones, y generando alta eficiencia energética en Manila, una ciudad con una de las tarifas eléctricas más altas de Asia.
Detalle
Gensler Vidrio Acero Vidrio Acero
客服
消息
收藏
下载
最近




















