查看完整案例

收藏

下载
Планировка квартиры-студии - 20 проектов
Идеи планировки квартиры-студии - 20+ проектов с планами, описаниями и фото
На сегодняшний день квартиры небольшой площади являются самыми продаваемыми на рынке недвижимости, поэтому, их дизайн, планировка и отделка – актуальные задачи. Мы собрали на данной странице множество схем планировки квартир-студий и фотографий интерьеров. Под квартирой-студией мы понимаем общее жилое пространство без глухих перегородок (исключая ванную, которая является интимной комнатой). Все функциональные зоны студии: гостиная, кухня, столовая и спальня - находятся в рамках одной общей площади, хотя границы их, как правило, подчёркнуты методами зонирования.
Мы подобрали квартиры разных площадей (от 20 до 50 квадратных метров), в разной стилистике и с совершенно разными планировочными решениями. Надеемся, что эта коллекция чертежей поможет вам определиться с вариантом планировки вашей студии, или натолкнёт на какую-то интересную идею, которая послужит основой для дизайн-проекта.
Страница периодически обновляется и пополняется новыми проектами (следите за обновлениями).
Проект 1. Классическая планировка студии 35 м2, спальня за раздвижной зеркальной перегородкой
Проект 2. Студия 40 м2 с раздвижной стеклянной перегородкой между гостиной и спальней
Проект 3. Студия 28 м2 в скандинавском стиле
Проект 4. Квартира 27 м2 с гостиной в лоджии
Проект 5. Микро квартира в мансарде 20 м2
Проект 6. Планировка большой студии 48 м2, отдельная спальная зона за шторами
Проект 7. Планировка маленькой студии 27 м2
Проект 8. Планировка студии 38 м2, спальня около окна
Проект 9. Планировка узкой студии 29 м2
Проект 10. Студия 29 м2 с двумя кроватями и гардеробной под сдачу в аренду
Проект 11. Студия 33 м2, в которой прихожая и кухня объединены
Проект 12. Квартира 46 м2 со спальней на высоком подиуме
Проект 13. Квартира студия со спальней на антресоли (2-й уровень)
Проект 14. Студия 38 м2 с домашним кинотеатром
Проект 15. Квартира 43 м2 с типичной планировкой (зоны по углам)
Проект 16. Студия 27 м2 с раскладным диваном
Проект 17. Простая планировка студии 40 м2 в стиле лофт
Проект 18. Длинная узкая квартира с кухней и спальней в коридоре
Проект 19. Микроквартира 18 м2, оригинальное цветовое зонирование
Проект 20. Студия 36 м2, спальня отгорожена перегородкой от прихожей
Проект 21. Студия 26 м2 в которой нет дивана (варианты до и после перепланировки)
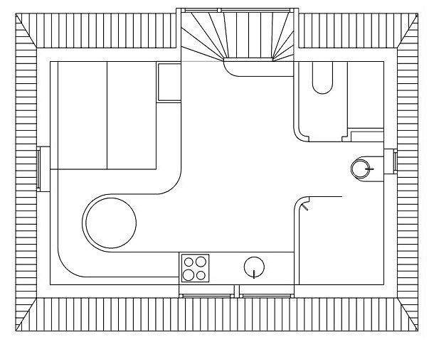
Проект 1. Классическая планировка студии 35 м2, спальня за раздвижной зеркальной перегородкой
Планировка студии 35 м2
Дизайнер: Audronė Ambrazienė, Литва
Планировка, которую вы видите на схеме, можно назвать классической для квартир, имеющих форму, близкую к квадрату. Всё пространство условно поделено на 4 части, в каждом углу «квадрата» находится какая-то зона (гостиная, спальня, кухня, санузел).
Главная особенность проекта в том, что спальня может полностью отгораживаться от студийного пространства зеркальными раздвижными перегородками. В закрытом положении перегородки выглядят как обычная «зеркальная стена», а в открытом, гостиная и спальня – единое целое.
Прихожая здесь никак специально не выделена, она является незаметной частью общего пространства квартиры.
Вид на спальную зону, перегородки раздвинуты
Дизайнер: Audronė Ambrazienė, Литва
Вид на кухню из гостиной
Дизайнер: Audronė Ambrazienė, Литва
Проект 2. Студия 40 м2 с раздвижной стеклянной перегородкой между гостиной и спальней
Студия
Несмотря на большое единое пространство, всё же, здесь есть одна перегородка, но прозрачная. Стеклянная раздвижная перегородка разделяет спальню и гостиную. В открытом положении студия образует единое пространство. В спальне компактно расположилось рабочее место. Идея проекта в том, что личное пространство всегда можно закрыть перегородкой.
Основная идея проекта в создании общего пространства, но с разделением спальни и гостиной стеклянной раздвижной перегородкой Curly Studio
Проект 3. Студия 28 м2 в скандинавском стиле
План квартиры студии 28 м2 (показана только встроенная мебель)
Маленькая студия в Швеции площадью всего 28 квадратных метров представляет собой абсолютно цельное единое пространство. Здесь не применено даже визуального зонирования цветом. Весь интерьер выполнен в едином стиле в светлой цветовой гамме и имеет простейший декор.
Вид на интерьер квартиры студии от входной двери Эрик Йозефсон, Швеция
Вид на кухню из спальной зоны (от кровати) Эрик Йозефсон, Швеция
Проект 4. Квартира 27 м2 с гостиной в лоджии
Планировка узкой длинной квартиры-студии 28 м2
Крайне необычная планировка квартиры, которая имеет форму вытянутого прямоугольника (не считая треугольной лоджии). Из-за критического недостатка места дизайнер вынес гостевую зону в лоджию, а кухню и спальню объединил внутри одной комнаты. Кровать отделена от кухни только низким стеллажом, за которым сразу находится обеденный стол. Также, в квартире имеется достаточно длинный коридор. В маленькую площадь удалось вместить множество шкафов и даже рабочее место рядом с кроватью.
Спальня, кухня и столовая в одной комнате
Cubiq Studio
cubiqstudio.ru/
Проект 5. Микро квартира в мансарде 20 м2
Схема планировки студии в мансарде 20 м2
Микроскопический размер квартиры был изначально главной сложностью для архитектора. Мало того, что общая площадь по полу всего 20 квадратных метров, так скошенная поверхность шатровой мансарды «съедала» драгоценные квадратные метры. Если посмотреть на фасад дома, то трудно поверить, что в этой маленькой пирамидке на крыше можно разместить полноценную квартиру.
Проблему планировки дизайнер решил, совместив все зоны в единое целое. Здесь спальная зона плавно переходит в гостевую и тут же начинается кухонная. Пришлось заказывать специальную мебель по авторским эскизам. Углы были скруглены специально, так как в маленькой комнате такая геометрия позволяет чувствовать себя более уютно.
Совмещённые столовая, гостевая и спальная зоны
Общий вид интерьера маленькой квартиры на мансарде
Проект 6. Планировка большой студии 48 м2, отдельная спальная зона за шторами
Изометрический план однокомнатной квартиры с отдельной спальной зоной
Квартира-студия в Минске имеет площадь 46 квадратных метров, благодаря большой площади в ней нашлось место для отдельной гардеробной, достаточно большого санузла и планировочных экспериментов. Основная идея планировки жилого пространства студии заключается в том, что спальня выделена в отдельную зону. Вокруг подиума кровати установлено четыре колонны, между которыми повешены шторы. Благодаря шторам можно отделять спальное место от остального пространства или объединять.
В квартире использовано множество специальных дизайнерских решений. В том числе возможность устройства домашего кинозала, в котором кровать – это место просмотра фильмов. Подробнее читайте в полном описании проекта (ссылка выше)
Спальное место с открытыми шторами
Кухня, барная стойка и столовая зона
Студия VAE, Беларусь
Проект 7. Планировка маленькой студии 27 м2
Планировка студии 27 м2
Очень маленькая квартира-студия, площадью всего 27 м2, была спланирована очень практично и функционально. Дизайнеру удалось использовать буквально каждый квадратный сантиметр площади. Кровать отделена реечной деревянной перегородкой с одной стороны и шторой с другой.
Между гостевой зоной и кухней установлена дополнительная зонирующая перегородка. Она не только проводит границу, но и служит стеной для телевизора, который повешен напротив дивана. Единственная проблема - в квартире практически нет мест для хранения, только шкаф в прихожей.
Кровать отделена шторой и реечной перегородкой
Дополнительная перегородка под телевизор, вид от дивана
Дизайнер Олег Кургаев
Проект 8. Планировка студии 38 м2, спальня около окна
Планировка квартиры 38 м2
Этот проект нельзя однозначно отнести к студийным, так как спальня здесь полностью отделена, хотя и стеклянной стеной, а не глухой перегородкой. Тем не менее, благодаря использованию стекла визуальная общность пространства сохраняется. Дело в том, что спальня была спланирована рядом с окном, а их всего два в квартире. Поэтому, единственной возможностью сохранить естественный свет в студии было использовать стеклянную перегородку.
Кухня, гостиная и рабочая зона расположились в одной части квартиры, рядом с лоджией, а столовая и спальня в другой. Все эти зоны скомпонованы на небольшой площади, всего 38 квадратных метров.
Столовая зона и спальня за стеклянной перегородкой с распашной дверью
Студия Suit House, Украина
Вид от прихожей на гостевую зону, балконная дверь ведёт в лоджию
Студия Suit House, Украина
Проект 9. Планировка узкой студии 29 м2
Планировка студии 29 кв. м, узкая вытянутая квартира. Ещё одна квартира узкой и вытянутой формы. Этот проект внешне очень похож на проект, который мы уже рассматривали выше под номером 6. Здесь, точно также, спальное место выделено в отдельный блок. Однако, в данной квартире площадь гораздо меньше и архитектору пришлось перебирать варианты для компактного размещения всех необходимых зон. Так, кухня нашла своё место в коридоре – это главная уникальная особенность данной планировки. Довольно большая площадь рядом со входной дверью выделена под гардеробную.
Отдельный блок для спальни и кухни в современной квартире-студии
Андрей и Алена Тимонины, Санкт-Петербург
Проект 10. Студия 29 м2 с двумя кроватями и гардеробной под сдачу в аренду
Планировка однокомнатной квартиры 29 м2
Ещё один оригинальный проект планировочного решения для студии. Дизайн изначально разрабатывался для квартиры под посуточную задачу в аренду. Задача предполагала, что студия должна быть удобна для постояльцев, в количестве от одного до трёх человек. Исходя из этой задачи и продумывалось использование пространства. При входе расположилась вместительная гардеробная со стеллажами. Вход в ванную возможен только через гардеробную, которая отгорожена шторой.
Главная идея – это замаскированные спальные места. Диван расположен у стены, которую, на первый взгляд, можно принять за глухую стену квартиры, но на самом деле за ней скрывается спальная зона. Диван же может раскладываться и, таким образом, в небольшой студии нашлось пространство для двух кроватей и трёх спальных мест, соответственно.
Гостевая зона, за стеной находится спальное место
Андрей и Алена Тимонины, Санкт-Петербург
Спальное место, скрытое за перегородкой + разложен диван
Андрей и Алена Тимонины, Санкт-Петербург
Проект 11. Студия 33 м2, в которой прихожая и кухня объединены
Планировка квартиры студии 33 м2
Квартира изначально имела продуманный архитектором застройщика план, в котором предполагалось размещение санузла в нише, а площадь остальной квартиры представляла собой правильную прямоугольную форму. Дизайнер решил совместить кухню с прихожей, а спальное место отгородить деревянной реечной перегородкой. Оставшееся пространство осталось под просторную гостиную, она занимает больше всего места в студии. Вся система хранения (шкафы) расположена вдоль одной стены гостиной. Таким образом, планировка заключается в достаточно простых, но логичных решениях.
Вид студии от стенного шкафа, слева спальная зона
Studio Makkai Interior, Венгрия
Проект 12. Квартира 46 м2 со спальней на высоком подиуме
Планировка однокомнатной квартиры-студии 46 м2
Планировка квартиры интересна тем, что в ней пространство разделено не только в горизонтальной плоскости, но и по вертикали. Так, спальная зона была размещена на высоком подиуме (можно сказать на втором ярусе), а под ним скрыта обширная система хранения. Забраться на кровать можно только по лестнице. Таким образом, был решён вопрос недостатка места для шкафов.
В целом квартиру делят реечные деревянные перегородки, они чётко очерчивают границы между кухней и столовой с одной стороны и спальней с гостиной с другой.
Гостиная и спальня за реечными перегородками
Кровать на высоком подиуме
Студия Форма Дома, Красноярск
Проект 13. Квартира студия со спальней на антресоли (2-й уровень)
Планировка студии 35 м2, план нижнего уровня
Вид от окна на входную дверь и спальню на втором ярусе
Если вы стали счастливым обладателем квартиры небольшой площади с высоким потолком (больше трёх метров), то можно рассмотреть создание второго горизонтального яруса (антресоли). В проекте данной квартиры над ванной, прихожей и гардеробной лежит горизонтальное перекрытие, на котором находится спальня. Подняться в спальню можно по современной лестнице вдоль стены. Оставшуюся площадь занимает кухня с гостиной, которые компактно разместились рядом: диван и барный стол четко делят комнату по центру.
Планировка второго уровня (спальная зона)
Кровать на втором ярусе
Вид сверху от спальной зоны на кухню и гостиную
Проект 14. Студия 38 м2 с домашним кинотеатром
Планировка студии лофт, 34 м2
Главная идея планировки – размещение домашнего кинотеатра в гостиной зоне, поэтому под гостиную отведено много места. Несмотря на это здесь нашлось место для спальни (рядом с окном, за декоративной перегородкой) и кухни, которая естественно является частью общего пространства. Кухонный гарнитур установлен сразу за диваном. Чтобы как-то отделить прихожую, была добавлена дополнительная зонирующая перегородка, которая частично закрывает входную дверь.
Общий вид студии, ракурс от входной двери
Чёрная спальная зона на подиуме
Вид от гостиной на зону кухни
Гостиная является также домашним кинотеатром с проектором и большим экраном
Проект 15. Квартира 43 м2 с типичной планировкой (зоны по углам)
Планировка студии 43 м2
Подобная планировка довольно типична для студии правильной прямоугольной формы, имеющей входную дверь по середине квартиры. Здесь зоны распределены чётко по углам. Вдоль одной стены – гостиная и спальня с гардеробной, а вдоль противоположной стены – кухня и санузел. Прихожая и небольшой коридорчик расположены в центре между стенами ванной и гардеробной. Спальня отгорожена дизайнерской перегородкой в виде поворотных жалюзи.
Прихожая
Гостевая зона, слева - спальня за перегородкой
Кухня в квартире-студии в стиле лофт
Проект 16. Студия 27 м2 с раскладным диваном
Планировка студии 27 м2 с диваном-трансформером
Проект от московского дизайнера Виталия Мясникова. Очень маленькая квартира площадью всего 27 м2, требовала решений по оптимизации пространства. Планировка была разработана с учётом использование дивана-трансформера. Диван в гостиной очень просто и быстро превращается в кровать для спальни.
Проект 17. Простая планировка студии 40 м2 в стиле лофт
Планировка студии 40 м2
Квартира спроектирована архитектурной студией INT2 из Санкт-Петербурга и предназначена под сдачу в аренду. Планировка достаточно простая без сложного зонирования. Из оригинальных решений стоит обратить внимание на стену, которая отделяет ванную комнату, в ней предусмотрена ниша для размещения кухонного оборудования.
Вид кухни в стиле лофт. Вся техника встроена в отдельную нишу
Вид на спальную зону, расположенную напротив кухни
Гостевая зона рядом с прихожей
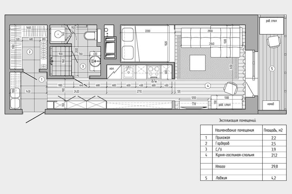
Проект 18. Длинная узкая квартира с кухней и спальней в коридоре
Планировка современной студии 35 м2, проект разработан московским дизайнером Яной Волковой. Главная особенность квартиры заключается в её форме (вытянутый прямоугольник). Дизайнер отвёл третью часть студии под гостиную, а остальные зоны и комнаты компактно разместил рядом с коридором. В итоге получилась квартира, в которой все вспомогательные зоны находятся в длинном коридоре. Спальня и кухня расположились друг напротив друга, кровать отгорожена раздвижной стеклянной перегородкой.
Вид на коридор и прихожую из гостиной
Вид от входной двери, зона прихожей и кухня
Спальня за стеклянной перегородкой
Проект 19. Микроквартира 18 м2, оригинальное цветовое зонирование
Планировка квартиры 18 кв.м
Площадь квартиры изначально была очень маленькой - всего 18 кв. м. Дизайнеру пришлось применить настоящий талант, чтобы оптимально использовать каждый квадратный сантиметр. Ванная комната имеет неправильную форму, благодаря геометрии перегородок удалось выделить небольшое пространство под душевую кабину, а со стороны жилой части появилась ниша под встроенные шкафы.
Вид на кухню и прихожую из глубины квартиры
Главная составляющая проекта – это уникальное цветовое зонирование, благодаря которому удалось оптически увеличить пространство. Автор намеренно ввёл в проект контрастные цвета и подчеркнул зоны цветом, нарушая геометрию прямоугольных помещений.
Вид от прихожей, чёрная зона кухни
Вид интерьера от кухни, раскладной диван используется в качестве спального места
Интерьер гостиной, оптическое цветовое зонирование
Проект 20. Студия 36 м2, спальня отгорожена перегородкой от прихожей
Планировка студии 32 м2
Форма квартиры в плане почти квадратная, что позволило создать довольно простую и логичную планировку. Зона спальни отгорожена от прихожей зонирующей перегородкой, благодаря чему образовалась ниша для входной зоны. Все остальные зоны скомпонованы в рамках общего пространства (гостиная, столовая и кухня). Со стороны столовой кровать дополнительно отделена низкой стеклянной перегородкой из стеклоблоков. Пол в районе кухни и прихожей выложен кафельной плиткой, остальное покрытие – массив.
Вид от кухни, спальная зона выделена оптически синими обоями
Общий вид студии от входа
Зона спальни за низкой перегородкой из стеклоблоков
Проект 21. Студия 26 м2 в которой нет дивана (варианты до и после перепланировки)
План квартиры 26 м2 до перепланировки
План после перепланировки, 26 м2
Эта студия не просто маленькая, она крохотная. С другой стороны, у помещения есть одно явное преимущество – много окон. Дизайнер Денис Свирид из Мельбурна применил все свои таланты, чтобы оптимизировать пространство. Было принято радикальное решение: отказаться от дивана в гостевой зоне, чтобы расширить свободное пространство перед балконной дверью. Вместо дивана рядом с кроватью было спроектировано место для отдыха. Кровать вписана в отдельный модуль (границы зоны сна подчёркнут), над ней закреплён видеопроектор, таким образом стало возможно смотреть фильмы, находясь в постели.
Ещё одна нестандартная находка – это расположение барной стойки прямо рядом с кроватью, она разграничивает спальню и кухню.
Вид на спальную зону
Вид на стену гостевой зоны, на потолке смонтирован экран для проектора
Кухонная зона, шкафы, барная стойка и ванная (кровать справа)
客服
消息
收藏
下载
最近






































































