查看完整案例

收藏

下载
Hotel Lacoste Dakar
Lacaton & Vassal
A Zest for Building
Marcos García-Rojo
There was a time when the act of building was a communal effort undertaken by builders, masons, craftsmen, architects and owners with great boldness, leadership and vision. This shared enthusiasm is scarce nowadays: insurance companies, large consortiums, international management and development companies have replaced these individuals and their will to succeed, their pride and their community involvement, by disengaged anonymous entities, numbers and profits. This fact – which might be considered to be the result of a natural evolution of the modern world towards greater optimization and efficacy – has turned construction sites and, therefore, the built environment, into over-professionalized environments where the extraordinary is not possible as everything is overcontrolled and foreseen. This is the story of something extraordinary.
The Lacoste project is extraordinary for its scale, for the crazy dimension of a project that has been carried out almost in the manner of craftsmanship – involving a very small number of people, with working loads that exceeded traditional responsibilities and ratios. This has, in particular, triggered a broader sense of involvement and communal engagement amongst those individuals concerned, and this energy has fuelled the construction since its beginnings. Without this attitude, without this will to succeed and, once finished, to say “I did it myself and I did it right” the task would have been unbearable.
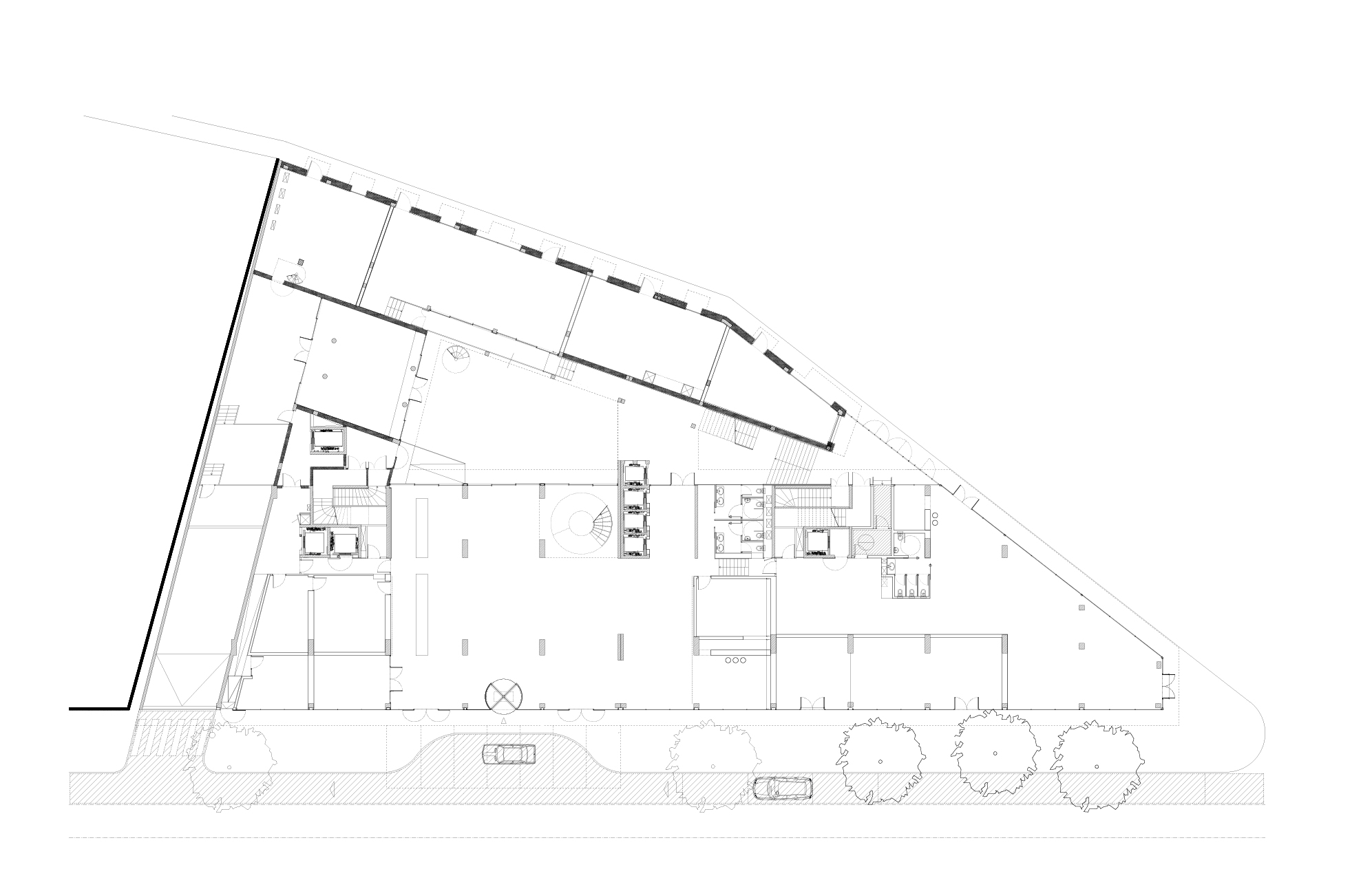
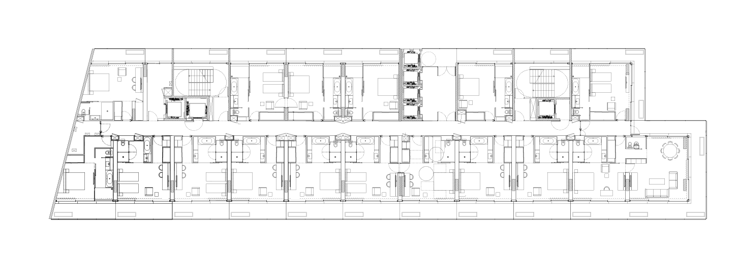
The hotel has 158 rooms, a fitness centre and an event centre. It is in the middle of downtown Dakar, at the edge of the “plateau”, a peninsula which used to be the colonial core of the city. The layout of the spaces challenges the traditional idea of luxury hospitality which relies on the array of sanitary features and the apparent quality of the details. This commercial, standardized approach seems reductive and simplistic here, especially given the character and richness of the context: the environment, the sea, the light are the real luxury here and are treated as materials for design. The rooms are wider than in traditional hotels. More than 98% of the façade is glazed, and a balcony extends the interior in order to take advantage of Dakar’s mild, evening breeze, while protecting from solar exposure. The resulting architecture is a device that makes the most of the view and maximizes the existing qualities.
The degree of involvement of the companies and the effort made by everyone who started the project have been outstanding, allowing all kinds of unexpected factors and difficulties to be overcome – different hotel brands, different
demands, administrative problems, technical issues…
It was in this extremely difficult yet still enthusiastic context that Jofebar joined an already ongoing project. Jofebar felt quickly moved by the potential of the location, the richness of the architecture to-be-built and the character of its developer. As a result, the company brought its savoir faire, its extraordinary craftsmanship but, more importantly, a great dose of resilience, work ethic and positivism. The fact that a project like this, despite all the difficulties, has been able to engage and motivate such a ground-breaking company is further proof of its out-of-the-ordinary nature.
Unluckily, as in every good story, chances are that it comes to a bitter end. The natural tendency of modern times to override these particularities – these eccentricities – is too important. To fight them and to counter them demands a high level of tenacity that, after almost five years of resistance, becomes more and more difficult to achieve.
It has, however, been a fascinating and enriching life-changing experience.
I do thank you, for your audacity and your courage.
May this text serve as a reminder of what we have achieved – and not what we sadly missed.
Location
Dakar, Senegal
Client
Private
Project date
2006
Completion
2017
Architecture
Lacaton & Vassal
Authors
Anne Lacaton, Jean Philippe Vassal with Marcos
García Rojo
Collaborators
Bártolo Santos, Adrian Alvarez, Ana Fernández, Kaori Pedrazzoli, Emmanuelle Delage
Local architect
Atelier d’architecture Réda Sleiman, assisted by Lara Bretones, Monica Rodriguez
Interior design
Frédéric Druot, Jeanne Gerbeaud; Frédéric Druot Architecture
Structure
E.TE.C.S, Lucien Santolini
Services
Solutech / CEFI Dakar
Acoustics
Gui Jourdan
Works supervision
André Poretti
客服
消息
收藏
下载
最近













