查看完整案例

收藏

下载
戈者设计
现代简约美学风格轻盈和谐互动温馨的公寓设计
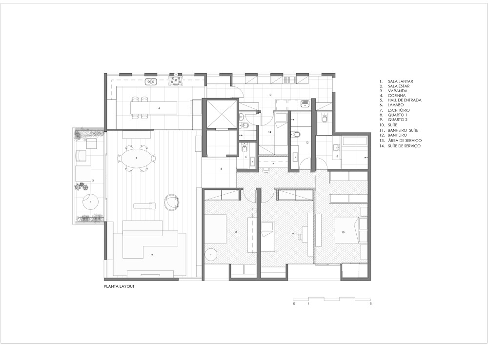
巴罗内萨公寓原来的布局结构合理,有一个带阳台的宽敞起居室、一间主卧室和另外两间卧室。客户表示,他们希望对厨房进行全面翻新,使其明亮宽敞,既能与客厅无缝衔接,又能根据日常活动的需要进行封闭。为了实现这一愿景,我们设计了一种具有灵活性的推拉门:它可以完全打开,也可以嵌入墙内,或者完全关闭。
该项目的主要挑战之一是客厅的布局。鉴于房间呈方形,我们选择了双人沙发,有效地将空间划分为电视区和休息区,确保了两种功能的舒适性。定制的木工书架使房间和谐统一,同时满足了客户对充足储物空间的要求,以便整理书籍和装饰品。
阳台对住户来说是至关重要的元素,这促使我们在设计起居室布局时将阳台无缝地延伸到这一空间,为亲朋好友的社交聚会营造温馨的氛围。与厨房墙壁相邻的是餐厅和吧台,通过推拉门连接起来,方便了这些区域之间的互动。
公寓的装饰风格简约而温馨,采用了当代巴西家具,如 Estúdio Bola 的乐高沙发和 Carbono 的 C26 扶手椅。这些家具与经典的斯堪的纳维亚设计元素(如萨里宁(Saarinen)的桌子和阿尔内-雅各布森(Arne Jacobsen)的 7 系列椅子)巧妙地结合在一起,形成了一种现代简约的美学风格,促进了整个空间的轻盈与和谐。
在主卧室,我们保持了公寓色调的连续性,突出了白色、木色和水泥色。这对夫妇的床头板采用了烧焦的水泥质地,与木地板和床头柜相得益彰,营造出一种舒适惬意的氛围。悬挂植物制成的绿色窗帘是一大亮点,不仅确保了私密性,还为空间注入了绿意,丰富了整体氛围。
客服
消息
收藏
下载
最近


















